马杜拉是一座住宅,客户希望拥有一座能让他们回想起位于卡纳塔克邦坎普利的祖宅的住宅——坎普利是一个靠近汉皮的小镇,拥有用泥土和石头建造的老旧住宅。该项目挑战在于——要在用户现在称之为家的班加罗尔密集的城市环境中重现类似的体验。设计任务是建造两座三居室住宅,每座住宅供一个兄弟姐妹居住,并设有共享公共空间。通过与家人的初步交流,设计团队了解到他们希望在家中拥有多个正式和非正式的空间,以便他们可以社交和举办聚会,如室内音乐会和宗教集会。在占地 3000 平方英尺的场地上,设计团队决定将两座住宅上下堆叠,以便合理管理建筑占地面积,同时使两座住宅保持独立和私密。这两座朝东的住宅的规划严格遵循了瓦斯图(Vastu)的原则。
设计理念是将建筑空间与周围的景观串联并包围起来。两座住宅的客厅都面向景观——一楼的花园和一楼的封闭庭院。当举办聚会或活动时,这些地方就变成了溢出空间。一进门,你就会被前院和停车场迎接,前院和停车场用随机散落的西拉石(Sira stone)铺设。一楼住宅的东侧面向这个花园,以“Tulasi brindavan”(圣罗勒植物)为焦点。住宅的所有公共空间,如入口门厅、客厅、餐厅、祈祷室和厨房,都与花园的这条直线延伸部分平行排列,因此它们始终与郁郁葱葱的景观相连,同时引入宜人的东方光线。卧室面向两侧的露台和花园。
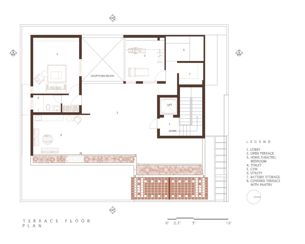
与一楼的花园一样,一楼住宅也是围绕一个封闭的景观庭院规划的。庭院是一个非正式的空间,设有阶梯式座位。陶土镂空墙和带有玻璃嵌件的粘土瓦倾斜屋顶在一天中产生了有趣的光影游戏,使这个空间非常生动。第三层被设计成一个有趣的开放和半开放空间组合,通过添加一个带有粘土瓦的倾斜屋顶来实现。这个露台楼层是住宅的公共空间,有独立的直接通道。露台周围种满了植物,还设有一个带有一些座位空间的储藏室。除了露台外,同一楼层还有家庭影院和健身房。它是各种日常活动的中心,如园艺、瑜伽、户外电影,以及休息和聚会空间。
泥土和石头是探索和利用的两种主要材料。二者有助于重现祖宅固有的质朴感,同时使结构环保。设计团队采用了各种替代建筑技术和材料来减少碳足迹。该建筑采用未烧制的土块(压缩稳定土块-CSEB)和主要暴露的空心陶土块建造。该建筑在室内和室外立面都有有趣的屋顶变化。设计团队致力于减少屋顶中的混凝土用量,因此采用了带有空心陶土块的填充板技术。这些空心陶土块作为出色的隔热材料,减少了从屋顶传递的热量。砖砌的杰克拱和穹顶进一步有助于这一目的。这些住宅融合了不同的印度石材——西拉花岗岩作为粗糙的随机碎石墙、地板,以及以整齐的人字形图案铺设,黄色贾沙尔默尔石、粗糙和抛光饰面的科塔石,以及皮革饰面的黑色花岗岩。
黄色氧化物墙壁构成了充满活力的特色墙,带来了传统魅力,并设计为黄色贾沙尔默尔地板的延续。这面墙上有周围植物的叶子印记,并以最少的土色突出显示。氧化物墙上的艺术品是外部景观的延伸。材料和形式的运用体现在这座建筑的外立面上,它被设计成两座住宅,但看起来像一个整体。形式的直线与杰克拱的节奏性平滑曲线形成对比,而陡峭倾斜的屋顶则使室外空间和立面显得俏皮生动。
项目图纸
▲一层平面图
▲二层平面图
▲三层平面图
▲屋顶平面图
▲剖面图
▲剖面图
项目信息
建筑师:Design Kacheri
面积:4300ft²
项目年份:2023
摄影师:Arjun Krishna
设计团队:Nidhish Kurup, Chaitra Saraf, Alex Paul, Arhata Jain, Mouleeswaran R
承包商:Deepak and Ezhumalai
室内装潢:Drisha Jain
编辑:Rohan Ullatil
视频:Anand Krishna (Ramasya films)
音乐:Pawan Krishna and Walt Adams
结构顾问:Sigma Consultants
地点:印度,坎普利


BIM建筑网






























