一座标志着突尼斯城市扩张的标志性建筑,也是突尼斯最早的商业区之一,正从上到下焕然一新。ETRATON 在三十年后重新设计了这个结构,保留了它的一些旧的独特特征,并恢复了该建筑作为与首都的一条主干道相邻的城市地标的作用。ETRATON 的底层是一个双层的汽车展厅,并突出了老楼梯的雕塑感。其他所有楼层都是办公空间。该建筑的转角入口被给予了特别的关注,模仿舞台幕布的尖角掀起,创造了一个光与景的奇观。
乍一看,ETRATON 的表皮确实是一个具有高太阳能和热能性能的玻璃面纱,它的规格赋予了整个建筑一种独特的活力。玻璃板的选择是经过了完整且彻底的研究过程的,研究重点是技术、效率和美学,以保证能获得一个中性的、无色的和高反射的结果。两种类型的棱镜在不同的高度上点缀了外墙。这种与所选材料的主要特征相关的体积的微妙变化组成了一个有趣的反射和阴影的表面,展示了该建筑对日光和周围环境色调的高度敏感性。
在 ETRATON 的日子里,各种微小的差异提供了对整体的不同解读,并与单调的环境切割。在车流的速度下,它们也同样展现在过往司机面前,并与他们的汽车运动相配合。选择用玻璃包裹这个城市群,也是邀请人们去欣赏自然元素,在喧嚣的城市生活中,人们往往会忘记这个元素,那就是天空,一个迷人的、有一千零一种颜色的广阔空间,所有这些都被 ETRATON 反射出来。
在日照减少的最初征兆下,只要照明开启,这种与自然的融合和外墙的不透明性就会逐渐消失。建筑揭示了它的深度,它的皮肤变成了多孔的、透明的和光亮的。因为采用开放的楼层设计,所以确保了城市景观的全景开放性和工作空间的质量,能与现代生活相协调,并且其中融入了自然元素,如此一来活动是自由的。这些楼层的广阔空间为用户提供了广泛的空间组织方案,以适应他们公司的动态和文化。
ETRATON 见证了它的时代,它的釉面表皮成为两种景象的分界线,一种是室内,另一种是室外,都高度象征着城市生活、它的节奏和它的演变。
项目图纸
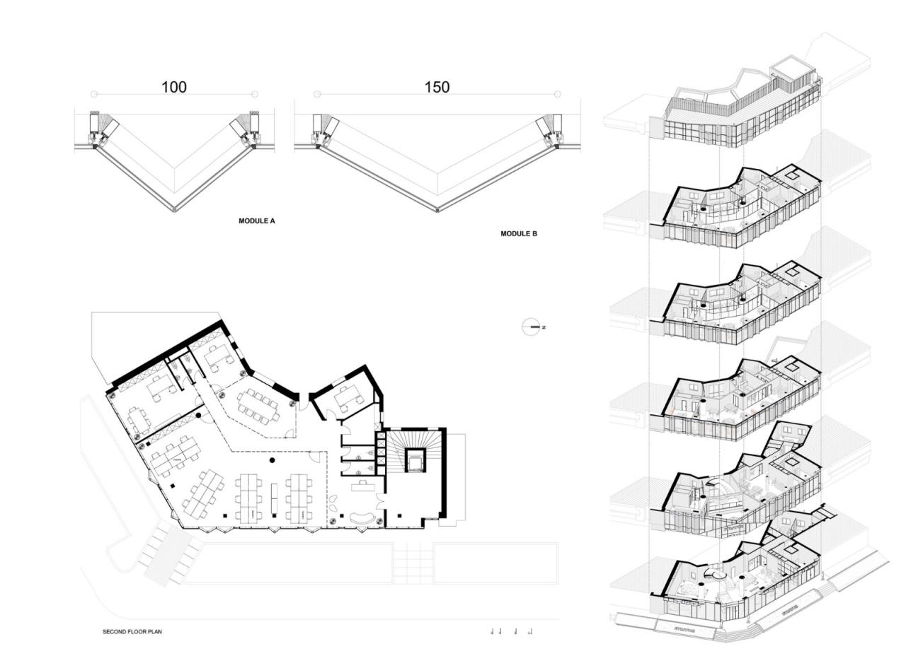
△平面图
△结构大样图
项目信息
建筑师:ARK-architecture
面积 :2000m²
项目年份 :2022
摄影师 :Bilel Khemakhem
厂家 : AGC,Samsung,TPR ALUMINIUM
主持建筑师 :Bilel Khemakhem
设计团队 :Sobhi Jabal, Mhammed Alila, Ons Larguech
技术细节 :Ghiath Chaar
建筑设计 :ARK-architecture
地点 :突尼斯

BIM建筑网


























