Divya Shanthi 基督教协会和信托提出了这个改造项目,项目位于班加罗尔市的一个低收入社区,作为其学校和儿童之家校园的延伸,建筑希望将一个复杂的设计简单地融合到一个愉快、舒适的生活环境中,同时也形成一个连贯的社区地标,散发出积极和乐观的气息,成为希望的灯塔。
该建筑容纳了多个项目,补充了现有校园和更大的社区社区的需求。它包括儿童宿舍和高年级女生读书空间、教师培训中心、初级保健诊所、社区图书馆、科学实验室、餐厅和学校的其他设施。考虑到在紧张的城市环境中有限的可用空间,该项目被堆叠在多个层次上。该方案考虑到必要的控制,包括对女孩住所的严格的安全隐私保护,以及连接社区后街和现有的学校建筑和校园。
新建筑设计重新诠释了传统的“游廊”建筑,这是一个过渡性区域,功能多样,可作为气候缓冲区、活动走廊和社交空间,将这一概念适应于当代多层次的城市结构。混凝土结构板和“自由平面”允许内部空间的最大灵活性,以适应不断变化的需求——当前每一层都有着不同的房间设计,以及满足未来的迭代。
建筑采用了双层立面结构:外层包括一层弯曲的钢百叶窗,而内层包括了可操作的玻璃系统和不透明的墙。用百叶窗玻璃进行遮阳,也遮蔽活动走廊和非正式的社交空间;同时提供安全和隐私。内部玻璃有效地保护指定的项目空间免受恶劣天气的影响,并在需要时提供隔音;同时允许深入渗透的扩散日光和交叉通风。
室内体量模拟了一个微型城市环境,不同颜色编码的项目“街区”之间的“室内街道”连接起来,暗示着街道边缘的家具,并邀请人们居住。室内氛围的特点是色彩、交叉透明和反射性,与建筑结构的原始混凝土表面形成鲜明对比。从建筑外部看,呈现出一种神秘的形象,内部色彩的泼洒与社区房屋的大胆合成颜色相呼应——结合了阴影、反射和通过钢百叶窗的面纱过滤的透明度。
该建筑在多个层面上与当地社区联系在一起。儿童之家为那些没有家庭支持的儿童提供了一个关怀和安全的环境。他们在 Divya Shanthi 学校接受教育,该学校也为当地的孩子提供服务。这里为女孩提供了大量的住宿,其中还包括一个过渡之家,帮助年轻女性独立并最终走向世界。设备齐全的餐饮设施为所有学生提供午餐,同时也为儿童之家服务。
增加有益于社区的其他设施包括特殊需要学校计划和教师培训设施。图书馆主要为学校服务,但也为当地人使用。街道级的初级保健中心向穷人免费提供优质医疗服务,包括医生咨询、日托床设施、检测实验室和药房。
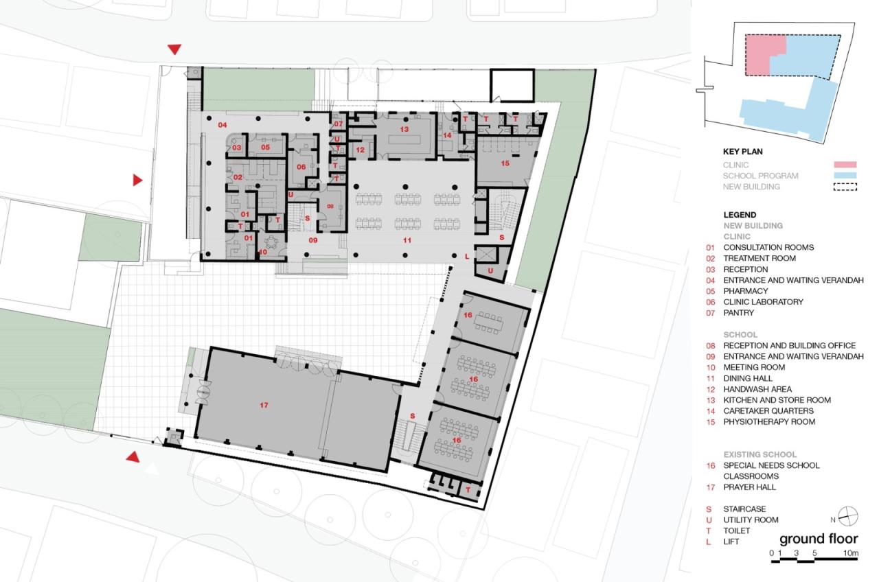
项目图纸
△模型图
△模型图
△基地示意图
△一层平面图
△二层平面图
△三层平面图
△四层平面图
△立面图
△剖面图
△局部剖面图
△分析图
项目信息
建筑师:Flying Elephant Studio
面积:50000 ft²
项目年份:2019
摄影师:Manoj Sudhakaran
设计团队:Rajesh Renganathan, Iype Chacko, Matilde Chitolina, Aneesh Nandi, Kiran Chandra
建筑设计:Flying Elephant Studio
结构设计 : Manjunath and Co
MEP : HMN Consultants
PMC 顾问:Gleeds
承包商 : GINA Engineering
地点 : 印度,Bengaluru


BIM建筑网

































