这座红砖乡村住宅设计坐落在纳维桑达斯(Nhavi Sandas)一块 380 平方米的土地上,这是一个有着深厚农业根基的河畔村庄。历史上,这个村庄遍布着砖石结构的庭院式住宅,当地称之为 “瓦达”(Wada)。但随着时间推移,这些住宅被现代建筑所取代,而这些现代建筑可持续性较差、能源消耗大,且不太适应当地气候。该项目旨在重拾那种永恒的魅力,对传统建筑形式加以改造,以满足现代生活方式的需求。
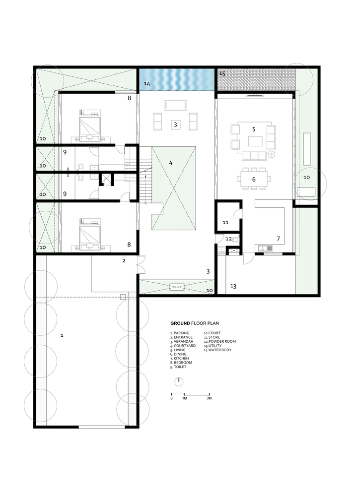
受瓦达住宅空间布局的启发,该设计融入了一个中央庭院和走廊,这里是整个住宅的核心区域。它将住宅划分为公共空间和私人空间,同时改善了两间卧室、一个起居区、一个餐厅和一个厨房的自然采光与通风条件。入口被设计成隐蔽式的,给人一种探索的惊喜感,它巧妙地融入建筑整体形态,直接通向中央走廊和庭院。一侧是开放式的起居、用餐和厨房区域,这样的布局有利于促进社交互动;另一侧则是两间卧室和一间卫生间,提供了更为私密的休憩空间。
在这个设计中,交通空间被重新设计成一个半户外的过渡空间,也就是走廊的形式。它将各个房间与自然无缝连接,优化了空间流线,有效利用了空间,增强了建筑对气候的适应性,同时还保持了设计的功能性。
住宅的外观呈现出大胆而统一的形式,其灵感源自传统瓦达住宅的美学风格。在传统建筑中,坚实的石基保护着上方的砖石结构,而在这个设计中,采用了原始混凝土作为坚固的基础,上方则是砖砌结构,既凸显了材料质感,又体现了几何简约之美。沿着边界设置的小型庭院里种有植物,加强了空气对流,不仅保护了隐私,还营造出宁静的绿色氛围。室内采用清新的白色调,光线充足,搭配木质家具和黑色玄武岩地板,营造出宁静而内敛的居住氛围。最终,这座住宅的设计是一次真诚的尝试,旨在让生活空间更亲近自然,同时将传统元素与现代生活需求和谐地融合在一起。

BIM建筑网
























