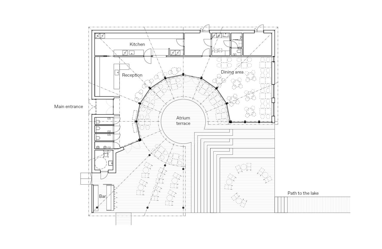
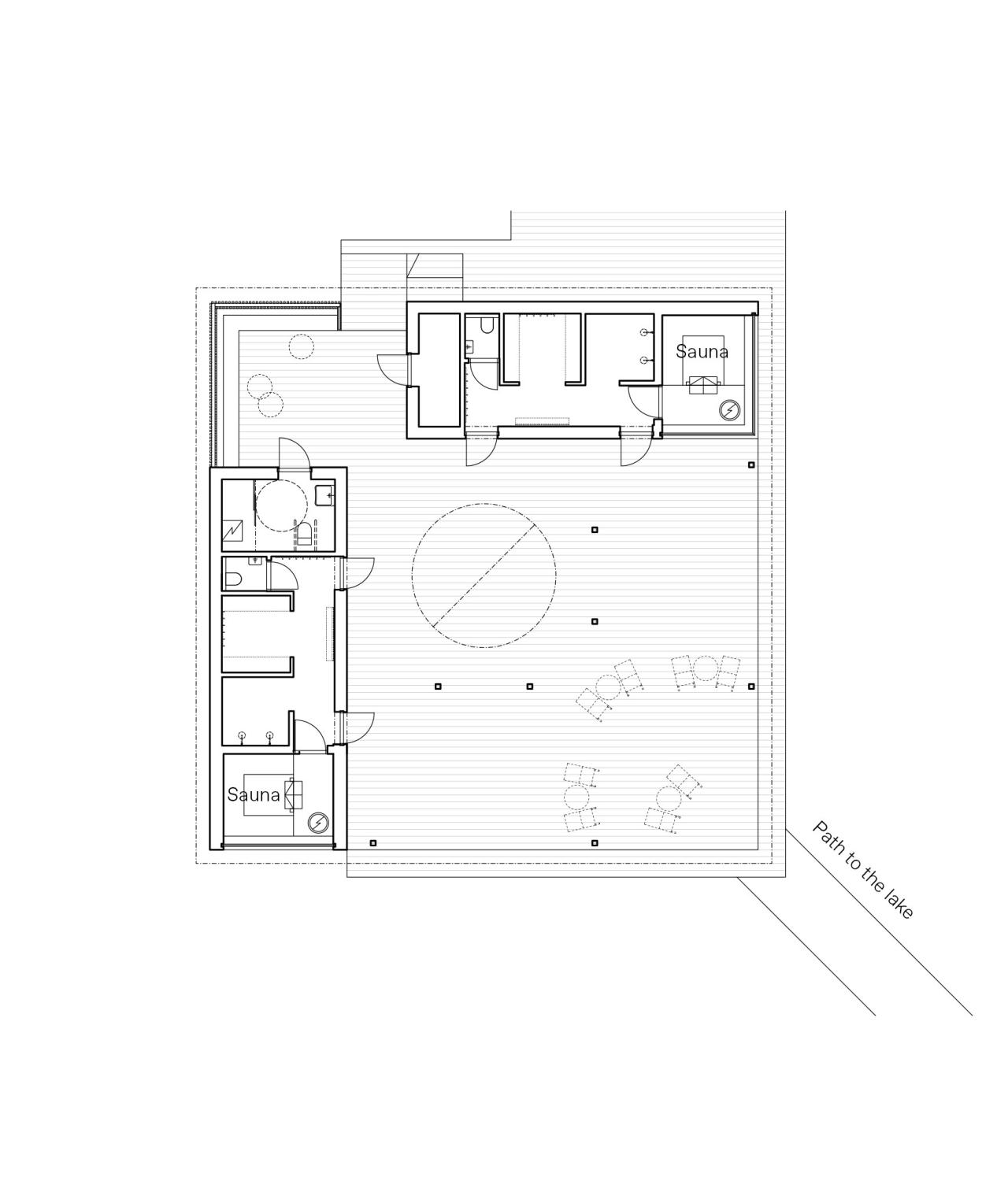
Pistohiekka 桑拿餐厅是重建 Pistohiekka 度假区的第一步,曾风光景气的度假区在 20 世纪 80 年代后逐渐走向萧条。该项目以湖畔桑拿及餐厅的形式为该地区带来人们期待已久的服务。Pistohiekka 桑拿餐厅是当地建筑事务所 Studio Puisto 为发展 Pistohiekka 旅游业与木结构建筑而设计的主要开发地点之一。该项目概念拥有强烈风格的设计美学:餐厅和桑拿空间环绕着一个 3/4 圆的中央开放式户外空间。
建筑坐落在现有树林的湖边空地上,深色外观与迷人而温暖的浅色木内饰形成鲜明对比,并与精致的塞马湖(Saimaa)风景融为一体。对桑拿-餐厅来说,湖畔景色和露台户外休闲区发挥着重要作用。客人可以在高品质的餐厅用餐和在桑拿室悠闲放松之时享受着夏季日落。
Pistohiekka 桑拿餐厅的标志性元素是它坐落在一个宁静海湾的岩石区之间,并享有壮丽湖景。这组建筑和该地区的整体开发同时设计,并与项目委托方一同完善一个独特的整体概念,突出该地区的特殊性,使度假村成为一个值得远道而来的旅游胜地。建筑布局仔细考虑了该地区的不同特征,将周边风景引入两座建筑中,无论是日丽风和又或是云迷雾罩,室内外空间始终让您欣赏赛马岛的美景。
弧形的餐厅内院提供了建筑内外的观景点,而屋顶带有独特圆形开口的桑拿室在建筑之间建立了主题上的联系。一流的专业团队使设计到施工以及最终落地的过程都非常顺利与迅速。由于项目业主的决心和承包商的技术水平,最初概念在最终结果中得到真实完美的呈现。
项目图纸
△一层平面图
△二层平面图
△剖面图
项目信息
建筑师:Studio Puisto
面积:715m²
项目年份:2022
摄影师:Marc Goodwin
地点:芬兰,Puumala

BIM建筑网

























