
BIM建筑|梯田停车场 Saukonlaituri / ALA Architects
赫尔辛基市正在重新开发其以前的港口地区,以用于住宅用途。其中一个地区是位于城市中心旁边的 Jätkäsaari 地区,面积为100公顷的废弃货物港口和船坞,完成后将容纳21,000人居住和6,000人工作。由于在地下、海平面以下建造所有所需...

赫尔辛基市正在重新开发其以前的港口地区,以用于住宅用途。其中一个地区是位于城市中心旁边的 Jätkäsaari 地区,面积为100公顷的废弃货物港口和船坞,完成后将容纳21,000人居住和6,000人工作。由于在地下、海平面以下建造所有所需...

在卢米特高中,你可以欣赏到精彩的戏剧表演,体验到归属感和团结精神,还可以在休息时间聆听自发的音乐表演。迁入新楼的库奥皮奥艺术高中,对表演艺术的教学做出了全国性的贡献。这所拥有 600 名学生的高中专门研究创造性的科目,如音乐、舞蹈和表现性艺...

Pistohiekka 桑拿餐厅是重建 Pistohiekka 度假区的第一步,曾风光景气的度假区在 20 世纪 80 年代后逐渐走向萧条。该项目以湖畔桑拿及餐厅的形式为该地区带来人们期待已久的服务。Pistohiekka 桑拿餐厅是当地建...

Soiva 意为共鸣或音乐,是一栋为制作音乐而生的大楼。它有两所音乐学校,分别教授节奏音乐和古典音乐。这些机构为儿童提供游乐学校,同时为业余爱好者和专业学生提供教育,囊括从器乐和声乐到音乐技术和制作。 在与大楼使用者的合作交流中,Tommi...

我们专注于设计提升幸福感的建筑和环境。当涉及到校区设计时,毫无疑问我们不仅在设计建筑,而是考虑设计产生活动、体验和互动的先决条件。汉卡萨尔米学校(Hankasalmi School Centre)是为所有汉卡萨尔米居民而设计的。这座雕塑般的...

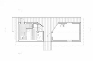
这间桑拿旅馆位于埃斯波群岛(Espoo archipelago)其中一个岩石岛的北岸。这间小小的旅馆被建筑师分为两个部分设计。其中一部分是一间桑拿房,而另一部分则是可供游客休憩的旅馆空间,同时也承担着桑拿房更衣间的空间功能。 ▲ 平面图 项...

Oodi在赫尔辛基中心区的重要位置,面向芬兰议会大楼的台阶,Eduskunttalo穿过Kansalaistori广场,是处于重要的公民机构旁的公共空间。 Oodi位于Eduskuntamalo对面,是政府与民众之间关系的象征,它提醒人们芬...

这个冬季度假胜地是由现代风格但极具独特的木制房屋体量组合而成的。拥有令人惊叹的大面积玻璃开窗和宽敞的内部空间,令游客能够纵享舒适的氛围环境和令人惊叹的景观体验。 设计师一开始就确立了这个项目的基本创造想法,旨在创建一组可以(BIM培训)令人...

塞伊奈约基的市中心是由阿尔瓦·阿尔托(Alvar Aalto)设计的复杂而风格统一的建筑群。建筑群细致入微地展示了阿尔托从小到门把手的细节刻画到大到城市规划规模的精致设计。这个塞伊奈约基的市中心是现代建筑的杰作、并且是一个极具人文价值的环境...

埃文特斯商务花园是一座位于EspooMatinkylä的办公中心,拥有着六层灵活可自由配置的办公空间以及两层地下停车场。它的灵活性在设计阶段已经通过了考验,当时它被转化成采矿技术公司Outotec的总部。 地面层设置了会议和餐厅等功能空间。...

芬兰ALA建筑事务所日前设计完成了赫尔辛基的新中央图书馆Oodi,该馆于2018年12月5日正式对外开放使用,这一天也是芬兰作为独(BIM学习)立国家成立101周年的前一天。这座总建筑面积达17250平方米的建筑物位于芬兰议会大楼对面一块极...

Taika幼儿园的方案设计是在对孩子们的功能需求和身体尺度进行了充分了解之后精心构思的,目的在于为他们创造一处具有良好体验感的温馨空间。该幼儿园在2018年1月正式投入使用,接纳Seinäjoki市家庭的小孩,并一开始就深受员工和孩子们的喜...
Puukuokka公寓楼是芬兰境内首栋八层高的木质公寓楼。在本次项目中,OOPEAA事务所与Lakea公司合作共同设计完成,该建筑位于Kuokkala郊区的Jyväskylä,由三栋低能耗建筑组成,旁边与同为OOPEAA事务所设计的教堂相邻...
阿莫斯·雷克斯艺术馆的前身是阿莫斯·安德森美术馆,老馆于1965年建成之后一直是赫尔辛基顶级的私人博物馆。为了能让这座建筑满足二十一世纪当代艺术实践和陈列的变化需求,阿莫斯·安德森艺术博物馆的馆长们一致认为应该另找一座新场馆,因为现有的博物...
电站位于三号环路和 Porvoonväylä 告诉公路转角处的明显位置。该建设项目解决了 Fingrid 公司(BIM学习) 400 kV Länsisalmi 电站的扩建和更新问题。电力从 Fingrid 的主电网通过发电站输送到 Van...
芬兰(BIM工程师)奥卢市的Toppilansalmi区有一排中世纪建造的柱形谷物筒仓,是片区内的标志性建筑。现在这座谷仓重获新生,被改造成一座具有现代感的住宅建筑。大多数旧建筑物由于年久失修、状况不佳而不得不被拆除,谷仓作为其中一员也早就...
这座住宅位于赫尔辛基附近的一块岩石峭壁上,可以(BIM工程师)远眺波罗的海,其外部形态呈折线形式,可以为室外露台形成遮蔽,阻隔外部的狂风。 当地建筑事务所Mer Architects与Ettala Palomeras Architects合...
塔皮奥拉楼是赫尔辛基记录入册的兼具标志性与实验性的学生会大楼。该建筑于1966年由建筑师Raili和Reima Pietilä设计完成,前段时间经历了一次全面的翻新工程,以全新的面貌成为阿尔托大学的主楼。该建筑已经于2017年秋季重新投入使...
PES-Architects设计的赫尔辛基二号西码头于2017年二月正式竣工投入使用。该码头位于赫尔辛基西港新开发的Jätkäsaari社区的南端,其前身是货运港区。此次新码头是为了满足赫尔辛基-塔林航线日益增长的轮渡交通需求而建造的。设计...
ortraum建筑事务所已经完成了其最大的住宅项目,一个五口之家的房子。这个名为“MK5”的项目坐落在芬兰约兰半岛到赫尔辛基市中心东部的一个西南朝向的斜坡上。房子在基地上所处的位置可以保证最大的私密性,其主要空间朝西面向大海,避免了(BIM...