这座简单的房子宛如花儿一般盛开在巴西塞拉多生物群落的干旱地区中。一对喜欢安静自然环境的夫妇委托设计了这个距离巴西利亚中心 15 分钟的世外桃源。在 2000 平方米的土地上,375 平方米的建筑设计得以向外延展开来。这座房子由四个松散的体量组成,在一个方形模块的网状结构上以露天的内部庭院为中心彼此相连。
这些如同“盒子”一样的空间对生活需求进行了分化并产生了不同的视觉效果。第一块是车库和服务区;第二块是电视室、办公室和主人套房;第三块是两间卧室、一个共用浴室、厕所和工作室。最后,起居室/餐厅和厨房的体积通过滑动门与阳台完全融合。
当你围绕着房子周围行走时,可以看到房子的不同视角。你可以在主入口的环形处看到花园和游泳池。分离的体积让用户得以在顺时针绕过庭院时可以看到建筑外部,并提供了一种内外沟通的空间关系。为了纪念“古老的居民”,一直以来生长在建筑工地上的本土树“ipê”作为雕塑被重新种植在院子的中心。由于采用了大量的全高玻璃,自然光和空气可以渗透到各个方向。院子里装点了道路、花园和水。其中水除了给房子加湿外,还倒映了天空,并将其运动投射到了室内。
房子使用了低成本的材料和建筑方案。房屋采用了混合结构设计,由金属梁支撑着混凝土支柱。被涂成浅土色外墙的砖石墙与天空形成了色差,白色的内墙则与屋内的艺术品和家具形成了强烈的对比。房子整体采用了水泥质地的地板,在潮湿的地方则采用了灰色的花岗岩。房屋内衬中使用的船用胶合板在厨房家具以及为房主的藏书而设计的书架上体现出了一种连贯性。
太阳能电池板可以全年为水和游泳池供暖。它的内部带着一种童心未泯的感觉,由建筑师 Samuel Lamas 和国内及国际设计大师设计的作品装点着。Mariana Siqueira 的景观设计项目采用了本地树木和杂草,它被认为是当地生物群落的一种延伸。
项目图纸
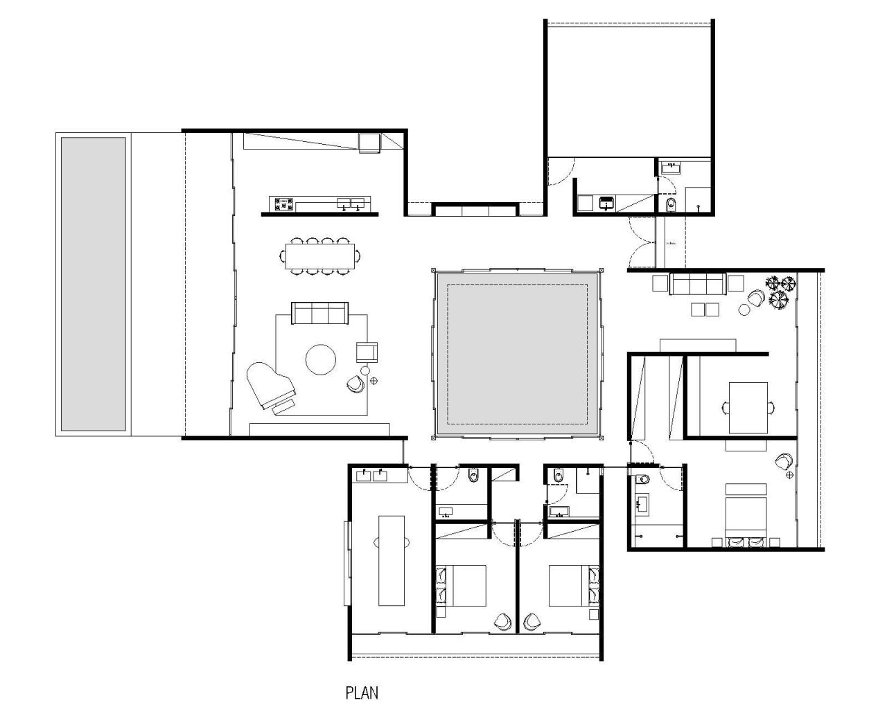
△平面图
△屋顶平面图
△立面图
△剖面图
项目信息
建筑师:Equipe Lamas
项目年份 :2022
摄影师 :Joana França
厂家 : Deca,Eliane,Lamas design,Objeto Casa
主创建筑师 :Samuel Lamas
项目团队 :Anna Albano, Camila Abrahão, Bruna Trivelli
景观设计 :Jardins de Cerrado, Mariana Siqueira
照明设计 :Samuel Lamas
室内设计 :Casulo Arquitetura + Samuel Lamas
艺术作品 :Galeria Karla Osório
结构项目 :Vitória
锯木厂 :Valdiron Gonçalves
执行 :Gustavo Stival
绘画师 :Ademasso Rocha
地点 :巴西,Brasília

BIM建筑网
































