Baltasar 大楼是一个集体住宅项目,它从可持续发展的三大支柱框架中解决遗产保护和城市密集化之间的平衡问题。
社会可持续性战略:该项目是将一栋破败不堪的 19 世纪新古典主义建筑改造成低价出租公寓。新增的两层楼提供了私密住宅,为建筑和该地区带来了一个融合过去和现代的全新视角。
身份认同:该项目与城市的座右铭“Priscas novissima exaltat et amor”相联系,意思是“拥抱和热爱新旧事物”。它提出了一个保护现存建筑的标志性元素并为其赋予价值的策略,使它们适应当代需求和家庭生活。
公平:平衡了出租公寓和私人住宅的质量,通过创建包容性设计来响应不同的居民和需求,避免因房地产标准带来的隐性阶级。
当地工艺与工业元素:通过当地制造商的新型工业技术(例如钢材和绳网)和当代的重新诠释,探索装饰和传统工艺,与原有建筑的匠心元素之间保持对话。在建筑的扩建中,绳网和不锈钢模切板花格由当地工匠完成。
环境的可持续性/生物亲和性:为了恢复与自然的生态关系及其对健康的益处,增加了与植物支持相关的新型基础设施,以及使用了自然色彩和天然材料。在顶层的露台上,设计了一个种植本地物种的花园,目的是促进物种多样性和减少城市热岛效应。
生物气候:有几种生物气候的解决方案可以减少能源消耗。其中包括 EIFS-热惯性组合,用隔热窗户来进行改造,或者使用防晒构件:如现有建筑中的传统外遮阳百叶,以及在扩建的楼层中使用绳网。
经济可持续性:通过提高能源效率来降低能源消耗、提高资源效益、恢复和利用现有建筑或当地经济、降低运输成本以及促进该地区的经济活动来实现。
项目图纸
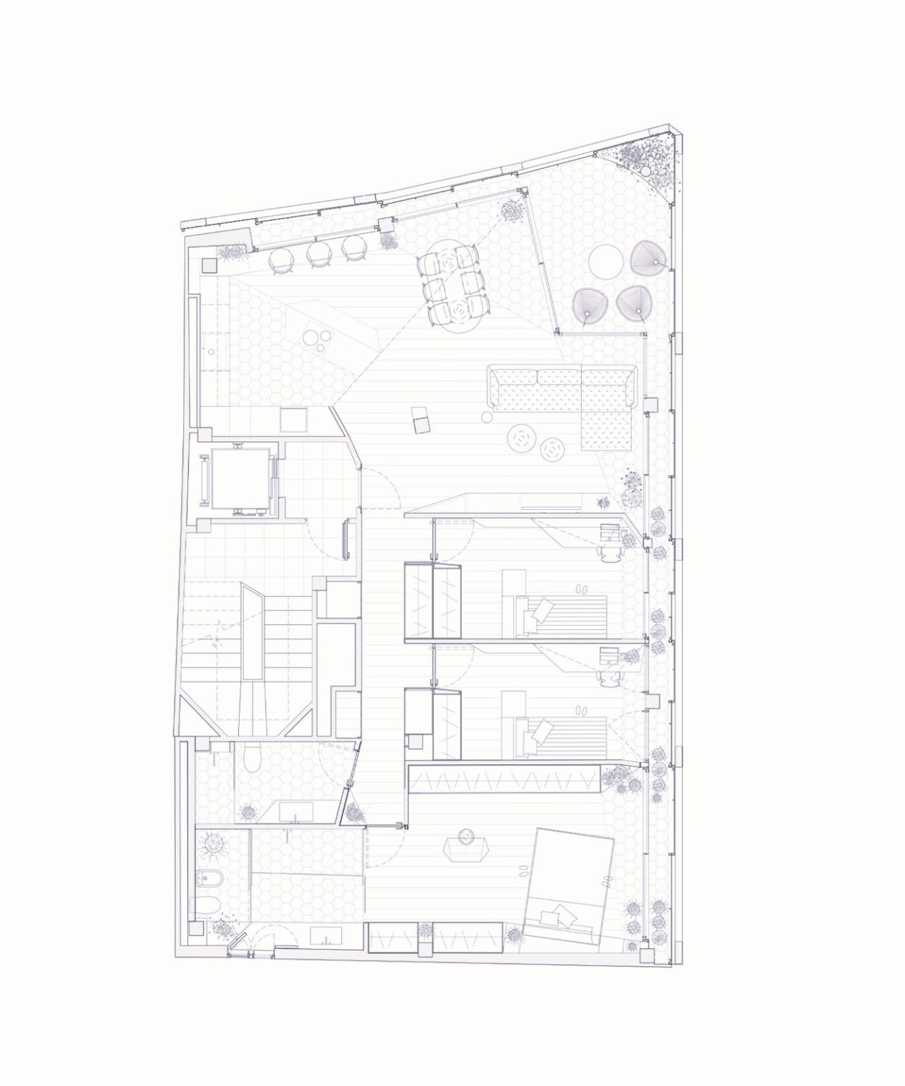
△二层平面图
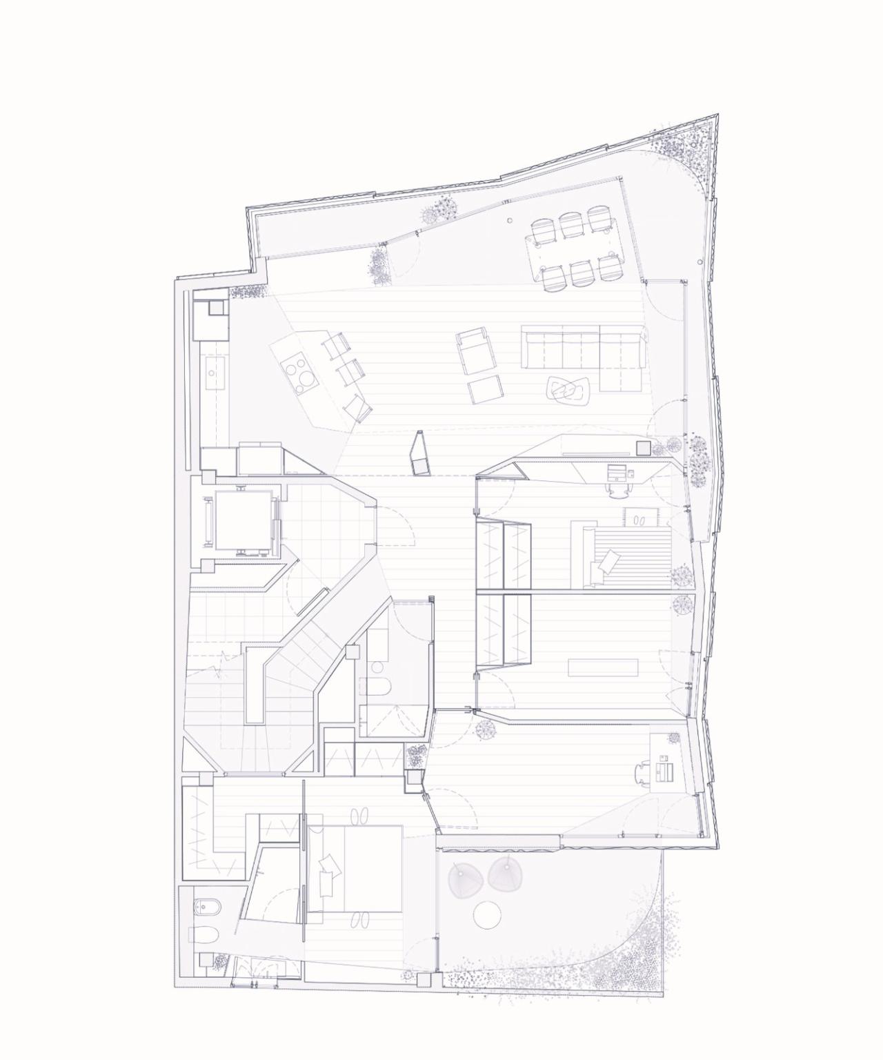
△三层平面图
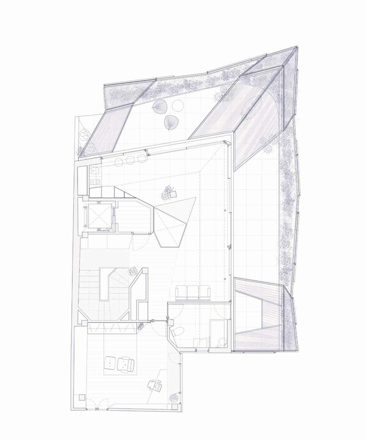
△四层平面图
△五层平面图
△立面图
项目信息
建筑师:Santa-Cruz Arquitectura
面积 :1345m²
项目年份 :2022
摄影师 :David Frutos Photography
厂家 : Aparici,Btizino,Carpintería Metálica Melga,Cement Design,Cortizo,Cristalería Marín,Fibercord,Finsa,Grohe,Mármoles San Javier,Roca,Silestone,Weber
创始人 :Juan Antonio Santa-Cruz Alemán
主要负责人 :Juan Antonio Santa-Cruz García
开发经理 :Beatriz Lorente Martínez
技术经理 :Javier Esquiva López
创意总监 :Carmen Santa-Cruz García
花园设计 :3SH
工程师 :Secor Proyectos
地点 :西班牙,Murcia

BIM建筑网






























