这所有 20 年历史的学校位于建筑、人口密度较低的郊区,这里现正处于城市探索和扩建过程中,根据当代土地利用规划标准和城市内新的教学要求,根据人们的需求进行了改造。
在 6540 平方米的预计面积上,老建筑相当破旧,包括一个有 10 个教室和一些附加功能的两层教学楼,缺乏教学和学习设施,建筑风格单调,室内外游戏空间不足。
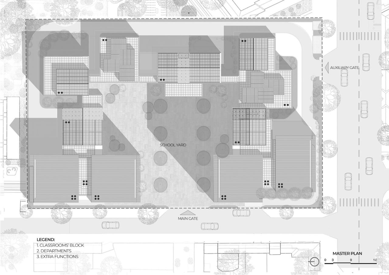
本着“以学生为中心”的理念,提案是在保留现有建筑结构的情况下,在屋顶采用钢架结构,并在屋顶上覆盖塑胶木板,将高度增加到三层。此外,在西侧新建 2 栋 4 层楼建筑。这种新旧混合使用的解决方案创造了一个中心操场,它不仅安全,而且还充当学校中心的大天井,促进各层楼的自然通风。在这两个区域,洗手间、仓库、走廊布置在前面,为后面的教室隔离噪音,并在为教室遮阳的同时为洗手间消毒。
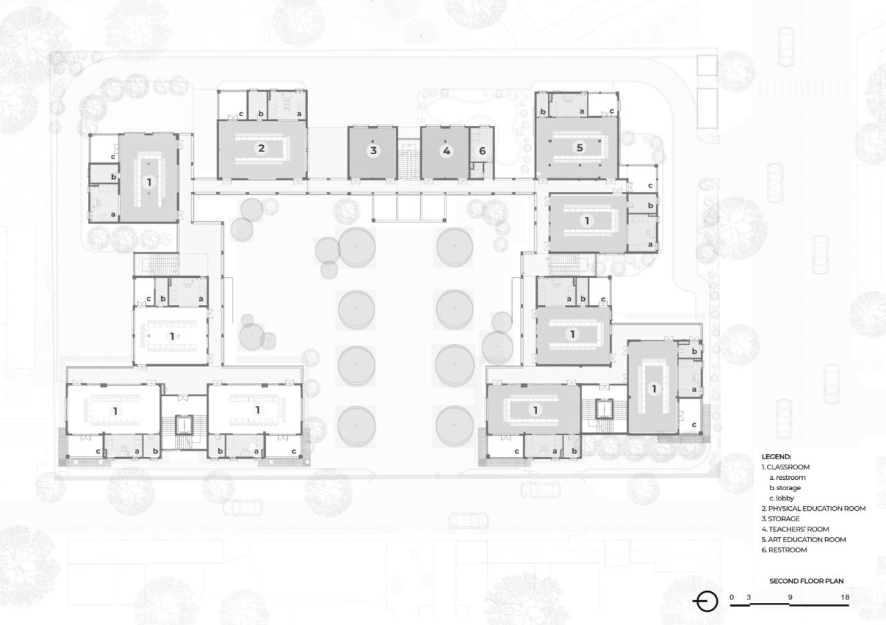
教室空间被重新布置,将原来的面积增加了 1.5 倍。通过窗户系统和内部封闭的操场获得了最佳通风和自然光线。每间教室都被设计成有 3-4 面开敞的别墅,周围环绕着自然通风的绿色花园,避免阳光直射和冬天的寒风。卫生间和阳台布置在西部,以隔绝教室。其他辅助功能在最高层——4楼,优先安排适合学前生理心理学的教室在低层。
在组织私密游乐空间时传达了“通过交流学习”和“鼓励体育活动,在玩耍中学习,在学习中玩耍”的理念,根据学生的年龄、性别和个人性格,为每项活动提供合适的空间。在屋顶上可以看到最大限度地将绿色植物带到高层的想法,这为学生创造了一个有趣的学习游乐区,在项目中发展了生态因素。它还提高了对热辐射的抵抗能力,同时也有助于为城市的整体景观增加一个由许多生态树木组成的空间。屋顶花园预计实现完全自给自足,学校本身所需的 50%-80% 的蔬菜都来自该地。
设计旨在确保设施符合教育创新的要求,适合学龄前学生的心理生理,接近教育创新、区域和国际先进教育的理念。同时,它不仅为建筑实现了节能价值,而且以经济的建筑投资成本和合理的公共投资预算为周边社区做出了贡献。
项目图纸
△基地示意图
△总平面图
△地下一层平面图
△一层平面图
△二层平面图
△三层平面图
△屋顶平面图
△阁楼屋顶平面图
△立面图
△日照分析图
△日照分析图
△分析图
△改造前后分析图
△分析图
项目信息
建筑师: Sunjin Vietnam Joinventure Company
面积 : 7349 m²
项目年份 : 2022
摄影师 :Chimnon Studio
厂家 : Austrong, AutoDesk, Conwood, LIXIL , Mitshubishi, Rạng Đông, Viet Phap, Việt Nhật
负责建筑师 : Nguyen Quang Hai
创意设计 : Tran Nguyen Quang, Dinh Van Thanh
建筑室内设计 : Dinh Van Truong
景观设计 : Nguyen Hoang Hiep
建筑细节设计 : Hoang Thi Thu Hang
建筑绘图 : Nguyen Anh Duong, Vu Duc Khiem
结构工程师 : Tran Thanh Tung
空调通风系统 : Nguyen Tu Ha
预算管理 : Luong Thi Nguyen
地点 : 越南,Hanoi

BIM建筑网






































