Terra Capobianco 和 GaleriaArquitetos 建筑公司负责的桁架住宅(Casa Treliça)项目,是一个位于圣保罗Alto de Pinheiros区的 464 平方米的建筑。通过建筑系统的合理性,该建筑力求在 533.35 平方米的地块中创造一个完全融入周围景观的大型空间。
住宅的设计是基于最大限度地利用土地的需求产生的方案。其目的是使用金属结构、钢板和钢材框架中,以较少的元素来创造一个快速建造且干燥的结构。为此设计了三个金属桁架:其中两个在主体体量的纵向端部,承载了 15 米的跨度,释放了会客空间中的结构支撑。而第三个在横向的场地宽度方向上,构成了悬空体量,创造了 14 米的自由跨度的雨棚。
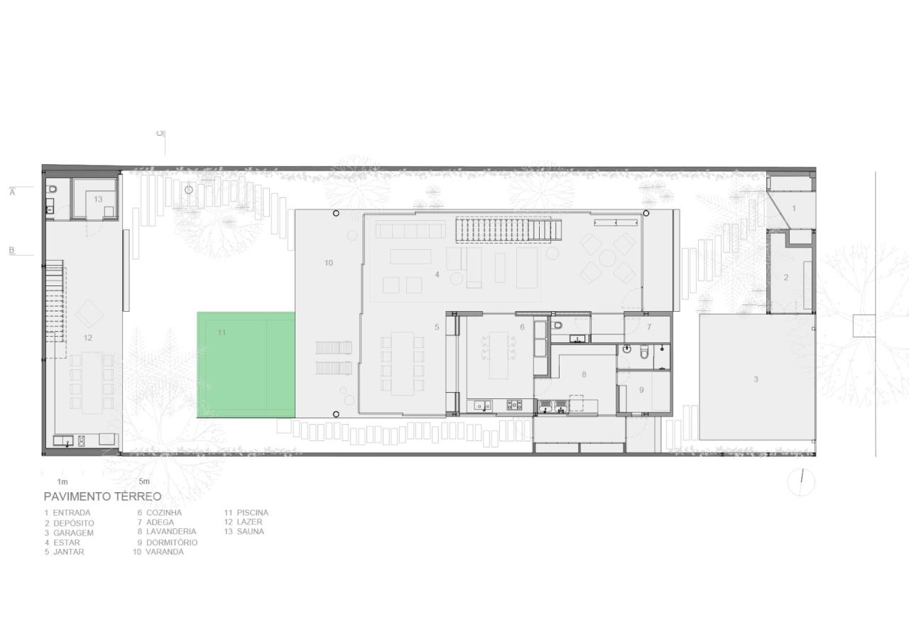
该场地运用的视觉效果是不间断的连续性。首层不到五分之一的部分有着不透明的围护,这产生了一种宽敞的感觉,而 3 米高的天花板进一步加强了这种感觉。这样一来,客厅和餐厅可以通过滑动玻璃门完全打开,使其与阳台、游泳池和花园完全结合。一条用现浇混凝土踏板设计的小径穿过花园通向休闲区域,这里的马厩棚架下有一个桑拿房和烧烤架。
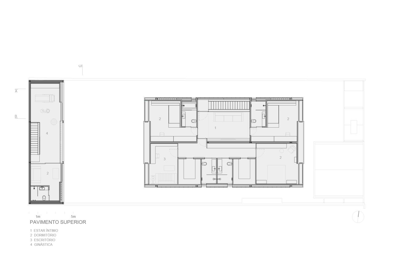
位于一楼的会客区中,一个金属楼梯通向二层,由半透明的热熔材料(聚碳酸酯板)制成的格栅在背光环境中显露出来。一个公共空间分布在四个套间之间,其中两间以灵活的方式设计。最初为居住的夫妇服务,有两个浴室、两个壁橱、一间卧室和一个私人的房间。房子的第二层是健身房和客人套房。
这些卧室方向朝东和朝西,有垂直的板条百叶窗,由经过高压灭菌和碳化的松木制成,这种材料保证了耐用性。在北立面上,保温层保证了耐热性,此外还有组装式的自支撑榫槽面板保证了灵活性。这四个面板界定了一个可拆卸且高效的双表皮矩形体量。
建造性的解决方案以及项目的其他方面使得桁架住宅获得了巴西绿色建筑委员会(GreenBuilding Council Brasil)颁发的银奖证书,这是国家认证的可持续建筑。该住宅配备了光伏电池板,安装在主体块和棚屋上,此外还有一个装满再利用水的水箱,专门用于厕所。除此之外,这座房子还为花园配备了自动雨水灌溉系统。
项目图纸
△一层平面图
△二层平面图
△剖面图
△剖面图
△剖面图
项目信息
建筑师:Galeria Arquitetos,Terra Capobianco
项目年份 :2020
摄影师 :Nelson Kon
厂家 : AutoDesk,B'Block,Casa Franceza,Deca,Lesco,Lumini,Luxes,Metalart,Nani Chinellato,Neogran,Normandia Marcenaria,REKA,Reclima,Rigasist,Segmento,Solepoxy,Tecnosaunas,Trimble,Tuboar,Uniflex
主创建筑师 :Ana Terra Capobianco e Fernanda Neiva
设计团队 :André Braz, Liliane Nambu e Lucas Leite
施工方 :Schwartz Engenharia
钢结构 :Stec do Brasil
景观设计 :Giardino Planejamento de Exteriores
地点 :巴西,Alto de Pinheiros

BIM建筑网






























