永久的建筑博览会中国学舍位于巴黎14区内的国际大学城。巴黎市于1925年创建大学城,旨在为留学生提供住宿。目前有40余栋以国家命名的宿舍楼。大学城以其优秀的建筑闻名于世,其中包括杜达克(Willem M. Dudok)设计的荷兰学院、勒柯布希耶设计的瑞士馆、寇斯塔(Lucio Costa)和勒柯布希耶联手设计的巴西之家、巴杭(Claude Parent)设计的伊朗馆等等。
期待已久的中国之家1930年,巴黎大学城免费提供给中国一块建设用地,中国旅法建筑学生虞炳烈将中国学舍作为他的毕业设计题目。此前,巴黎多个院校的中国留学生已组成巴黎大学城中国学舍促成会,发表声明呼吁修建中国学舍。鉴于当时形势,项目未能推进。虞炳烈的中国学舍设计图纸现藏于南京东南大学档案馆內。2017年,中法两国联合组织设计竞赛,征求中国学舍(正式命名为中国基金会)的建筑方案。非常建筑和法国CAAU团队在5组中法建筑师联盟中胜出。
园楼与自然共舞中国学舍的基地在巴黎大学城的西南边缘地带,北临两个大学城运动场之一,南依园区外的巴黎环路。
我们在设计构思的初始曾把该栋300间单间学生宿舍及500座文化活动厅建筑想象成为一个村落。为了使项目更好地与相对狭长的基地条件结合,我们以中国南方传统家族集合住宅 – 土楼(又称大圆楼)为参考,从村落的概念演化出一个8层不规则开口环状体量的建筑方案。
勒柯布希耶瑞士馆设计的一个核心理念是健康生活。我们也认同此价值观。因此,我们在土楼的基础上发展出宿舍房间围绕中央庭院/花园的空间关系,让学生有尽可能多机会去走出户外接近自然。建筑的屋顶也设计成全楼垂直景观的一部分,学生可通过中心庭院中的楼梯及一系列平台到达,在屋面上具有中国意味的园林中一览巴黎风光。因此,中国学舍也获得了“和园”的别称。
携带文化基因的建筑材料与虞炳烈时代用形式形象表达中国文化的方式有所不同,我们更是通过空间及匠意来传递中国建筑文化的精髓。我们在中国学舍建筑表面采用了手制青灰色粘土砖。进而,借鉴不同的中国传统砌筑工艺,做出漏空、花格、叠涩等手法的现代版砖工表现,使材料和工艺成为体现中国精神的建筑形式语言的一部分。
建筑表面的波动意在解决宿舍房间重复的单调,强化构成整体的个体单元,同时削弱环路的噪音污染。木格栅构成中央庭院周边的建筑界面。木材与青砖一起使用复述了中国古代之建筑即土木的观念。然而,这个建筑也属于巴黎,欧洲生产的手工青砖告诉我们人类的建造文化是相通的。
项目图纸
△中国学舍设计图纸,虞炳烈
△中国学舍设计图纸,虞炳烈
△勒柯布希耶设计的瑞士馆
△地形图
△模型图
△模型图
△模型图
△手绘草图
△手绘草图
△总平面图
△平面图
△剖面图
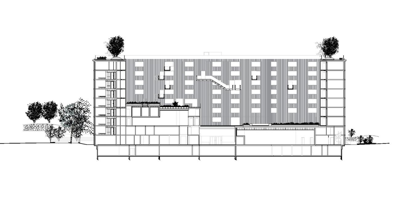
△剖面图
项目信息
建筑师:非常建筑,CAAU
面积:8287m²
项目年份:2023
摄影师:田方方
主持设计师:张永和,鲁力佳
设计团队:程艺石,Simon Lee,孟瑶
业主方:巴黎国际大学城/北京首都创业集团有限公司
地点:法国,巴黎

BIM建筑网






































