分散在一系列临时居所中的约克大学继续教育学院 (SCS) 对该学院的学生和教职工而言是一个严重的缺陷。为回应这一问题,大学明确表示需要一座专有建筑来彰显这所学院的身份和文化,同时定义校园门户,实现雄心勃勃的可持续发展目标。
建筑以大胆的扭转形体为该学院创造了一个新家空间,定义了校园的南边区域,并塑造了一个全新的步行广场。该建筑可容纳高度灵活的学习环境、社交和协作空间、以及供学生和教职工使用的办公室。高大明亮的空间品质可促进继续教育学院社区、文化和身份认同的建立推广。
该项目的核心目标是减少隐含碳和改善使用者的身心健康。方案探索了净零能耗和净零碳的项目潜力,旨在获得 LEED 金级认证。设计策略包括使用被动式房屋设计的建筑围护结构、直接室外空气通风和贯穿建筑的主动冷梁。该设计策略与高效的 HVAC 和能源系统相结合,大大降低了建筑的能源负荷,最大限度地减少了帮助项目实现净零能耗目标所需的可再生能源生产规模。
设计手法以严格的经济手段与周围的建筑结构相异。为实现高能效和居住舒适的目标,建筑师需要将与扭曲造型相关的预算溢价降至最低,继而采用了严格的几何形状,以优化现成标准组件的重复使用。相应地,这座建筑物的动态形式最终是通过简单的几何逻辑生成的,即矩形楼板围绕一个共同质心旋转而成。
建筑整体的旋转造型将双向曲线引入南北立面。当建筑围绕其质心旋转时,三角形的面板图案利用规则或双轴的对称性在建筑的长短立面上创造了重复面板外形的区域。通过这个简单的扭转动作,项目完成了为继续教育学院创建引人注目的新家的目标,同时也推动了包含能源效率、使用者福祉和校园建筑在内的多个代办事项。
项目图纸
△模型图
△模型图
△模型图
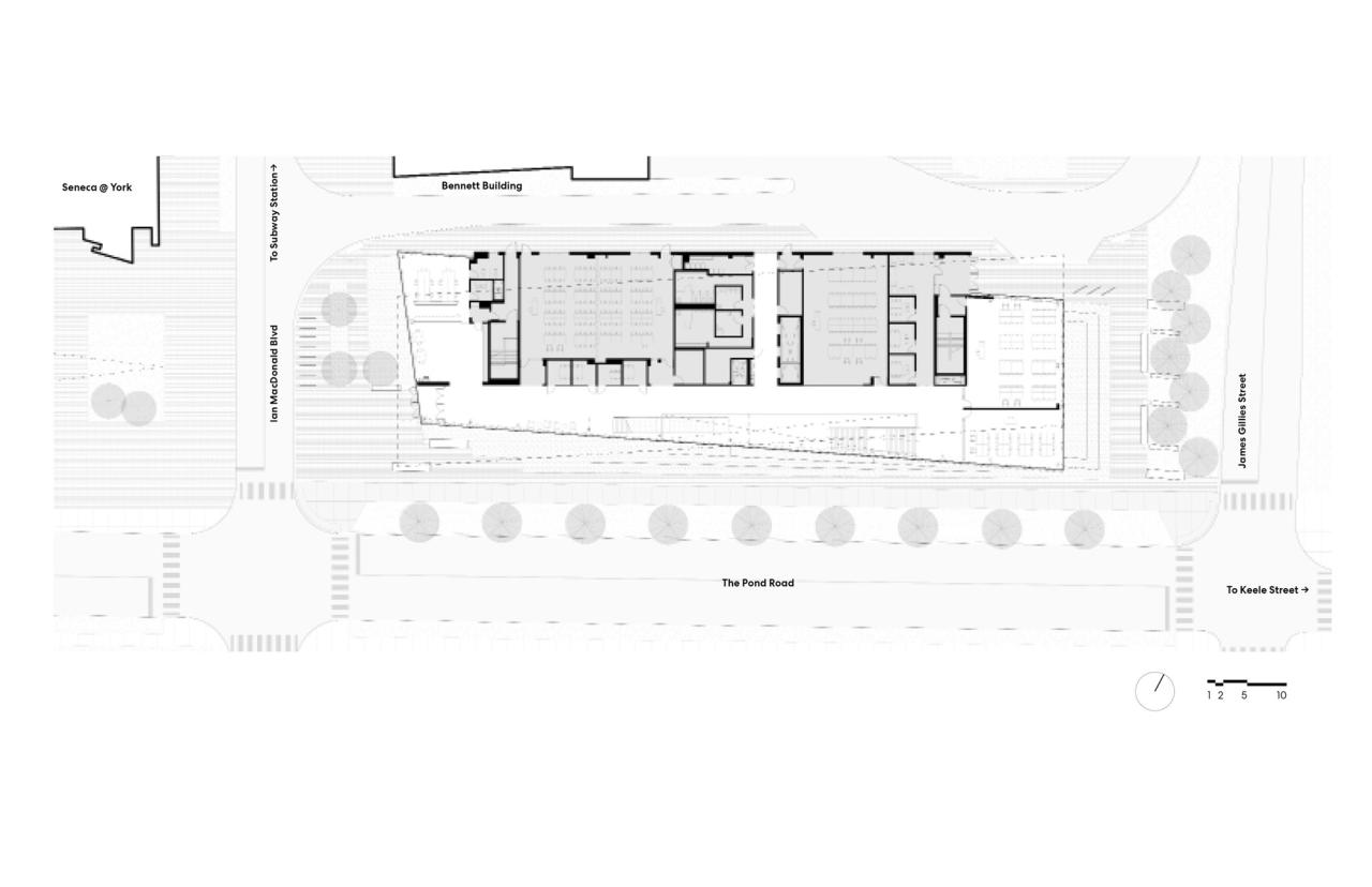
△总平面图
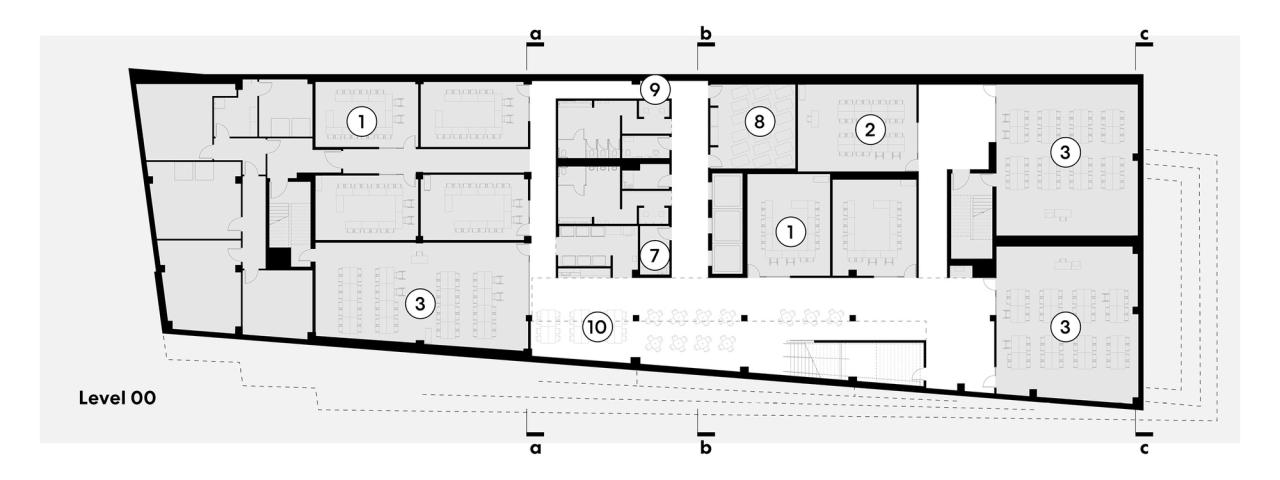
△一层平面图
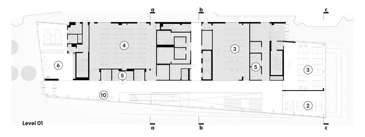
△二层平面图
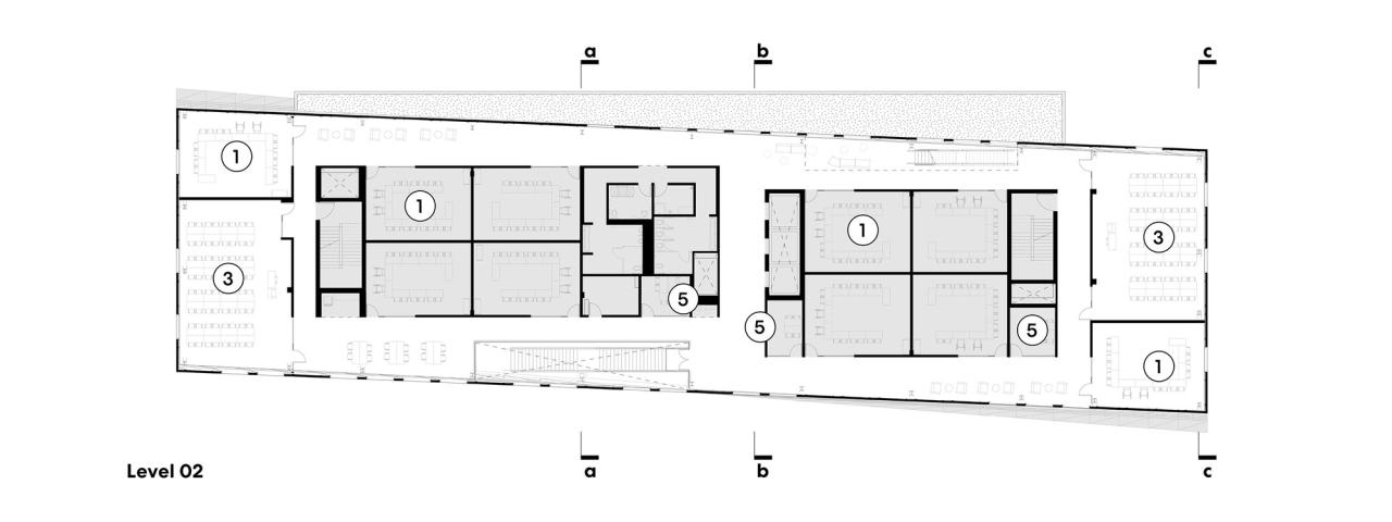
△三层平面图
△剖面图
△剖面图
△剖面图
△剖面图
△爆炸图
△分析图
△分析图
项目信息
建筑师:Perkins&Will
面积:1120011200.0平方米
项目年份:2022
摄影师:Doublespace Photography,Tom Arban Photography
厂家: Alumicor,Carey Glass,Second Generation Furnishings,TK Elevator
主创建筑师:Andrew Frontini, Safdar Abidi
设计团队:Safdar Abidi, Andrew Frontini, Dan McTavish, Jon Loewen
建筑规范:David Hines Engineering
电气工程:Smith+Andersen
地点:加拿大,多伦多

BIM建筑网








































