Tsuga 住宅坐落在劳伦琴地区布朗斯堡 – 查塔姆崎岖的森林山坡上,它超越了复杂场地的限制,为人们提供了一种沉浸式的、充满感官体验的居住感受。这座住宅是为一位建筑历史学家及其身为音乐家兼歌手的妻子设计的,每一处空间、材料以及视角都经过精心雕琢,旨在打造一个独特的避风港,既体现出精致感,又深切表达出对这片土地的尊重。
这处非凡场地的主人尚塔尔(Chantal)和雅克(Jacques),希望离开他们在蒙特利尔的城市住宅,寻得一处能沉浸于自然之中的宁静静居之所。他们的愿景是:建造一座当代风格的紧凑型住宅,与周围环境完美融合 —— 既能欣赏到令人叹为观止的美景,又能保有私密的个人空间。
雅克分享道:“在探索 Appareil 建筑事务所的作品时,我们被他们将建筑无缝融入自然环境的能力,以及对材料的真诚运用所吸引。他们的设计方法 —— 将当代建筑形式与深深扎根于当地景观的乡土元素相结合 —— 与我们产生了共鸣。它唤起了某种‘北欧’风情,让人联想到斯堪的纳维亚的住宅建筑风格。”
拥抱自然景观的设计。由于场地有着陡峭的坡度和天然的盆地,因此需要一个周全的建筑设计方案来应对。建筑师们从点缀在景观中的雄伟松树以及附近的湖泊中汲取灵感。选择的住宅位置不仅最大限度地利用了景观视野,还加强了住宅与周围环境之间的联系。
建造 Tsuga 住宅是一项技术壮举,由建筑商巧妙地执行完成。要在陡峭的山坡上固定建筑结构,这一挑战需要精心的规划以及精确安排施工阶段的顺序,并采用创新的解决方案,以确保建筑的长期稳定性和耐久性。建筑师们特别关注水和土壤的管理,以保障住宅的结构完整性。平屋顶的雨水被引入干井中,施工结束后,场地被恢复到自然状态。本地植被被重新种植,以稳定土壤并防止水土流失,同时保持景观的原始轮廓。
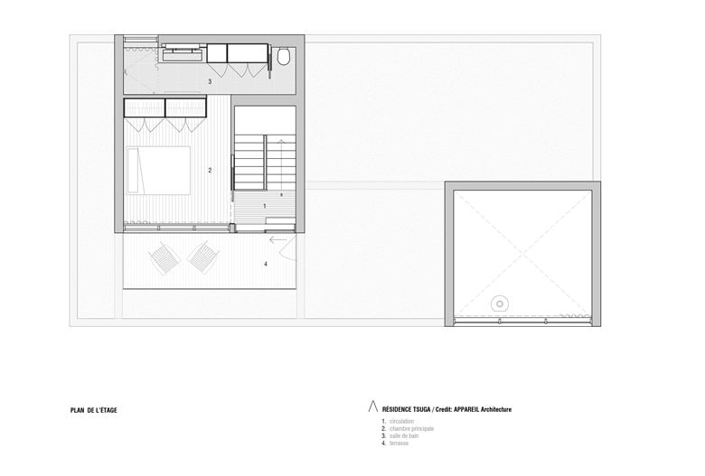
这座住宅共分三层,巧妙地利用了垂直空间,呈现出相互交叠的体量组合,创造出一种动态的视角交互效果。一个长长的矩形棱柱构成了主楼层,顶部是两个近乎立方体的体量,呈交错排列,形成了一种大胆而又平衡的建筑形态。悬挑的箱体、木板条屏风以及精心设置的开口,增强了住宅的垂直存在感。
从外部看,Tsuga 住宅就像一首精心编排的建筑乐章。几乎没有窗户的前立面增加了建筑的神秘感,而在后部则展现出湖泊和森林的壮丽景色。这种巧妙的布局强化了 “栖息之所” 的概念。每一层都与自然建立了独特的联系 —— 在花园层,可以从树干底部感受森林;在主楼层,仿佛置身于悬浮的小屋之中;而在上层,则完全沉浸在树梢之间。
在主楼层,宽敞的双层高窗户将树木和湖泊框入视野,与自然建立起亲密的联系。一天中不断变化的光线将生活空间变成了一幅不断演变的画面。在花园层,客房和桑拿房展现出不同的视角 —— 树木近在咫尺,几乎触手可及。在顶层,一个私密的夹层区域是一个幽静的休憩之地,通往一个可以俯瞰景观的露台。这个夹层还设有主卧室套房,与房屋的其他部分隔开,营造出一种极致的宁静氛围。这种视角的不断变化丰富了住宅的感官体验。夜晚,这座住宅宛如一盏灯笼,柔和的灯光透过木板条屏风透出来。这种柔和的照明,再加上天然材料带来的温暖感,使住宅在自然景观中呈现出一种宁静的氛围。
独特体验的定制内饰
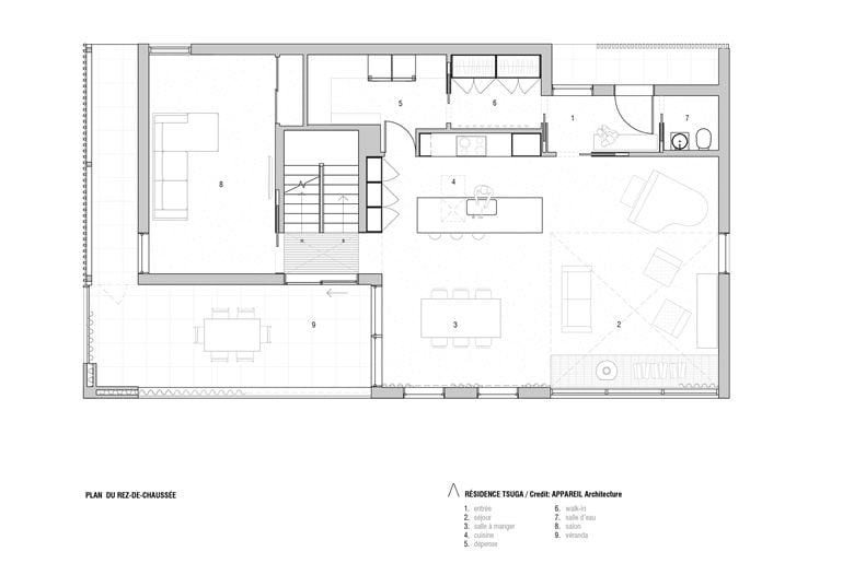
住宅的内部被设计成自然环境的无缝延伸,同时也是主人音乐热情的展示舞台。客厅变成了一个富有沉思氛围的空间,让人联想到音乐厅,木质的温暖质感和精心调校的声学效果,为置于中央的三角钢琴营造出了完美的环境。红橡木板从天花板一直延伸到上部墙壁,统一并扩大了空间,提升了空间的视觉和声学品质。客厅以一扇巨大的双层高窗户为中心,是住宅的明亮核心区域。自然光线与木质表面和优质材料相互映衬,营造出既现代又温馨的氛围。
家具和材料的选择体现了对品质和工艺的追求。在厨房,北墙和西墙完全覆盖着黑梣木 —— 这一大胆的选择不仅统一了空间,还巧妙地隐藏了储物空间。一个中央不锈钢岛台、瓷质台面以及精心挑选的设计单品,共同营造出一种简约而优雅的氛围。尽管住宅占地面积紧凑,但却提供了出色的灵活性。主楼层的一间卧室考虑到了多代同堂居住或未来变化的需求。一个带纱窗的露台扩展了户外生活空间,打造出一个宁静、隐蔽的休闲场所。与此同时,花园层的桑拿房提供了一个可以冥想的空间,还能欣赏到湖泊的绝美景色。一座雕塑般的楼梯是住宅的标志性特征,开放式的楼梯平台让自然光线能够透进来,突显了住宅的垂直感。其简约的设计,搭配红橡木房门,进一步增强了住宅的温暖氛围。
可持续、有意识的亲生物建筑
该项目的一个指导原则是尽量减少住宅对环境的影响,同时优先选用高质量、耐用的材料。住宅分布在三个紧凑的楼层,设计充分利用了每平方米的空间,符合社会生态转型的原则。
被动式设计策略 —— 包括合理布置窗户以利用自然光线 —— 减少了对供暖和制冷系统的依赖。住宅卓越的隔热性能确保了最佳的能源效率,气密测试结果超过了新气候标准(Novoclimat standards),证明了该项目的高性能。
木材作为主要材料,均来自当地,体现了环保意识。建筑外部体量的上部覆盖着金属,以增强建筑围护结构的耐久性。大面积的玻璃体现了亲生物的设计理念,模糊了室内外的界限,让森林的气息渗透到住宅的核心区域。
自然和谐的建筑颂歌
通过 Tsuga 住宅,建筑师们展示了周全的场地整合、定制化设计以及精确施工的力量,充分发掘了一个地方的全部潜力。这座栖息在树梢间的静居之所,不仅仅是一处住所,更是对建筑作为一种艺术形式的颂扬 —— 它与自然进行着深刻的对话,提升并放大了自然之美。

BIM建筑网


































