Educar II 学校 SESC-CE 项目位于Fortaleza的 Damas 社区。其场地东西纵向延伸,尺寸约为 350m x 50m。场地的两个面朝向主要道路,于其南部还有三个横向通道。除了这些场地条件之外,该项目还处理了一些现存条件:当地社区的小教堂、将翻新并纳入学校项目的体育馆、以及一栋旧楼。学校的一部分已经在旧楼里运作,但应予拆除以建造新楼。
功能需求包括幼儿园教学区、基础教育区一和二、礼堂、课外活动区、自助餐厅,以及对原有体育馆的改造。因此,为了能够在现有条件下、按照功能需求和计划时间表实施该项目,该项目的设计从结构系统到窗户系统都适应合理化、模块化协调和建筑工业化的体系,优化工作流并缩短执行期限。此外,项目使用分阶段实施的策略。
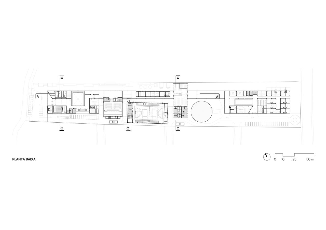
第一阶段部分已经在场地最空旷的地方建成。通过场地西边的主要道路和其中一条横向道路可以进入这一部分。教学区二、课外活动区、自助餐厅、改造后的健身房和步道处于此阶段部分。 第二阶段部分仍处于设计阶段,除拆除原有结构外,还包括东部及其步道,该结构可以在第一部分工程建设的同时使用。 第一阶段部分的建筑不是作为孤立的体块分布,而是作为一个由构造逻辑和功能分布管理的系统。它的实施占据了土地上现有结构的空隙,合理布置功能,连接交通并引导人流。
教学楼占地面积较大,占据了通往西面的主要通道并形成入口。 从那里,人流被分配到空间的其他部分,服务通道从一个次级通道进一步向南。项目以一种多孔的方式嵌入场地,创造了内部庭院的空隙。打破结构网格的刚性角结构突出了入口。值得注意的是,与建筑空间同样重要的是创造的空隙空间。这些空隙承载了社交空间的功能,例如坡道所在的内部庭院,或场地北部广阔的线性公园。它们将学校综合体的不同部分连接起来。
从这个意义上说,颜色也作为一个中心元素引入空间,有助于标记通道和竖向交通,并区分不同部分的功能。颜色在白色中性的在建筑体量和结构中充当向导,把建筑空间和视觉识别进行集成。金属结构从 1.2m 的模数开始设计以适应项目的局限性,克服了大跨度和重叠部分内部组装的挑战。水平遮阳板的二层表皮保护内部环境免受阳光直射,同时为建筑立面增添多样性。
项目实施了多种策略以提升环境舒适度。首先是在具有垂直和水平循环的环境中实现自然通风的可能性:建造的天井将植被带入建筑空间,改善空气湿度,窗户由水平固定的金属遮阳板保护。因此,符合人体工程学的舒适空间、充足的自然光线和通风,以及建筑空间和绿色社交区域之间的密切关系,这些都保证了学生、教职员工的福祉。教室在两边的墙上都开设窗户,促进交叉通风的同时防止二氧化碳在室内积聚。
项目图纸
△基地示意图
△平面图
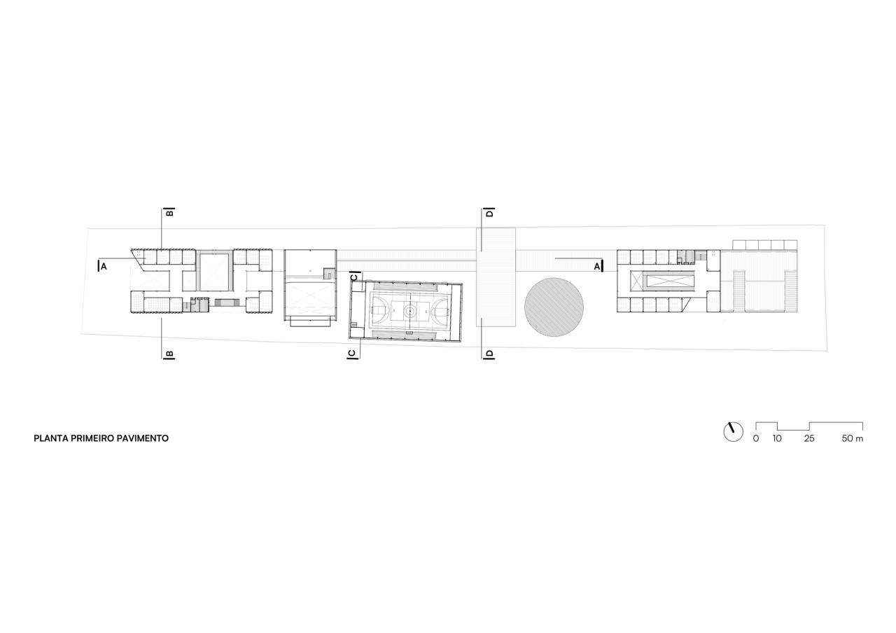
△一层平面图
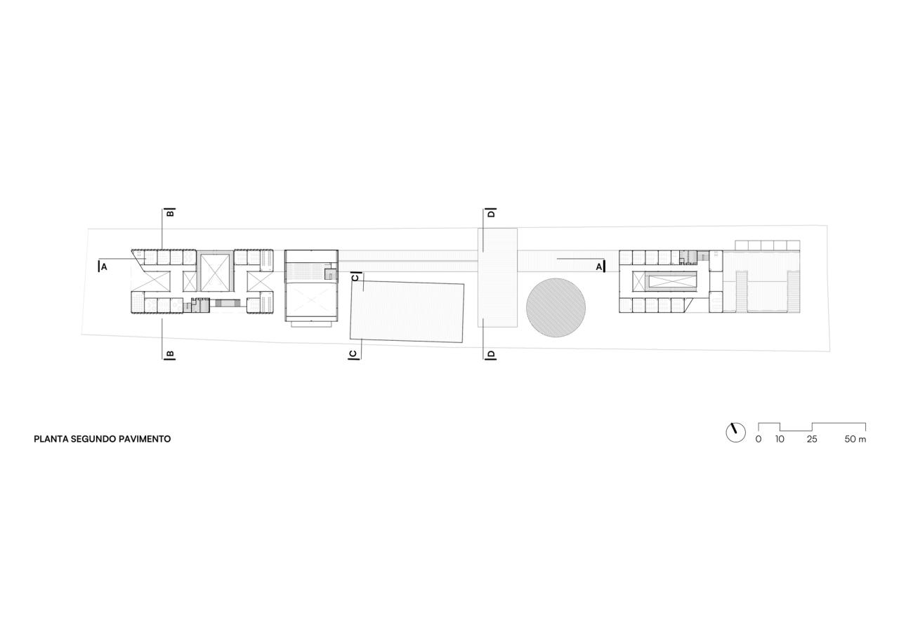
△二层平面图
△剖面图
△剖面图
△剖面图
△剖面图
△体块分析图
△功能分区图
项目信息
建筑师: Rede Arquitetos
项目年份: 2022
摄影师:Igor Ribeiro
厂家: Deca, Docol, Neocom, Sherwin-Williams, Vão Livre Estruturas Metálicas
主创建筑师: Bruno Braga, Bruno Perdigão, Igor Ribeiro, Luiz Cattony
建筑师: Raquel Leite
实习生: Frederico Leite, Julia Brito, Maiara Lacerda
声学设计: Harmonia
空调系统: Comaru Engenharia do Ar
视觉传达设计: Nativo Estúdio de Design
混凝土结构设计: E3 Engenharia Estrutural
金属结构设计: Holanda Engenharia
建筑安装: Transitar Engenharia e Consultoria
预算控制: Ari Holanda Júnior Engenharia Diagnóstica
景观设计: Gerson Amaral
施工方: WR Engenharia
地点: 巴西,Fortaleza

BIM建筑网










































