南科尔多瓦 (South Córdoba) 位于一个乡村小镇的郊区,北部被广阔的橄榄园所包围,自由之家坐落其中,以其所在的同名街道命名。作为设想的父母的退休之家,它有一个主房间作为客厅和餐厅,厨房,卧室,浴室,两个天井和一个露台,是作为建筑大师的父亲和作为建筑师的儿子合作的结果。该建筑位于一个 7 x 20 米的矩形地块上,并围绕主轴旋转 45°。换句话说,从表面上看,它的定位和位置在一个没有什么兴趣的城市环境中并不理想。
为了与温暖气候下的国内建筑传统保持一致——并直接参考古典住宅、伊斯兰住宅和当地的传统建筑——该建筑的实施策略是基于实现对其周围环境的某种自主性,将一个孤立的建筑定义为一个封闭于外部的整体盒子;然而,它被打开到内部天井,在那里家庭生活成为中心舞台。
该项目寻求一种建筑和建筑系统,只需很少的元素就可以被一个家庭作为一个轩昂的家,并且可以以最快和最有效的方式建造。
该项目坚定地致力于使用对环境影响小的当地材料,并采用被动式空调系统。 太阳辐射在冬天被捕获,在夏天使用移动的木制百叶窗避免。 热桥被最小化,交叉通风和热惯性被最大化,以极低的能耗产生透气、健康的生活空间。
这座建筑的方案、结构、施工和舒适度都是由所使用的材料的质量所产生的统一战略来解决的。这些材料主要来自同一个城市,并存在于当地的建筑中。
项目图纸
△基地示意图
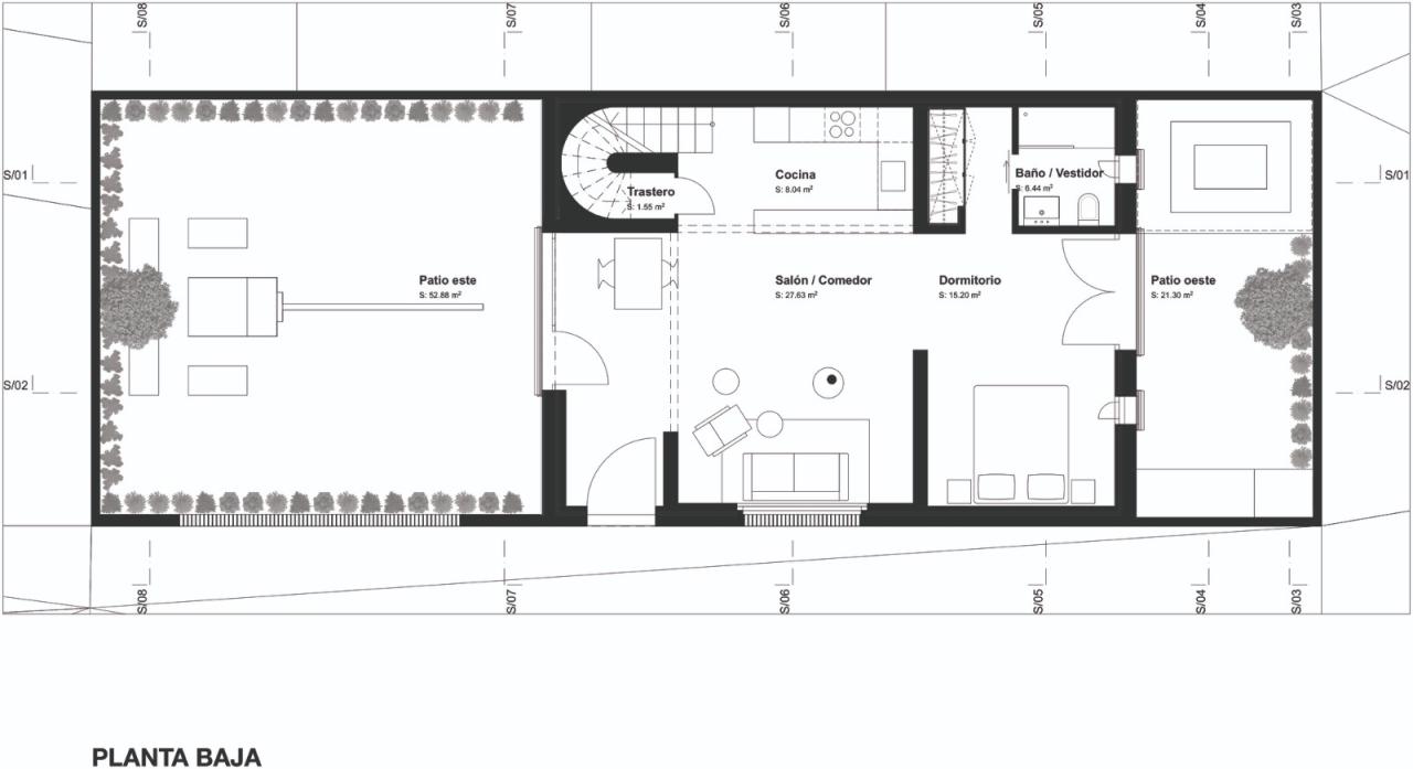
△一层平面图
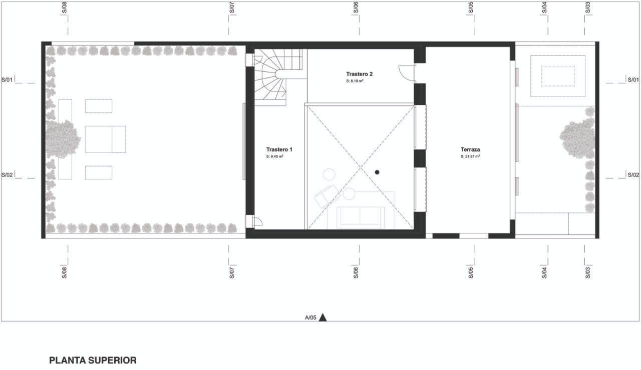
△二层平面图
△剖面图1
△剖面图2
△剖面图3
△剖面图4
△剖面图5
△剖面图6
△剖面图7
△剖面图8
项目信息
建筑师: GRAO
面积: 80 m²
项目年份: 2023
厂家: Cortinas del Río, Lampenwelt , Terrazos Andalucia, Tres
主建筑师: Francisco García Ramírez
地点: 西班牙,Encinas Reales

BIM建筑网

















































