若昂佩索阿是一个热带沿海城市,沿着广阔的旅游海滩发展出规则、平坦的城市结构。Ba’ra 酒店拥有 126 间不同面积的客房-22,32,52 和 72 平方米-位于一个面向海滩的街区,可从卡布兰科大道抵达进入。这条街道是一条与海滩平行的车辆轴线,一条自行车道,也是步行者、运动员,流行节日的娱乐空间。
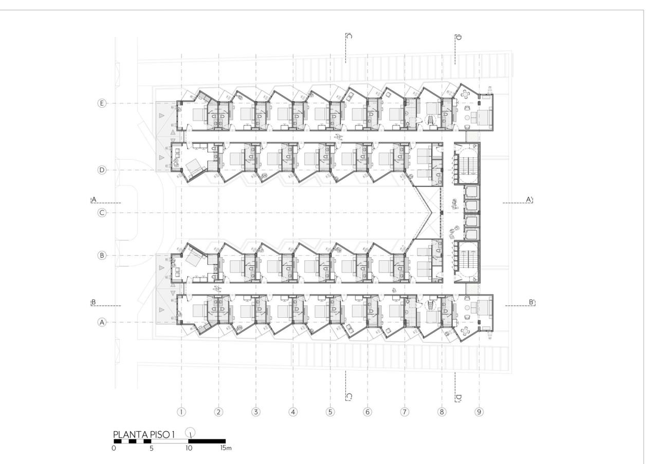
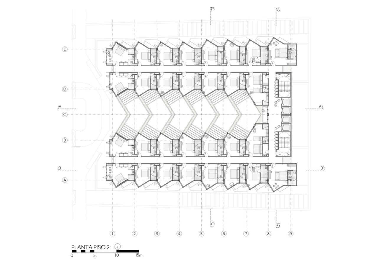
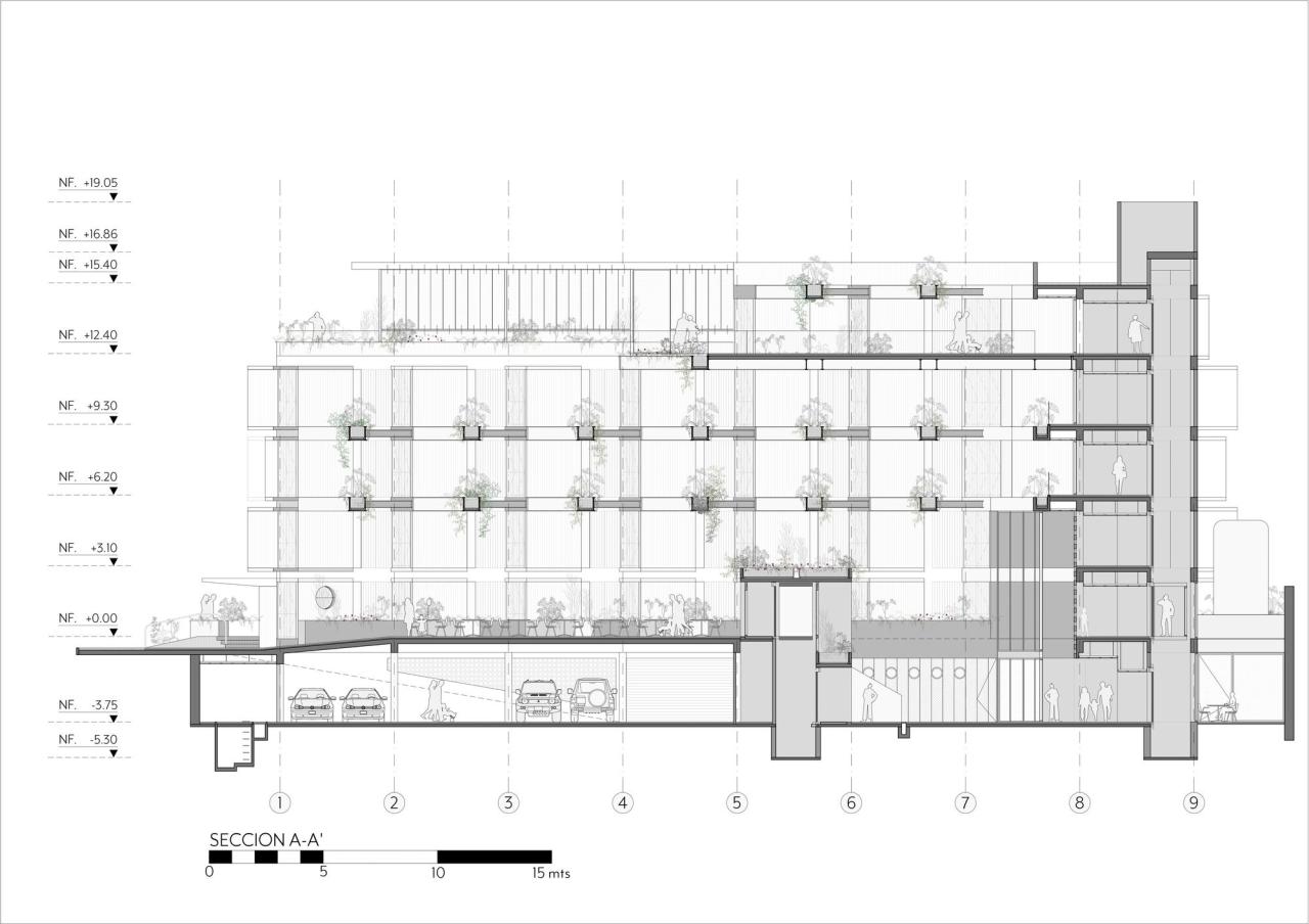
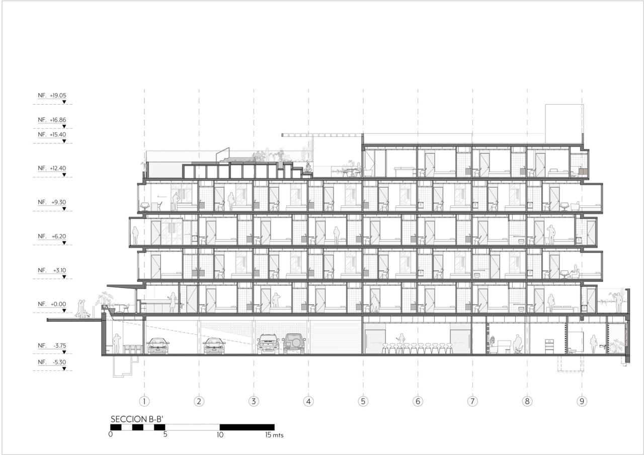
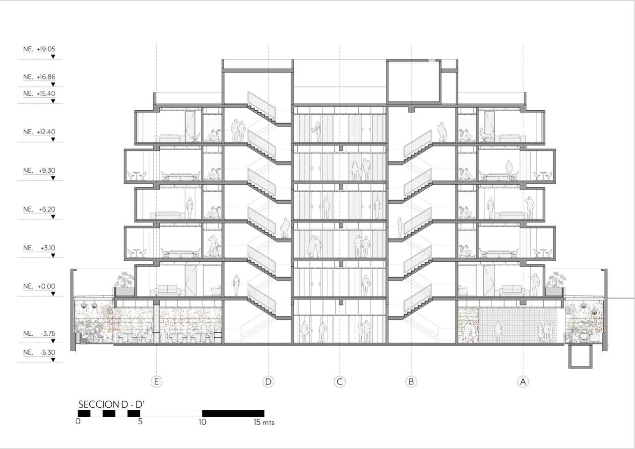
面对这些气候和城市特质,以及市政法规只允许海滩附近建筑五层的高度,我们提出了一个“U”形平面的建筑,从而产生一个半公共的中央空间,可用于与城市生活和海滩相关的酒店活动。通过这种方式,游客可以步行进入酒店,穿过由金属藤架和空中花园,然后下到自然采光的地下室的大堂和餐厅区。我们沿着“U”形对称地布置了所有的房间,从而产生了一些向外看的房间和其他面向中央空间的房间。
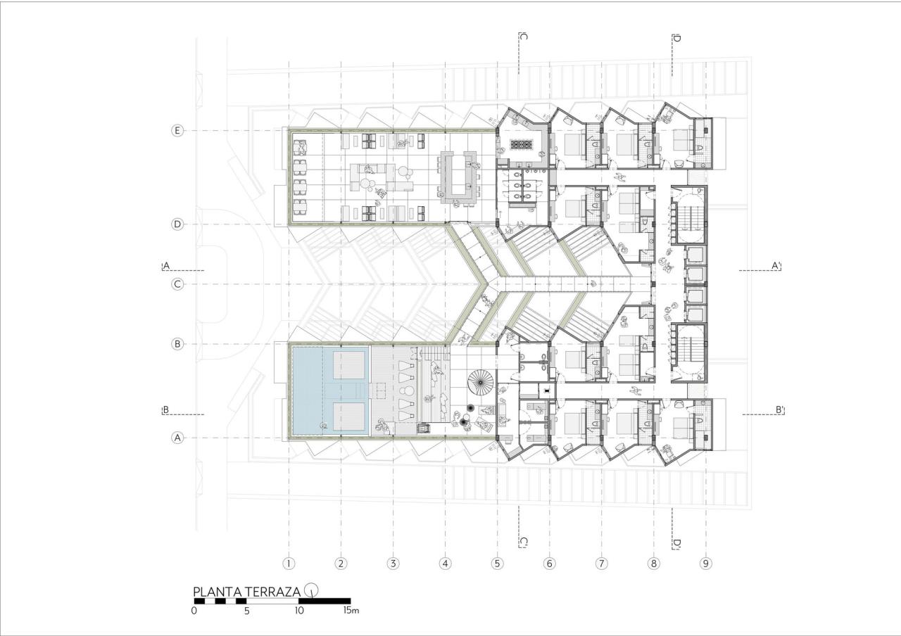
除此之外,我们使用交错的对角线悬臂让每个房间都能看到海景。在最后一层,我们在金属藤架上设计了一座中央桥,它通向两个带有餐厅和游泳池的露台,用户们可以从这些空间中观察到中央空间以及城市和海洋之间强烈的活动。最后,每个房间都有实用的窗户,通过交叉通风和金属百叶窗来控制阳光和保持隐私。
项目图纸
△一层平面图
△二层平面图
△三层平面图
△四层平面图
△露台平面图
△剖面图
△剖面图
△剖面图
△剖面图
△立面图
△立面图
△立面图
项目信息
建筑师:Plan:b arquitectos
项目年份:2022
摄影师:Alejandro Arango
主创建筑师:Felipe Mesa, Federico Mesa
设计团队:Cristian Camacho, Laura Kate Correa, Sebastián González Daniela Álvarez, Natasha Álvarez
委托方:H station/Massai Constructora
施工方:Massai Constructora
室内设计:Sandra Moura arquitectos
地点:巴西,João Pessoa

BIM建筑网







































