赫尔辛基市正在重新开发其以前的港口地区,以用于住宅用途。其中一个地区是位于城市中心旁边的 Jätkäsaari 地区,面积为100公顷的废弃货物港口和船坞,完成后将容纳21,000人居住和6,000人工作。由于在地下、海平面以下建造所有所需的住宅停车位将非常昂贵,并且为了减少道路边停车,市政府委托建造了一系列地上停车设施,以满足附近居民在该社区的停车需求。
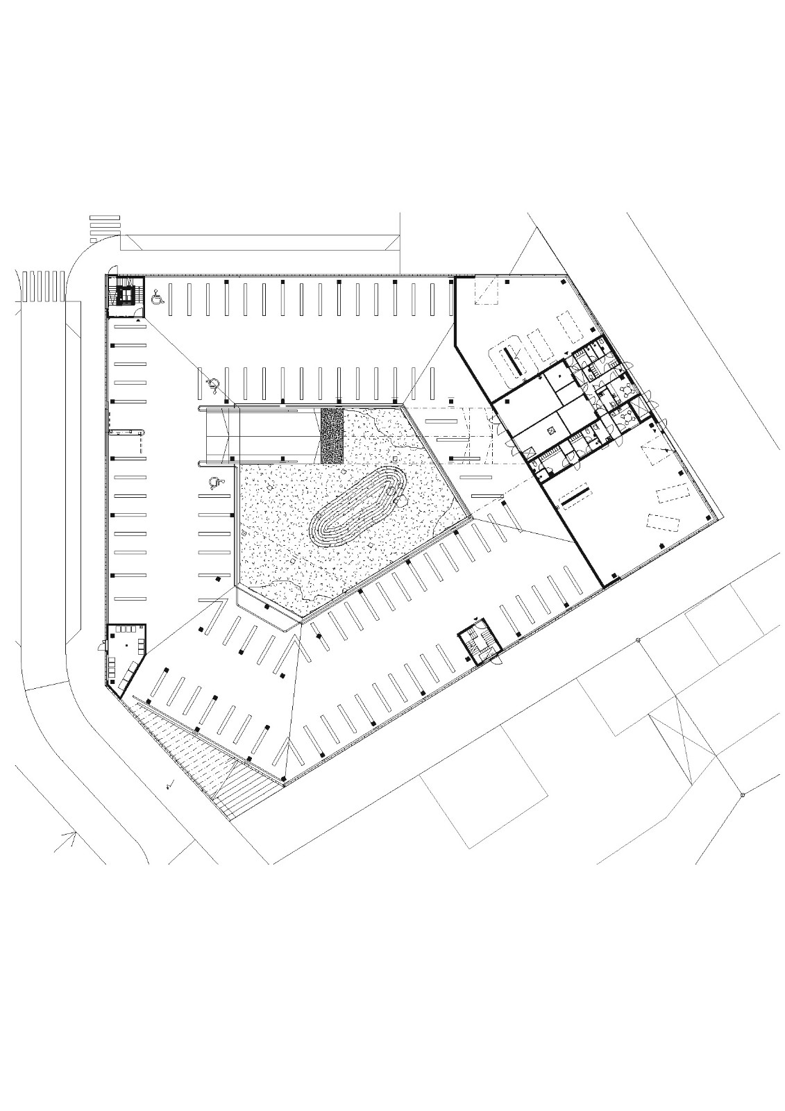
新的五角形、五层高的 Saukonlaituri 停车设施包括六条流线,可停放 600 辆私人汽车,中央庭院被布满巨石、苔藓和蕨类植物的景观环绕。其中五个停车场有顶棚,第六个停车场位于屋顶上。庭院具有双重功能:它既是一个采光井,阳光可通过庭院照射到较低的停车场,又是雨水蓄水池和积雪堆积地。建筑的南侧从入口广场后退,将地面公共空间延伸为阶梯式公园,一直延伸到屋顶。这种解决方案使周围公寓楼的居民可以沿着阶梯爬到正确的楼层来取车,而不是乘电梯。阶梯区域也可以用于野餐和日光浴。
停车设施的承重结构采用现浇混凝土,立面采用镀锌钢框架中的大型中空陶瓷型材制成的预制构件。未上釉的陶瓷条的自然色调与周围各种类型的砖砌建筑柔和地融合在一起。梯田的沙色方案、莱姆草和沙丘状的特征来源于早已在填海造陆工程中消失的 Saukko 的岛屿,现在已仅剩该地区使用的街道名称中可见其存在。梯田也使得近20000平方米的停车设施,在视觉上看起来比它的规模小。
除了作为停车场并提供电动汽车充电站外,该设施还设有一家私人维修公司和赫尔辛基市住房公司 HEKA 的维修车间。除了在 2020 年完成 Saukonlaituri 停车设施外,ALA 目前还在同一地区设计建造稍小的 Melkinlaituri 停车设施。
项目图纸
△总平面图
△一层平面图
△二层平面图
△三层平面图
△四层平面图
△五层平面图
△六层平面图
△立面图
△剖面图
项目信息
建筑师:ALA Architects
面积:19700m²
项目年份:2020
摄影师:Tuomas Uusheimo,Marc Goodwin | Archmospheres
主创建筑师:Juho Grönholm, Antti Nousjoki, Samuli Woolston
建筑设计团队:Juho Grönholm, Antti Nousjoki, Samuli Woolston, Pekka Tainio, Tuulikki Tanska, Rachel Murray, Anssi Luodemäki, Harri Humppi
HVAC:Vahvacon
结构工程师:AFRY Finland
项目管理:Jones Lang LaSalle Finland
主承包商:SRV Construction
机电工程师:Sitowise
地质工程师:Sipti Infra Oy
交通设计:WSP Finland
消防安全:KK-Fireconsult
景观设计:Roslings Manor Gardens
视觉化:VIZarch
地点:芬兰,Helsinki

BIM建筑网




































