住宅 K 是一座位于老住宅区的住宅,其特点是带有山墙屋顶从道路向后倾斜的两层建筑。随着时间的推移,社区发生了变化,房屋被涂上了各种颜色,围栏被重建,窗户被更换,形成了多样化的住宅景观。由于家庭结构的变化和现有房屋的老化,客户决定重建他们的住宅。
新住宅的目标是优先考虑参与和结合,而不是试图实现绝对的形式或短暂的欲望。它呈现出一种似乎从周围环境中原始的出现形式,模糊了其起源和结束之间的区别。最初,一个简单的混凝土网格框架为三层楼建立而成,之后进行修改并向外延伸以塑造整体结构。在框架之间铺设砖块以形成墙壁。窗户、天窗、楼梯、窗帘和浴室的放置紧随其后,每个元素都巧妙地偏离了原始的框架,形成了一个碎片化共存的空间 – 独立但同时又相互联系。
每一层楼都带有不同的功能:妈妈的房间,起居室/餐厅和儿子的房间。突出的横梁创造了共享空间,如通道、走廊和阳台。这些半室外空间不仅提供了楼层之间的连接,还建立了内部和外部环境之间的直接联系,包括城市、自然光和空气。此外,它们为未来的扩展和调整提供了潜力。
采用的施工方法 – 在钢筋混凝土网格框架之间铺设砖块 – 是周围环境中是最常见的。许多邻近的房屋甚至摩天大楼都使用这种结构,通常隐藏在装饰外立面之下。通过暴露和修改内部框架,家庭领域被揭开,让它的起源变得触手可及。通过一个持续的过程,包括将新的可能性整合到一种形式中,并反复修改和改变它以达到平衡状态 – House K 的过程很像居住本身的持续行为。
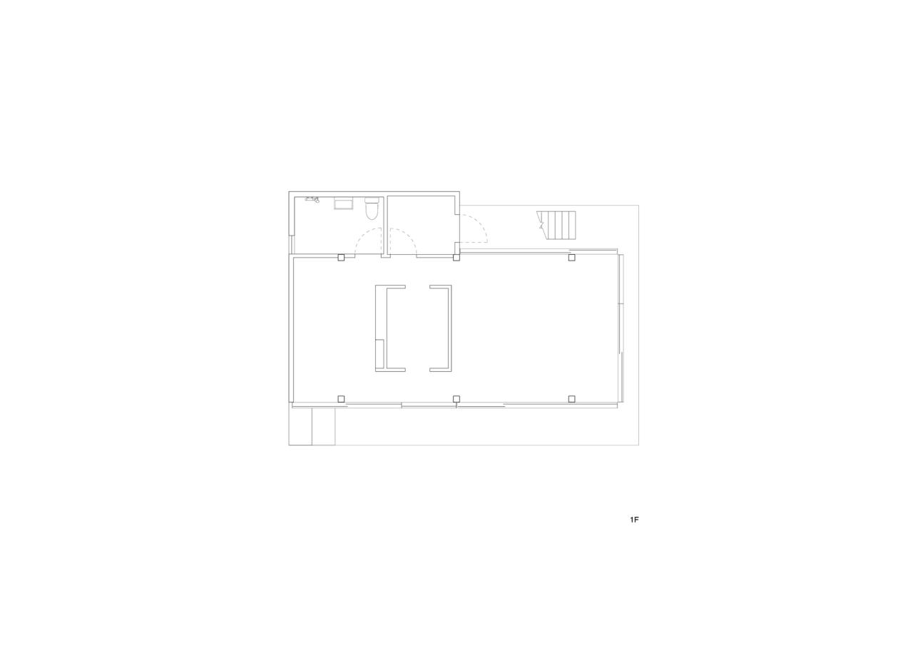
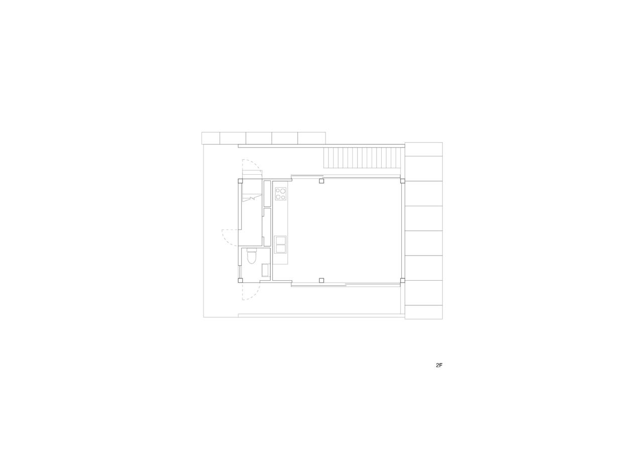
项目图纸
△一层平面图
△二层平面图
△三层平面图
项目信息
建筑师: Bangkok Tokyo Architecture
面积: 180 m²
项目年份: 2023
摄影师:Soopakorn Srisakul
厂家: APK Brick, Thai Soung
设计团队:Bangkok Tokyo Architecture
主创建筑师:Takahiro Kume, Wtanya Chanvitan, Bhoomchaya Prakongpetch
幕墙设计:Wasita Uancharoenkul
结构工程师:Pongrapee Lilatasninukul
承包商:Jarin Dejchutrakul
地点:泰国,曼谷

BIM建筑网





















