兴耀科创城位于杭州市高新区,周边汇聚了众多科技园与产业园。基地两侧均为上世纪末建设的老旧工业厂房与少量新兴的科技园,产业空间较为单调且缺乏可交流的休闲场所,城市服务能力较弱。本案设计不仅聚焦其内在办公功能,如何为周边区域增添积极、开放的城市空间和界面,成为设计中需要着重考量的一环。
开放的城市界面建筑整体布局结合区域环境,呈现向城市开放的特征。结合西北侧人流主要方向,基地北面设置城市入口广场,并作为园区的主要形象窗口。基地南向开阔,且已有城市带状水系、植被等景观资源,故在南侧营造景观花园,形成向南延伸的视觉通廊。设计保留及改造基地东北侧原有的一栋17层办公楼,另外布置三栋高层主楼,与原有老楼一并形成围合式布局,通过高空连廊连接,打造园区整体感,形成“北动南静”的格局。这种大围合大开口大尺度的处理手法,在城市界面创造出开阔大气的建筑形象,又为都市居民创造出尺度恢弘的的城市公共活动空间。
通透的园区空间园区内向空间设计强调人在建筑与场地中的路线选择,考虑使用者在环境中的多种行为可能,保持园区通透性与开放性。连廊灰空间将各个院落串联起来,裙房退台形成多处可停留可休憩的空中花园、使用者自由穿梭,形成低空围合生态漫步圈。底层裙房延续主楼的围合式布局,建筑单体之间自然形成出入口,地面广场绿化交织错落形成舒适的不同标高的景观空间和屋顶花园,形成场地高差,打破原地形的呆板,为园区使用者提供宜人的休憩空间,以下沉式庭院为中心的底层景观提供了内聚型的交往场所。柔性的室外绿色空间将建筑与共享空间柔软串联起来,借由不同景窗、错位设计,实现移步换景的视觉感观,模糊了室内外景观的界限。
自由的多塔楼连体结构设计考虑了高层办公空间使用者活动的自由度, L型围合体量的高空连廊连接三栋主楼,形成多塔楼连体结构,为高层办公提供了最佳的远观南侧山景的场所与充分的休憩活动空间。多塔楼连体结构有效加强园区整体感和提供丰富公共空间的同时,也带来原北面保留建筑的结构构件承载力不足的问题。设计采取有效手段尽可能减少结构加固改造量,基础采取增补锚杆静压桩、钻孔灌注桩,上部结构综合运用增大截面、外包型钢、粘贴碳纤维复合材等各种加固手段,使得既有建筑满足改造后的抗震性能要求。
灵活的功能组合每组建筑体量和而不同,形成一系列共通中有变化的组合关系与空间特色,应对多种办公状态所需要的灵活组合的可能性。在低层裙房中设置较小体量的独栋办公空间,小尺度的体块在拆分与重组中,不同的空间在重叠与交叉中创造出来,形成了庭院与露台空间相连的办公空间。裙房以上的主楼相互独立、通过高空连廊又紧密相连的大尺度空间,为中大型办公所需提供场所。公共空间的灵活可变,使得景观、阳光、空气渗透于室内,强化空间的透明性,给人舒适明朗的体验。建筑内部不仅用门厅、连廊借景、框景,在每个标准层都有位置绝佳之处设共享空间供员工交流、休憩、观景、集体活动等活动需要。大量建筑灰空间模糊了室内外空间边界的同时,也使各个空间之间的联系更加紧密,有利于实现功能转换,可以更加高效、便捷地组织空间关系。兴耀科创城的入驻,填补了该区域城市公共空间的空白片段,为办公带来了愉悦的体验,也为城市界面带来了新的面貌。
项目图纸
△区位示意图
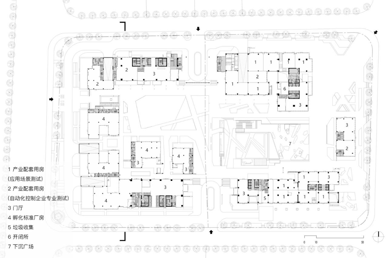
△总平面图
△一层平面图
△平面图
△平面图
△立面图
△立面图
△立面图
△剖面图
△分析图
△爆炸图
项目信息
建筑师: gad杰地设计
面积: 189223 m²
项目年份: 2023
摄影师:CreatAR Images
厂家: Qibin Glass, Xingfa Aluminum
结构设计: gad杰地设计
景观设计: gad杰地设计
室内设计: 矩阵纵横设计股份有限公司
委托方: 兴耀控股集团
地点: 杭州

BIM建筑网































