高地村是一个沉浸式的活历史博物馆,记录了新斯科舍省盖尔语文化的历史。它呈现了身着传统服装的动画人物在伊奥纳,布雷顿岛上一个历史悠久的村庄内重现和诠释传统的农家生活。游客和解说中心被设计为这种体验的新文化和物理门户。
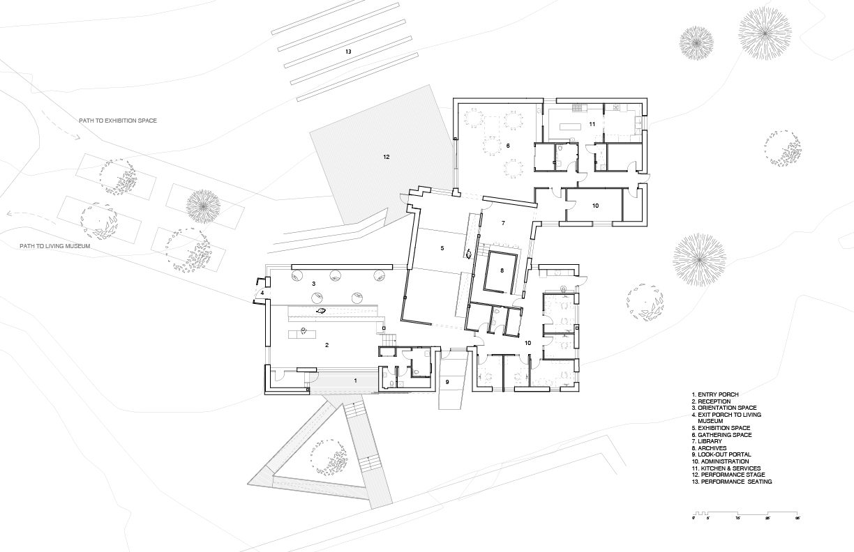
博物馆作为一个整体,以及新中心的特定,是通过一个时间线引领游客穿越历史时期和文化背景。新的解说中心的设计通过一条路径将游客引领在一系列独特但重复的建筑体量中来呈现这种时间旅行。这些建筑体量本身形成了一个类似于高地村本身的重复准民间形式的集合。
这条路径由一系列连续的门槛组成,用内外坡道向上和进入场地,并在过渡到展品、观景平台和通往村庄其他部分的通道处,通过粗锯木材和 corten 钢材料转换来标识。建筑外观使用了与四个体量上陡峭的山形屋顶相配的天然雪松饰面。屋檐处增厚的屋顶,在金属材料中被重新演绎,唤起了盖尔人在苏格兰高地清除时期所采用的主要屋顶技术,即茅草覆盖。这种技术触发了第一波移民潮。
第四个中间体量被隐藏在自己的轴线上,并成为整个建筑群的隐喻性中心,其中包含核心展览和家谱图书馆。这是苏格兰传统黑房子的颠覆,黑房子中的木材内饰被呈现在整个建筑的外部,这里使用了当地的云杉板,以边缘和间隙的形式展示。
原始黑房子类型的植被外部材料在此被翻转到内部,成为纤维木板,也兼具声学处理功能。博物馆场地上还设有一座真实的赫布里底群岛黑房子的复制品。这是新斯科舍省首个使用被动房策略设计的公共部门项目,包括超级绝缘墙和屋顶,三层玻璃高性能窗户和超高效的热回收系统。
项目图纸
△功能分区图
△平面图
△剖面图
△剖面图
△分析图
项目信息
建筑师: Abbott Brown Architects
面积: 728 m²
项目年份: 2022
摄影师:Maxime Brouillet
厂家: Agway Metals Inc., Vetta Windows & Doors
设计团队: Jane Abbott, Alec Brown, Katelyn Latham, Karen Mills, Kim Chayer, Asma Ali, Nick Glover
结构工程师: Campbell Comeau Engineering Limited
总承包商: Brilun Construction Ltd.
机电工程师: Dillon Consulting
景观建筑师: Gordon Ratcliffe Landscape Ar
地点: 加拿大,Iona

BIM建筑网




























