△ 上海科创源内景效果图©FTA
上海科创源坐落于一个既承载历史文脉,又开启未来创新的引人注目之地。项目的建设旨在重新振兴这一区域,传承百年前的科创启蒙,容纳今日尖端的科创产业。
FTA在设计中一向追求创新、高效和健康的建筑环境,因而在建设上海科创源时,团队将以WELL健康建筑认证的最高级别为目标。这里将成为充满活力和灵感的空间,让人们的创造力和幸福感得以充分释放。
△ 上海科创源塔楼效果图©FTA
01 近代科创之源
本案基地位于1929年的“大上海计划”核心区。“大上海计划”是自主引进西方城市规划理念的重要尝试。
长海路街道334、336街坊是该计划仅存的历史居住建筑群和重要的科研建筑所在地,堪称“大上海计划”科研居住历史风貌集聚区。
项目范围内有两幢历史保护建筑:民京路274号,是中国工程师学会的重要保存建筑,代表中国近代科创、中国近代工程学的起源。民京路200号,是中国建筑设计从传统走向现代的范例之一。在上海科创源建设之际,这两幢与近代科创颇有渊源的建筑也将重新溯源、振兴,延续百年传承,融合尖端产业。
△ “大上海计划”科研历史风貌区,图中数字8、9区域为项目地块 图源:virtualshanghai.net
02 城市赋能:一面科技,一面文化
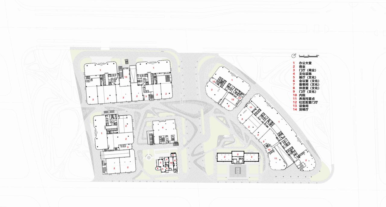
上海科创源项目位于杨浦区长海路街道,规划东至国京路,西至闸殷路,南至014-02地块,北至殷高东路,由2栋历史保护建筑与7栋新建筑组成,项目总建筑面积约14.6万平方米,涵盖了写字楼、商业、文体等业态,协同产业社群。项目旨在创建刚柔并济的“科创生态圈”,全力打造文化可传承的城市更新示范街区与创新可持续的数字产业总部社区,力求以“一面科技、一面人文”精神内涵,承载继往开来的光荣使命。
△ 项目区位,多重价值叠加的城市节点©FTA
规划及建筑设计中,项目采用了“穿街引园”的手法,以文化为支点,城市空间为导向,连接从五角场的“商业环”到三门路立体“办公环”。项目地处“大创智宇宙”的北门户,形成独特的“文化环廊”,全方位为城市赋能。
△ 上海科创源鸟瞰效果图©FTA
03 24小时有活力的科创社区
上海科创源将提供全天候的配套设施和服务,为创业者、研究人员和学生们创造一个持续交流和启发的平台,让他们的创造力在这里充分迸发,从而为科创社区注入持久的活力,从功能布局着手打造“24小时有活力的科创社区”。
△ 分析图-24小时有活力的创新宇宙©FTA
设计打破传统办公“组织孤岛”的空间配置,打造更包容、更多元与更链接的垂直社区。例如,空中8—9层的空中大堂,既可以通过灵活分割让两家企业分别使用,且上半段使用企业可将此作为空中第二大堂提升空间价值;又可以作为一栋总部整体使用,形成面向内部空间的能量中心,成为新品发布、高端展示、学习培训、企业庆典、员工非正式交流的场所。
FTA注重营造促进创造力和思维发展的空间,为人们提供一个灵感迸发的环境。上海科创源文化中心作为科创源的创意中心,将激发人们的想象力和创造力,成为一个理想的工作和灵感场所。在这里,人们可以与同事、合作伙伴或朋友共享创意,探索新的想法和项目。
△ 园区内景效果图©FTA
04 跨越时间的建筑
本案建筑整体横向柔和的流线造型,回应了区域内上海现代竖直线条(streamline moderne)风格以及包豪斯(Bauhaus)风格的历史建筑,同时也体现着项目所承载的未来感使命与期望。建筑倒圆角的处理除了是对历史的致敬,也是一种更亲人、更科学的空间设计,让人行动线的转折变得更加柔和顺畅。
△ 沿街效果图©FTA
△ 模型照片©FTA
色调上,建筑以淡雅的暖色融入杨浦区域的城市主色调。淡淡的暖色在一天中不同的时间段内随着光线明暗而变化,为五角场区域门户增添低调的璀璨。同时,新建建筑与整体江湾历史风貌相协调,成为历史到未来的过渡。
从历史到未来,是一个时间的概念,并且是需要人参与的时间概念。设计所期望的是将使用者带入这个永恒的时间里,引导他们体会历史,创造未来。项目如同穿越宇宙的脉冲,与使用者热情的心跳共鸣,用源源不断的创造力刻画未来。
△ 露台场景效果图©FTA
△ 内庭院冬季雪景效果图©FTA
05 健康绿色的数字社区
绿色、生态且富有活力的室外开放空间,对于园区品质至关重要。本案的景观设计延续了“一面科技,一面文化”的规划理念,营造葱郁绿植与水景交织的生态内核,促进新老建筑空间的自然融合,并植入了纪念广场、海派花园、曲水中庭、流云长廊、艺展草坪等丰富活动场景。项目经过细致策划,以满足科创社区日益增长的多元化活动需求,实现文化街区与科创场景的多元融合。
△ 园区内庭院效果图©FTA
在曲水中庭,设计团队结合场地高差巧妙设置了曲水吧台和户外剧场。人们可以在水景边观赏老建筑,也可以在剧场中与街头艺人互动。运营方可以在这里举行常规的小型路演活动或者社群分享,为园区带来更多文化与共享氛围。
△ 首层商业室外空间效果图©FTA
靠近首层商业的户外空间被设计为一条富有科技感的休闲长廊。平日里,这里提供户外休闲餐饮与会谈,并可成为两侧展览馆与文创商业的室外拓展空间。园区节庆日,广场上可举办各式主题市集,让园区不同楼层的办公人群有更多交流机会。基于运营场景而设计的科创景观体系有助于持续激发园区活力,提升企业品牌形象。
△ 首层商业室外空间效果图©FTA
未来,上海科创源将以“WELL健康建筑认证”最高级别标准来进行建设。WELL体系被业内称为“建筑界的奥斯卡”,通过测量、认证、监测空气、水、营养、光线、健康、舒适等建筑环境特征,最大限度提升建筑环境中人员的健康和福祉。
△ WELL健康建筑标准©FTA
06 结语
上海科创源将是集历史积淀、国际视野、设计创新与商业价值的科创社区典范。FTA在产业设计和创新区领域的专业能力及品牌影响力,为该项目提供设计驱动的品牌塑造方案。
设计团队以激发创新和推动科技发展为使命,一体化设计为方法,致力于打造一个既保留历史风貌又引领未来的创新中心。通过融合百年科创文化遗产与最尖端的科技产业,项目将被塑造成一个充满活力和创造力的创新社区。
△ 园区内景效果图©FTA
设计图纸
△ 总平面图©FTA
△ 一层平面图©FTA
△ 东立面©FTA
△ 南地块剖面图©FTA
△ 模型照片 ©FTA
项目信息
项目名称:上海科创源
客户名称:上海杨浦科创集团
项目地点:上海市杨浦区长海路街道334、336街坊
用地面积:31,862平方米
建筑面积:146,060平方米
设计单位:FTA建筑设计
方案状态:在建

BIM建筑网




























