中国国际进口博览会是世界上第一个以进口为主题的国家级展会,也是中国对外开放的重要窗口。上海西虹桥徐泾作为国家会展中心所在地,和进博会永久举办地,每年11月进博会期间都会流动数以万计的客流。
本次我们在上海西虹桥徐泾镇中心,以“虹桥之翼”为概念,打造了一幅展现流线与速度感的立面画卷——上海新虹桥灿辉希尔顿五星级酒店,作为国家会展中心和虹桥商务区的重要配套支撑,建筑与虹桥机场形象相互呼应,犹如一对展翅高飞的羽翼,傲然伫立于虹桥商务区的西南门户。
目前项目已完成外立面施工,将进入室内装修阶段,预计2024年全面竣工开业。
大虹桥国际商务区西南门户
项目位于上海市青浦区徐泾镇中心,东临联民路,西至灿辉国际大厦,北临沪青平公路,南至张广泾。项目邻近虹桥枢纽,交通便利,距离国家会展中心仅3.5km,属于大虹桥商务区域,地理位置十分优越。
△项目区位
基地东侧现状为灿辉国际大厦、希尔顿花园酒店和虹桥食尚天地商业中心,商业氛围浓厚;基地北侧为健康主题公园,南侧濒临优质河流,景观资源丰富,作为徐泾镇门户,具有广阔的发展前景。
△基地周边概况
顺应城市肌理,打造希尔顿品牌酒店集群
项目整体规划充分尊重周边城市肌理,结合基地东侧现有的灿辉国际大厦、希尔顿行政酒店、希尔顿花园酒店整体形态,设计顺应带状用地将酒店裙房沿基地内部横向一字型展开,并将建筑左右形体往两侧斜向延伸,其中西侧拔高作为酒店客房区,东侧则设置酒店宴会等配套,创造出一种流畅而动感的形体线条,左右形体仿佛两只正在展翅高飞的羽翼。
△项目整体规划
△建筑与周边环境完美融合
建筑的延伸形态与周围环境相呼应,与东侧灿辉国际大厦、希尔顿行政酒店、希尔顿花园酒店一同形成沿沪青平公路城市界面高低起伏的天际线,不仅在视觉上形成一种和谐的整体,实现了与周边环境完美融合,更在功能上形成以希尔顿为品牌的酒店集群,促进区域的商务活动和发展。
△沿城市界面形成高低起伏的天际线
一幅展现流线与速度感的立面画卷
作为虹桥商务区西南门户,建筑设计以“虹桥之翼”为概念,旨在创造一个独特而富有象征意义的建筑形象。
△设计以“虹桥之翼”为概念
#流线与速度感的立面
建筑立面设计融合大虹桥枢纽特色动感元素,结合企业超跑文化背景,引入跑车线条与质感,立面材料选用铝板结合玻璃幕墙、石材,打造极具国际范的简洁、大气、时尚的造型。
△设计融合大虹桥枢纽特色动感元素
塔楼及裙房均采用斜向立面,设计以半包裹的银灰色铝板勾勒出塔楼与裙房的形态动势,强化建筑的速度感与未来感,并利用两端悬挑的飘板为建筑带来了漂浮和水平延伸感,而两翼内切的悬挑式铝板线条又为立面添加了些许灵动,整体造型如同即将展翅起飞的雏鹰。
△整体造型如同展翅起飞的雏鹰
#丰富的造型及互动空间
建筑四周大量利用首层内退,二层悬挑的形式,丰富整体造型的同时,也形成了更多的灰空间,为后期首层商业外摆经营及商业氛围打造,提供有利的空间条件。
△建筑四周大量利用首层内退
三四层则结合宴会前厅及运动健身公共空间,沿河设置室外露台及阳台空间,同时利用裙房及塔楼屋顶空间打造多层级的室外交流空间。
△沿河打造多层级的室外交流空间
#一体化的美学设计
酒店入口雨棚与裙房轮廓线条采用一体化设计,建筑师以流动的线条勾勒出建筑轮廓,雨棚如同裙摆从裙房流淌而下,并将酒店入口形体在一二层向内流转,飘逸的雨棚造型,配合V型交叉立柱以及两层通高的玻璃幕墙,营造出酒店入口的流动感与现代感。
△入口雨棚与裙房轮廓线条采用一体化设计
同时建筑灯光也采用一体化设计,塔楼造型中,设计在建筑外圈流动的线条与端部飘板,以及层间的横向装饰线条中预留灯槽,将灯带藏于线条内,保证了白天建筑整体的立面效果,同时夜晚利用灯光对建筑线条进行勾勒,凸显建筑形体的飘逸感与时尚感。
精细化设计成就艺术品质
#凸显流动感和轻盈感的立面材料
建筑整体造型简洁优雅,充满都市感与时代气息,立面材料整体采用了银白色铝板和浅灰色玻璃,通过冷色调相互衬托,突出建筑的流动感与轻盈感。
△极具流动感与轻盈感的立面
其中塔楼主体采用了玻璃幕墙加外挂银灰色铝型材水平横向线条的处理方式,层间三条水平线条向两侧延伸,并在两端顺应整体造型趋势进行收口,凸显出立面肌理的运动感。
△极具运动感的立面肌理
#渐变彩釉喷涂遮蔽设备机房
由于裙房东侧位置主要为厨房和设备机房,为避免内部陈设对立面效果的影响,该部分外立面采用彩釉玻璃进行视线遮蔽,同时为了兼顾宴会包房部分的透光性和厨房设备部分的遮蔽效果,设计采用了由窄变宽的彩釉喷涂,形成渐变的效果,也为立面增加了些许的律动感。
△渐变彩釉喷涂遮蔽设备机房
同时在灯光处理上,为了延续建筑整体的横向延伸感,突出立面的律动变化,对彩釉玻璃采用了内打灯的处理方式,将灯具布置在幕墙内侧层间梁下,并用铝合金挡板对灯具进行遮蔽,从而避免灯带安装对立面效果的影响。
△节点大样
△彩釉玻璃采用了内打灯的处理方式
#局部石材凸显塔楼漂浮感
为突出塔楼的轻盈感,塔楼下裙房部分采用了30mm厚深灰色外挂石材,石材半包裹着裙房玻璃幕墙,同时在西侧悬挑出立面,配合着裙房倾斜的玻璃幕墙设计,整体简洁硬朗的横向石材线条勾勒出稳重且具有张力的标志性立面。
△石材线条勾勒出稳重且具有张力的立面效果
酒店入口处的石材幕墙,在拼缝处理上采用密缝与抽缝相结合的形式。横向相间隔的采用内衬石材抽缝处理,其余采用密缝,同时右侧铝板幕墙顺应石材宽缝也采用等宽凹槽,通过贯通式横向线条强化整体造型的流线感。
△节点大样
△入口石材与右侧铝板拼缝统一强化整体流线感
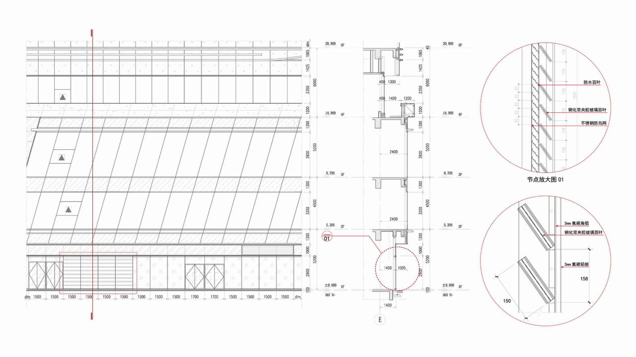
#双层百叶设计保证立面完整性
由于酒店地下配套用房及设备用房进排风的需求,以及燃气井的通风需求,立面上需要设置大量的通风百叶。
△通风百叶设计了双层百叶形式
为保证立面效果的协调性,立面通风百叶设计采用了幕墙化处理,设计了双层百叶形式,外侧采用与立面玻璃幕墙同效果的斜向玻璃百叶,内侧则采用铝合金防雨百叶,从而减小百叶对立面整体效果的影响,保证了立面效果的完整性。
△节点大样
△双层百叶保证了立面效果的完整性
结语
本案期冀创造一个与虹桥枢纽相得益彰的建筑,设计以动感的造型和流畅的线条,将现代建筑与虹桥商务区的活力相结合,营造出现代化、国际范的建筑形象,为区域注入新的活力,它既是大虹桥发展的见证,也是旅人们追逐梦想的起点。
△建筑实景
项目图纸
△北立面图
△南立面图
△东立面图
△西立面图
项目信息
项目名称:上海新虹桥灿辉希尔顿五星级酒店
项目类型:酒店
项目地址:上海市青浦区沪青平公路
基地面积:9444.4㎡
建筑面积:45648㎡
容积率:3.0
设计时间:2018.11-2023.09
建造时间:2021.04-至今
建设单位:灿辉置业(上海)有限公司
方案及施工图设计单位:上海三益建筑设计有限公司
主创建筑师:卢晓刚、蒋文俊
项目负责人:蒋文俊
方案设计:蒋文俊、孙婧雅、王涛、吴文轩、吕宗儒、夏智立、李卫、黄湖、叶绿野、冯昊喆、陈玉立、刘品希、叶若斌、潘茹月
施工图设计负责人:焦峰
建筑设计:焦峰、姜大伟、钱国梁、邢健、李媛媛、李亚丽、陈文娟
结构设计:胡愚、郑鹏、王刚、熊竟峰、黄鑫东、沙正、孔维亮、吴习兵
总图设计:张燕燕、陈哲、倪一娇
BIM设计:韦寅骏、李昕、刘颖杰、俞智璟、姜赵康、桂训威
给排水设计:叶淋、刘军、李亚青、陈欣琳、徐炜栋
电气设计:罗谨、王羿钦、吴婷、谢道明
暖通设计:罗谨、王羿钦、吴婷、谢道明、冯娟娟
技术支持:王晓红、赵斌、王芳、胡文晓、蒋虹、鞠永健、陈英
合作单位
景观设计:MPG丨摩高设计
室内设计:HBA丨新加坡
幕墙设计:安诚傲林规划设计顾问(上海)有限公司
照明设计:BPI
施工单位:宏美建工
建筑摄影:刘松恺

BIM建筑网














































