建成后的博元养老中心,不仅为社区居民提供了日间养老服务和养老居住服务,还为城市片区的养老提供了需求,为城市打造了一座高质量的温馨舒适的现代健康养老中心。
△区位分析©UUA
△项目区域模型©UUA
01 背景
养老与幼教跟大型社区配套,是目前大型社区配套的标准模式。博元养老中心就是在这个大的背景下设计,建造,并且运营的。建成后的博元养老中心,不仅为社区居民提供了日间养老服务和养老居住服务,还为城市片区的养老提供了需求,为城市打造了一座高质量的温馨舒适的现代健康养老中心。
△社区配套新典范:博元养老中心©UUA
02建筑的体量生成
一个优秀的建筑作品,其背后一定有缜密的逻辑。我们因地制宜,采用简单明了的设计逻辑,在稳固的基础中寻求变化与创新。
△建筑体块生成过程©UUA
高度适老化的室内布局
A. 清晰的适老化的建筑流线
项目前期周燕珉教授团队主持进行了项目整体的功能梳理和平面布局建筑内部平面的梳理,高度的适老化平面布局,清晰流畅。与传统布局不同,该项目采用了中走廊的方式,形成不断连续向前的动线,而非使用 “死胡同”式走廊的模式。住宅单元沿着楼层水平布局并环绕着内部庭院,大面积的窗户为内部带来了充足的自然光线和新鲜空气。
B. 便于后期运营看护的平面
建筑值班台的设置尽量让视野最大化,减少非必要的运用的岗位需求。通过空间布局与细节设置,为老人打造如家般温暖的照护空间。让老年群体不仅能得到专业的照料,还能释放情感与内心,安享“离家不离家”的养老体验。
△值班室视野最大化©UUA
C. 高度适老化的设施设计
建筑内部高度适老化。除了常规的适老设施以外,整个建筑在无障碍设计,在建筑色彩,材料运用,建筑灯光照明,导视等方面都作了大量的适老化处理,同时适老化的空间公共配套与景观设计的搭配,使得建筑各个层面和纬度满足养老建筑的需求。
△多维度满足适老化需求©UUA
03简约温馨的材料运用/立面的构成
博元养老中心整个建筑采用的比较温暖的外墙涂料,以建筑的层分线,阳台,以及每个养老户单元为构成元素,打造了一个和谐而又有构成感的建筑体量与建筑立面。
△温馨和谐的立面构成©UUA
在养老中心外部的两个出口处,两个进入康养中心的门头重点的打造,使得入户空间既有实用的功能,也充满着温馨的仪式感。
△充满温馨仪式感的入户门头©UUA
建筑南侧立面的退进式的处理,使得建筑在阳光下光影塑造更为丰富的建筑立面,用简约的材料和丰富的微弱形体退让让阳光参与到建筑的塑造中来。
△阳光下光影丰富的建筑立面©UUA
△阳光下光影丰富的建筑立面©UUA
△阳光下温馨简介的建筑立面©UUA
△阳光下温馨简介的建筑立面©UUA
△夜幕下温馨的建筑灯光©UUA
△夜幕下温馨的建筑灯光©UUA
04贴近自然的室外空间
考虑到老年人行动不便,我们将室外空间进行了最大化的利用,让老人们只需几步便可与自然亲密接触。
△室外空间分析©UUA
A.围合庭院
整个建筑呈现L型,建筑北侧围合出了一个与建筑相互咬合的方形庭院。建筑的围合以及庭院内部的连廊小径绿化的打造,使得老人在庭院中的安全感得以保障,同时整个建筑景观的无障碍设施齐备,为老人的出行运动提供了无障碍的保障。
△庭院内部的连廊小径绿化©UUA
△L型建筑围合的景观庭院©UUA
B.层层楼台,户户有景
建筑的外墙呈现出不规则的退台形态,将一系列不同的功能容纳进来,同时为室内和室外创造出更多的视联系,展示出该项目“为有限空间赋予尽可能多的价值”的设计理念。
我们采取层层退台的方式,一是为北侧预留建筑预留了充足的日照条件,以便后续整个社区的激活计划
△层层退台设计©UUA
二是为每层建筑都预留出了一个空间适宜的绿化庭院,让老人们体验到一步一景的活力生活
△每一层的绿化庭院©UUA
三是减轻了两个山墙面对首层的压迫感,满足容积率的同时,让建筑变得更加的亲和。
△亲和力十足的首层入口©UUA
C.屋顶花园
屋顶上人绿化屋顶的打造,有专属的电梯直达,为养老中心的老人打造了一个屋顶的绿化花园,配合绿植与景观,为老人的生活空间扩宽了户外空间的体验与可以培养住户之间的感情,以促进人与人之间的接触和交流。
△屋顶花园——多重户外体验©UUA
D.户内半步阳台
安康城市气候适宜,四季气温舒适,所以在每户养老单元都有自己的户外阳台,从窗户望出去美丽的景色和城市尽收眼底。阳台的进退阴影关系和立面竖向的木色方通,成为建筑外立面简约的构成关系的要素,同时为阳台产生一定的庇护感。
△南向和西向养老院单元房间©UUA
△木色户外阳台©UUA
05高完成度的建筑设计
建筑通过墙身与立面体系的控制,对材料的有效选择,在建设中的完整性配合,打造了一个高完成度的落地项目,高度还原了原有建筑的效果。
△入口效果图与实景图对比©UUA
△立面效果图与实景图对比©UUA
△道路人视角度效果图与实景图对比©UUA
06成本控制
建筑采用小柱网体系,使得建筑的结构体系造价得以有效的控制。
△结构体系与构造做法分析图©UUA
同时建筑外墙采用真石漆涂料,同时通过单元化的养老室内设计,极大降低了不必要的成本,同时标准化的构件,集采成本优势突出,有效降低了非标构件的成本。
△外墙采用真石漆涂料©UUA
07模术化与标准化设计控制
适老化为我们带来了重要的责任感,我们的应对措施是通过在建筑规模、经济合理的结构和建筑策略方面采取平和的方式,塑造一栋亲和与适老化并存的养老建筑。博元养老中心内的公寓规模标准、设计精良、设备齐全,将建筑的公共空间、便利设施和周边环境作为私人生活空间的重要附加值部分。
△首层平面图©UUA&周燕珉工作室
△二层平面图©UUA&周燕珉工作室
△三层平面图©UUA&周燕珉工作室
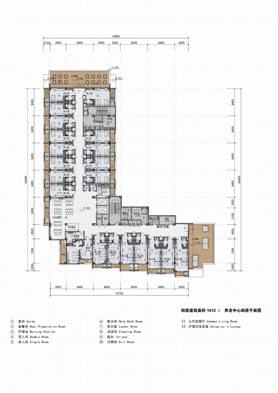
△四层平面图©UUA&周燕珉工作室
△五层平面图©UUA&周燕珉工作室
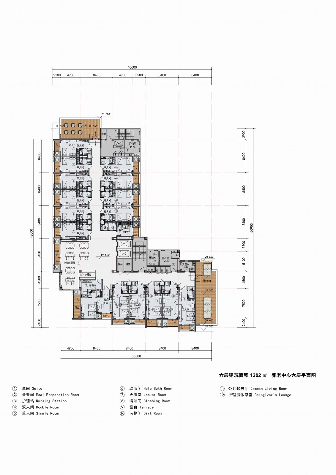
△六层平面图©UUA&周燕珉工作室
△屋顶平面图©UUA&周燕珉工作室
08总结
迈入老年,是每个人都会经历的过程。如何健康、安心、无忧的漫享晚年,是当前社会老年群体面对的现实难题,也是未来的我们将要面临的一大挑战。面对规模日益激增的老年群体,构建适宜老年人生活的物质空间环境,是当前养老形势的切实需要,亦是支撑我国养老事业长期发展的基本条件。适老环境建设需要更多地“以人为本”,需要根据老年人的生理特征及心理特征,准确把握老年人的需求。我们希望,如今的城市,不仅要成为年轻人为理想奋斗的场所,更要成为老年群体安度晚年的颐居之地。一处倾注了“善意”的养老中心,若能在城市中引发多米诺效应,进而产生更多充满“善意”的适老活动空间,最终定能让整个城市都充满“善”与“美”。
项目信息
项目名称:博元养老中心设计
项目地址:安康,陕西,中国
设计时间:02/2019-11/2020
项目规模:1,0000 sqm
建筑方案设计: UUA建筑师事务所
主持合伙人:李泳征,李其郅
设计团队:邓亮,姜腾,贺文博,马兴华,方泓博,吕延锋,张艺豪,赵冰,王发璐,迟冰玉
养老顾问:清华大学周燕珉工作室
养老顾问团队:周燕珉陈星邱婷
室内设计:北京江河创建建筑装饰设计研究院有限公司
室内设计负责人:丁春亚
景观设计:水石设计,景观事业四部
施工图设计:深圳华颐国际养老设计有限公司
施工图设计团队:李建,杨哥,陈阳,高翼,熊志峰,石有钢,徐明健
建筑摄影:直译建筑何炼

BIM建筑网





































