△傍晚时分的智慧工厂
△对面人行道看办公楼
引子
从2020年初开始,经历三年的疫情时期,申亿智慧工厂得以建成投入使用。
项目位于长沙市雨花经开区,紧邻长株潭绿心。作为国内标准件行业的引领者,申亿智
慧工厂的设计以创新为驱动力。设计重点关注流线与尺度、界面与空间,试图在功能与形式之间找到一个适宜的平衡点。
△园区入口空间
流线重构:互联工厂
园区的整体布局以功能为导向。作为主体的生产用房及库房占据园区主要的场地,并根
据生产工艺流线,形成两列并行布置。沿城市主干道为研发及办公楼,作为主要的形象展示面。园区南端为食堂、宿舍等生活配套区。
△智慧工厂鸟瞰
△俯视空中连廊
业主在设计之初就提出有一条参观流线的需求,作为展示、游览的用途。园区在两列并行的厂房之间,置入一条红色穿孔铝板的空中连廊,在常规流线的基础上重构流线。空中连廊在架空层串联起各生产用房,可直接进入生产区夹层参观,同时也可通过室外楼梯下至地面层。
多条横跨道路的连廊层层叠叠,在空间上形成极强的节奏和秩序感,同时在超越常规尺度的生产用房之间作为调和剂,获得相对适宜的近人尺度。连廊也是园区工间休憩的场所,行人来往上下,为机械冷漠的园区增添活力。
△从雨棚看向空中连廊
△连接上下的楼梯
工业尺度:面向城市的门
工业建筑作为以机器为主要使用者的特殊建筑类型,决定了其空间体量的尺度是超常的。
延续层叠的空中连廊节奏,在建筑的沿街面,设计了一道巨型“门”的形态。通过体量的穿插拉结,办公楼出挑的雨棚,在空中跨越道路,联系起主轴线两侧的建筑,形成了面向城市的“门”。
△面向城市的“门”
“门”作为园区的主入口,在尺度上回应城市空间。七十米跨的巨型门,极大的增加了园区的展示面。进入园区内部,则成为第一个过渡性的空间节点。
△园区之“门”
△办公楼入口
城市界面:半透明表皮
办公楼面向城市道路。建筑造型尽可能简洁干净,仅在上部出挑一个红色的长方体体
量,形成视觉焦点。其余立面均为匀质化的平面构成。
△办公楼正立面
建筑立面主要采用圆形穿孔铝板表皮,从材料上体现工业建筑的特征。在功能上,穿孔铝板能满足建筑的通风采光的需求,同时,铝板与外墙之间的空隙可形成气流,降低建筑使用能耗,低碳节能。
△立面细部
铝板选用两种不同孔径的穿孔,交替排列,形成秩序,打破立面的单一性,增加其变化。另外,与孔径变化相对应,铝板在立面上略有进退,在光照下,极富韵律和光影效果。
△穿孔铝板交替的光影
灯光从建筑内部透出来,在立面上获得一种半透明的效果,形成朦胧的美学氛围。
△建筑与城市的夜晚
公共空间:内外互联的楼梯
园区以生产为核心,办公楼则承载主要的公共功能。
通过室外空中连廊,可从生产用房到达办公楼。办公楼内部,除大堂外,设计一处六层通高的室内中庭,各层设有空中平台,作为内部休息的公共空间。中庭一侧为红色穿孔铝板饰面的外挂楼梯,联系上下各楼层。
△通高的室内中庭
在办公楼沿城市支路一侧,同样设计了一部串联六层的室外楼梯,楼梯颜色、材质均与室内楼梯统一。外挂楼梯成为流线的终点,在道路交叉处结束,其功能不仅只是满足疏散的需求,同时也成为室外公共空间的一部分。
△俯瞰建筑与城市关系
△道路转角处的室外楼梯
园区流线由外至内到达办公楼内部,办公流线由内而外再到建筑立面,形成一条贯穿一体的完整流线。
△转角处看办公楼
△近看外挂楼梯
结语
作为工业建筑设计的一次尝试,设计过程中一直在思考工业建筑与公共建筑之间的关系。
设计希望通过空间流线的重构,赋予工业建筑以公共属性;通过对高大空间、城市尺度的回应,拉近使用者与城市的距离;通过立面的营造,消解人们对于工业建筑形象的刻板印象。
经过一段时间的使用,红色的架空连廊变成了园区的一个标签。从业主的使用反馈得知,红色连廊已是周边片区参观的一个网红打卡点。建筑在满足功能之余,能为使用者带来额外的附加价值,也是对建筑设计工作的一种激励。
项目图纸
△研发办公、生产车间一层平面图
△研发办公、生产车间二层平面图
△下料车间、精加工车间二层平面图
△立体成品库一层平面图
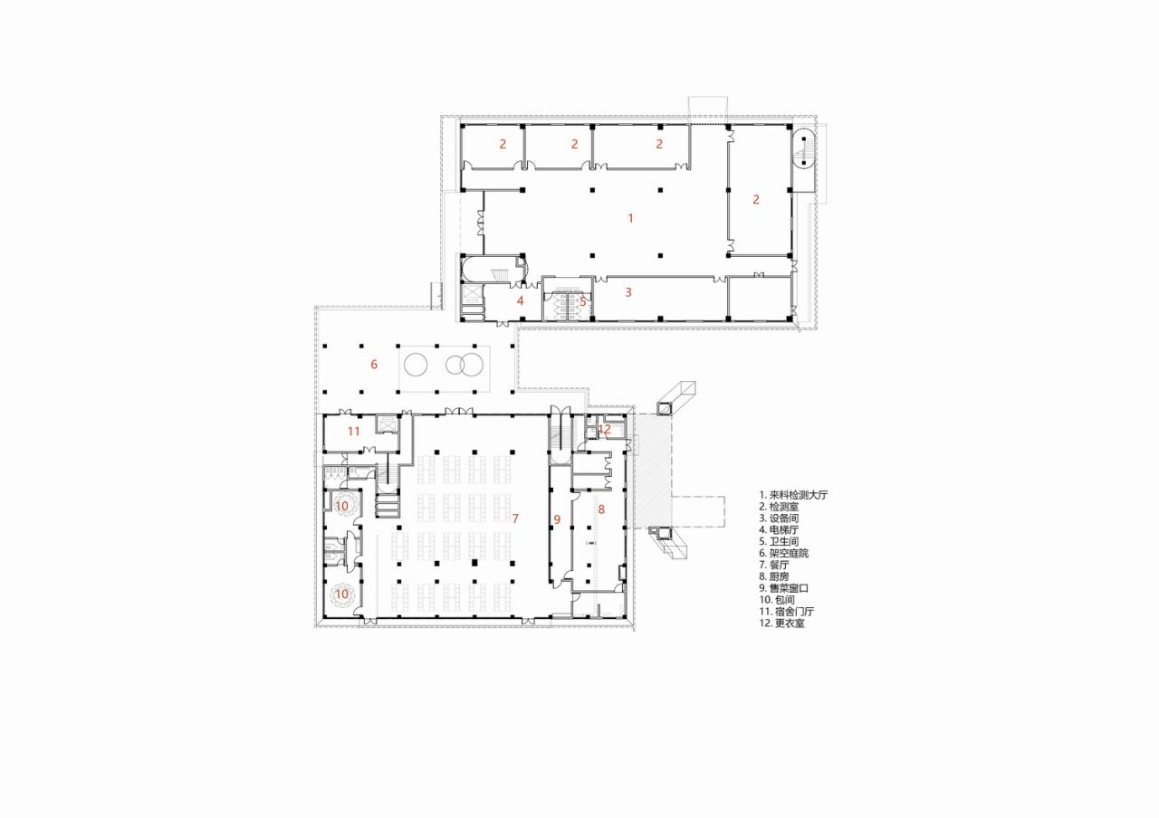
△来料检测、食堂宿舍一层平面图
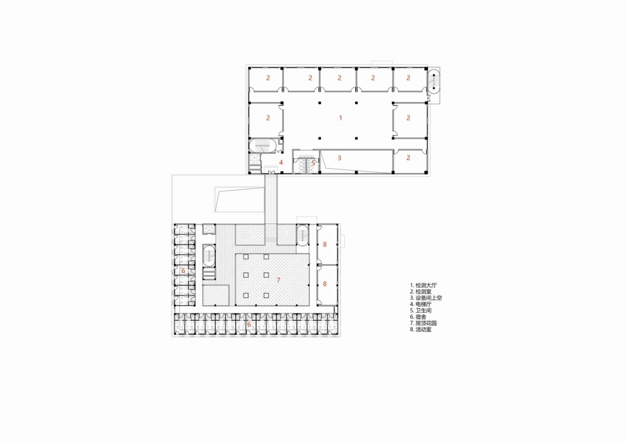
△来料检测、食堂宿舍二层平面图
△研发办公北立面图
△研发办公、生产车间西立面图
△研发办公、生产车间东立面图
项目信息
项目名称:申亿智慧工厂
地点:湖南,长沙
设计单位:中铁建工集团 长沙市规划设计院有限责任公司
总建筑师:马庆
项目负责:丁晶
项目主创:朱琳、金超
设计团队:肖婧、罗应松、章小桐、贺斌、李志奇、王彤彤、周熠、金文杰、吴杰、莫水健、张甜甜、刘华峰
设计时间:2020年6月
建成时间:2023年6月
建筑面积:38358.45平方米
结构形式:钢筋混凝土+钢结构
摄影:山兮摄影

BIM建筑网

































