本项目位于浙江省海盐县中心城区,南侧为集中展示桑蚕文化的陌桑公园。项目包括两栋教学楼、门厅、食堂、行政楼以及地下车库等,设计内容包括建筑与室内环境一体化设计。
设计理念
本次方案设计构思主题为将“桑蚕文化”融入“自然主义教育”的叙事场景中,致力于塑造一个自然、温馨、趣味的幼儿园环境。
总平布局是基于场地肌理演化而来,如同桑叶的肌理,从而形成12个形态各异的院落空间。通过这些不同类型、标高的院落组织通风采光,达到“以小见大”的效果,充分利用有限场地,解决项目用地紧张的挑战;同时借助坡道、楼梯、走廊等路径,将这些场景与其物像、界面、活动等编排为一系列幼儿日常生活的时空情节。
通过4种不同的拱顶以及相互间不同的组合方式形成主要建筑造型,适应幼儿多样化功能需求,满足不同年龄段儿童的心理需求;利用“阡陌”概念来对平面与立面进行组构,形成各种尺度的界面与布局、适合幼儿认知的特点。
技术创新设计技术创新方面,其一是运用了基于空间句法(SPACE SYNTAX)的线索甄选技术,优化平面布局,利用楼梯、坡道、廊道等线索串联不同功能场景;其二是运用了基于视域分析(ISOVIST)的界面设计技术,优化主庭院与室外活动主空间的阻隔,增强空间连续性与开阔视野;明确视线焦点,确定需要营造和处理的关键界面;其三是运用了基于符号隐喻(SEMIOTIC INDEX)的立面形式设计技术,在蚕茧意象主题下,大中小班、不同功能的建筑单体在色彩材质立面形式等方面有所区分,营造出多样的跳跃的有分形肌理的建筑立面。
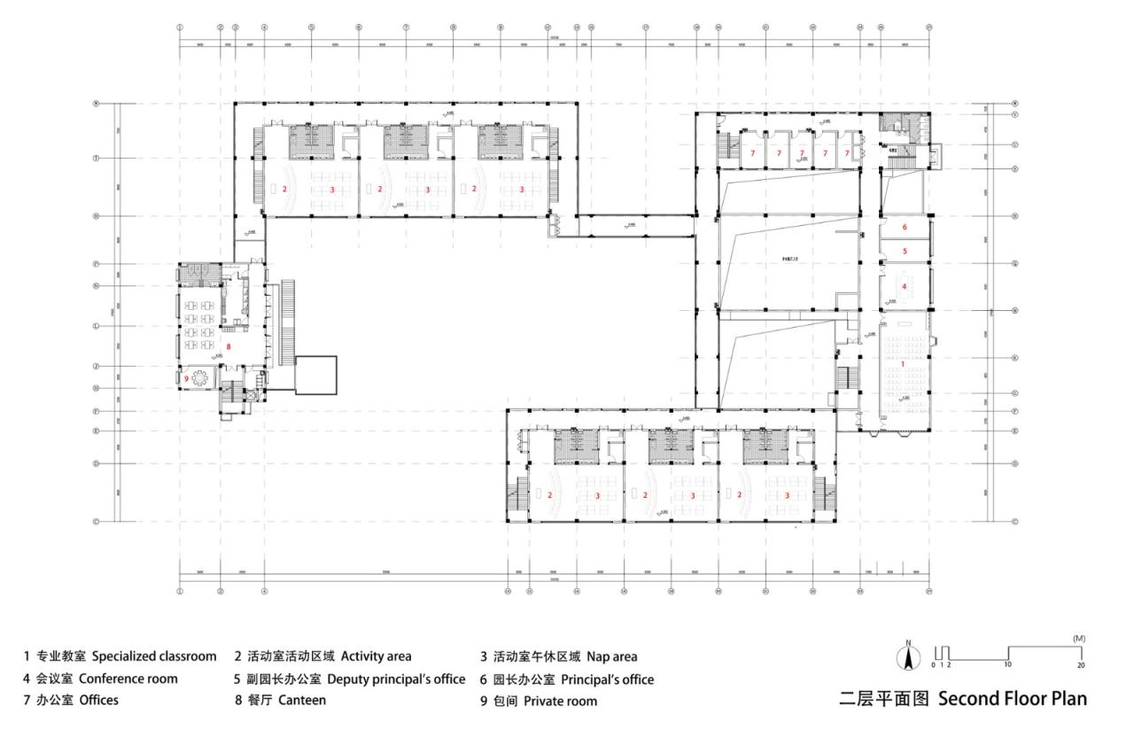
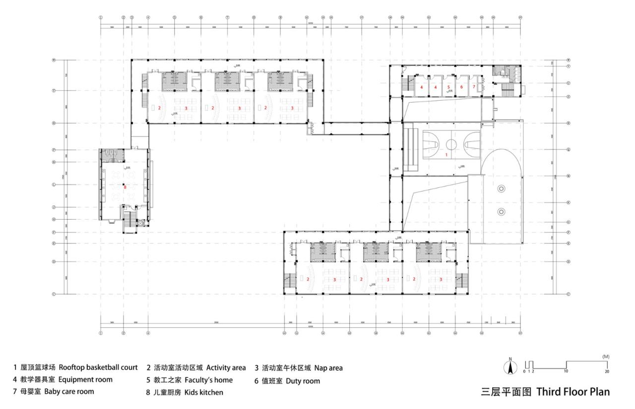
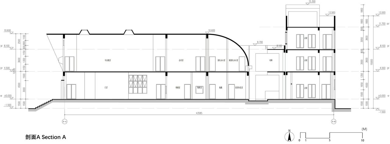
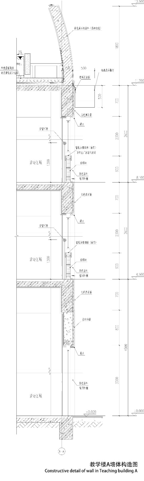
项目图纸
项目信息
建筑师:上海交通大学城镇空间文化与科学研究中心
面积:11955m²
项目年份:2021
主创建筑师:陆邵明
结构设计:上海交通大学设计研究总院有限公司
景观设计:上海交通大学城镇空间文化与科学研究中心
施工方:嘉业卓众建设有限公司
合作方:上海交通大学设计研究总院有限公司
委托方:海盐县万禄幼儿园
地点:嘉兴

BIM建筑网
















































