不破不立,顺势而为
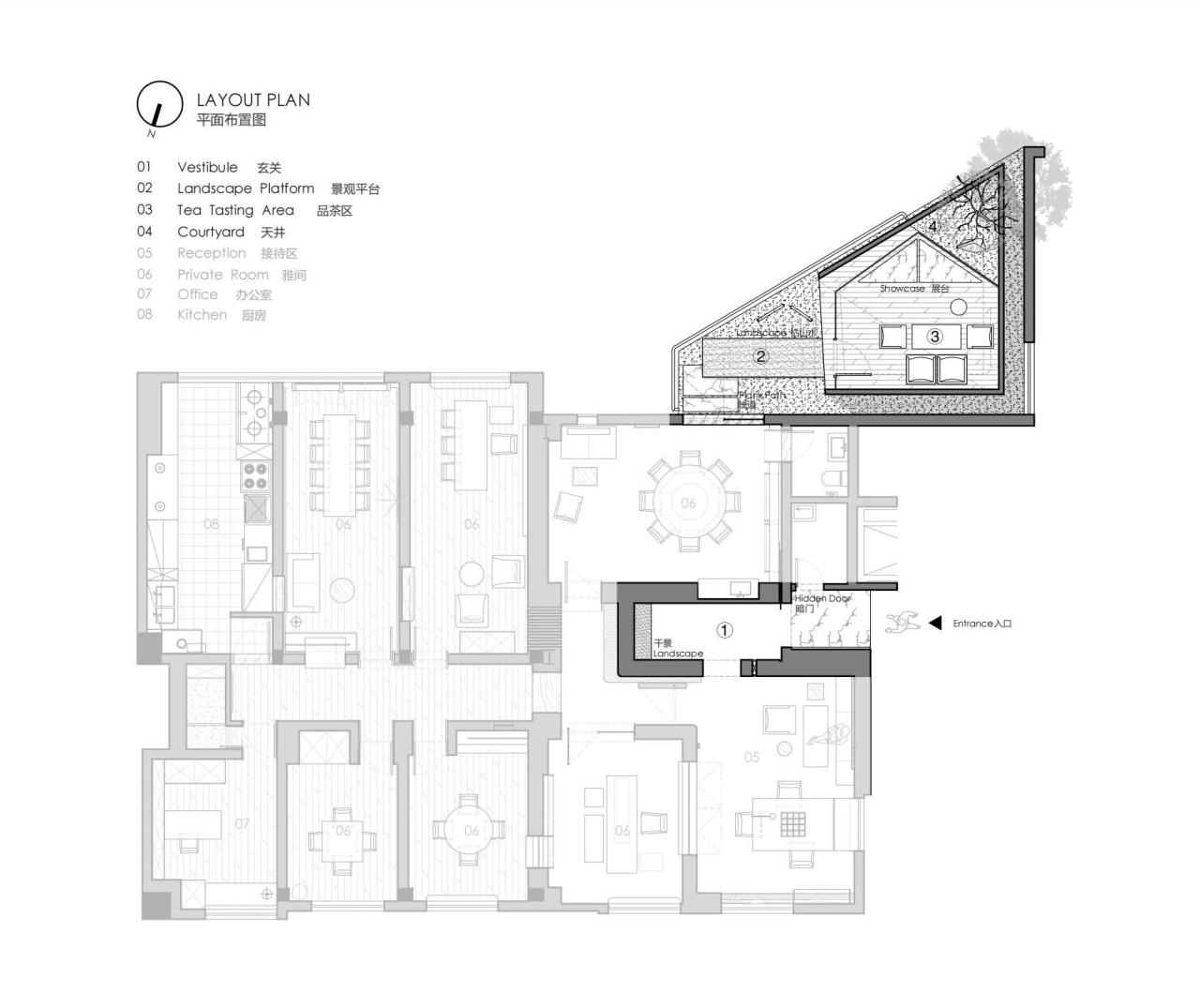
受好友委托,设计一个作为平时交友、品茶、阅读的茶书房,后取名为「知舍茶书房」,由于室内空间不能满足一些功能需求,考虑把外置阳台充分利用,将室内空间向外拓展延伸。
△在夹缝中席地而坐 ©苏圣亮
△项目所在位置 ©本哲建筑
阳台处于5号建筑大楼的后侧,位于东北面,阳光照射仅为清晨2小时,其余时间被周边建筑阻挡,不受阳光照射,外界环境恶劣,处于建筑夹缝之中。好友意将此搭建成有特色的阳光房,同时又具备私密性。
如何破解以上不利的局面,我们提出了不破不立设计原理,顺势而为。
△夹缝中的建筑 ©苏圣亮
△阳台建筑与主体的关系 ©苏圣亮
△悬浮在夹缝中 ©苏圣亮
首先从功能布置入手,沿区域梯形地带展开,朝北一侧设置景观平台,连通室内外,西南面为休闲品茶区,东南面三角区域为天井空间。
△设计师手稿平面布置图 ©本哲建筑
△冬天清晨的建筑 ©苏圣亮
建筑形态为碳化木折叠多边体,多边体形成的尖角化解了外部的诸多不利。它包裹玻璃盒子,外实内虚,让室内空间的人们心灵得到庇护,同时保证私密性。
△从主体方向看到的建筑 ©苏圣亮
△从阳台看室内空间 ©苏圣亮
多边体顶部与东侧分别开有圆形洞口和拱形窗口,避免阳光直射,让光线从不同角度、不同方向进入,在室内形成光感的多层次。在多边体与玻璃盒子之间形成的天井,植入一棵百年老树,形成内外近景远景相呼应。
△设计师手稿图1 ©本哲建筑
△架空于阳台之上 ©苏圣亮
△枯山水阳台局部 ©苏圣亮
△冬天的一束暖光 ©苏圣亮
△知舍茶书房主体入口处 ©苏圣亮
△分析图©本哲建筑
黑色碳化木与超白玻璃构成了建筑外在肌理,褐色碳化木地板为室内肌理。简洁统一,虚实相间 。
整个建筑架空于梯形阳台之上,既能防水防潮,也可以便于以后吊装,再次利用,达到资源的节约化。
△盛夏建筑围合在自然景观中 ©苏圣亮
△阳光下的建筑肌理 ©苏圣亮
夏天的清晨,一缕阳光探入这座夹缝中的建筑,仿佛新的生命在此接受自然的洗礼。在拍摄的空隙,蒋华健老师与苏圣亮老师席地而坐,促膝谈心,在夹缝中的建筑内对话很有意义,虽然身处于夹缝中,但他们却感到身心愉悦与平静,没有被外界环境所打扰。
△室内外的无界限 ©苏圣亮
△光与影的关系 ©苏圣亮
△百年老树 ©苏圣亮
△设计师手稿图2 ©本哲建筑
这种状态大概就是本哲建筑追求设计最终需要的结果,建筑与人、自然的和谐。
△夏建筑的全貌 ©苏圣亮
△立面图 ©本哲建筑
项目信息
项目名称:夹缝中的建筑(知舍茶书房)
项目地点:中国上海市浦东新区金海路18号
建筑设计:本哲建筑
主创建筑师:蒋华健
设计团队:姚瑞艮 林桐 赵桂军
建筑面积:19.5m²
设计时间:2021年8月
竣工时间:2022年9月
摄影:苏圣亮

BIM建筑网

























