星屿,是绍兴柴场弄体量最大最具识别性的新建文化休闲建筑。柴场弄是绍兴老城区的首个有机更新片区,紧邻秋瑾故居,东临咸亨酒店,北望塔山,在五年的更新改造后,发展成一个集文化、商业和旅游于一体的文旅休闲街区。
SpActrum谱观在初次考察场地时,观察到柴场弄是各个时代的居住建筑和生产建筑遗存无序而真诚地混杂在一起的复合体。为尊重场地的原生特质,SpActrum谱观将普通建筑与“文保建筑”视为不可分割的有机部分,而不仅仅依赖文化保护标志作为保存或拆除的标准;明确了在这个场地中的历史呈现,除了时间上的连续性,也要具有空间上的连续性。
星屿位于柴场弄的中轴线南侧,这里原有一座四层砖混外廊式建筑,曾是整个场地的制高点。经结构鉴定,这座建筑无法保存且存在极大风险。因此,建筑师决定拆除它,并新建一座同等高度的新建筑——一个不那么建筑,但足以改变整个更新项目空间结构的立体的场地,创造一个连接不同时代的场地和城市的空中景观,实现今古之间的共时性。
星屿被设计成一个四通八达、可登临可进入的空间,拥有强烈的多路径性,每个空间都通过多种通路相互连接。这使星屿成为一座真正的空中园林。同时,层叠地表是星屿最显性的设计概念,层叠的地表之间互相搭接、遮挡的形成行走空间与观看空间的复合体。建筑以场地的方式存在,是这座建筑的最初意向。
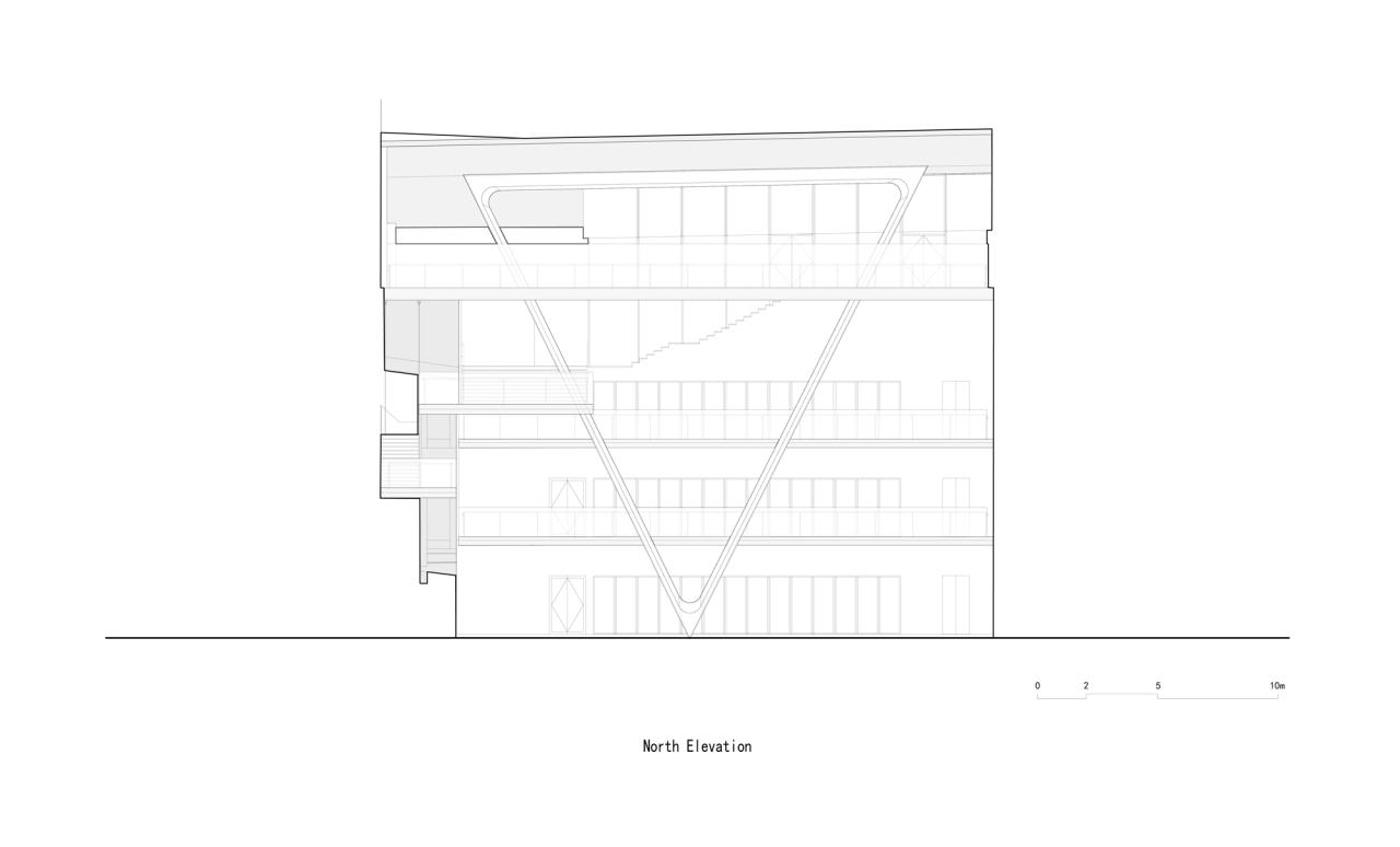
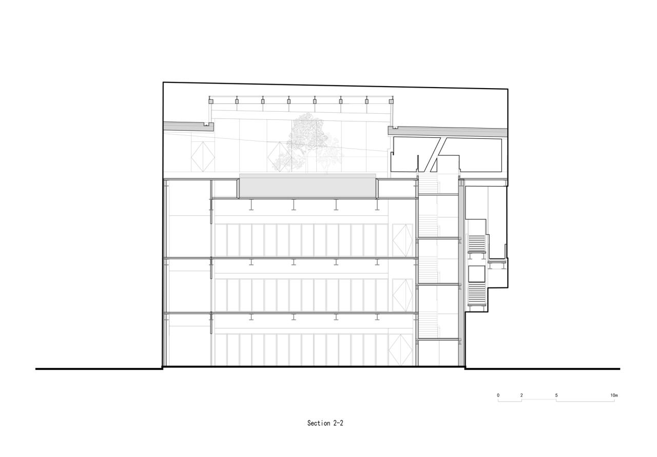
建成后的星屿昂立于场地中轴线南端,北侧的1-3层是简单的矩形体块,南北立面的各层都是长长的可完全打开的折叠门,将建筑变成贯通的场域。南侧是围绕中心空地旋转堆叠的可行走地表,东侧是多层叠合的坡道,形成多个观景台。星屿内部仅1000余平米,但由于包裹这些空间的台阶、坡道等外向观望的设计,成为欣赏整个场地和城市的绝佳地点。周边的明清院落、民国民居、老公寓和旧厂房,如卷轴一样徐徐展开,连接着这些观景台,形成多层次、多维度的全息画卷。
项目图纸
△模型图
△总平面图
△一层平面图
△四层平面图
△立面图
△立面图
△剖面图
△剖面图
△细部大样图
△细部大样图
△爆炸图
△分析图
△分析图
△分析图
△轴测图
△流线分析图
△结构示意图
项目信息
建筑师:SpActrum
面积:1658m²
项目年份:2022
摄影师:朱迪(SHADØOPLAY),苏圣亮(是然建筑)
厂家: BeiLiDa,Jufeng
主创建筑师:潘岩
设计团队:潘岩、李真、唐一萌、李影、陈浩、孟祥龙、ShAil Paragkum Patel、Gregorio Soravito、万金宇
施工方:杭州萧山广宇建筑工程有限公司
景观设计:上海普厚景观设计有限公司
结构设计:中外建工程设计与顾问有限公司
灯光设计:法国昂特灯光设计
幕墙设计:公合设计集团有限公司
钢结构安装施工单位:绍兴佳固建筑有限公司
钢结构制作加工单位:杭州永业钢构材料有限公司
功能:文化建筑,公共建筑,景观&城市
委托方:绍兴名城办 、开元文旅
地点:绍兴

BIM建筑网







































