KANEKA 健康中心是 Kaneka 公司的福利设施,同时也是医疗设施。Kaneka 公司以“健康第一”为企业方针,重视员工的工作方式改革和医疗保健。该设施为 Kaneka 的员工提供医疗服务和定期体检,并将举办各种活动以提高员工的健康意识。在其建设计划中,大成建设提供了设计,在隈研吾建筑都市设计事务所的监督下采用了 Kaneka 开发的各种环境技术。
该建筑工地位于与 Kaneka 生产基地毗邻的一片荒芜的灌木丛中。设计目标是建造绿树环绕的建筑,尽可能多地保留现有树木。在对现有树木进行 3D 扫描以创建数据从而确定其位置后,砍伐了树木(主要是外来入侵树种),以保留适合该地区的树种。从地面延伸的多面体屋顶覆盖着建筑,使建筑与森林融为一体。
瓦片集成型太阳能电池、透明太阳能电池和绿色屋顶与多面体屋顶融为一体,将不同的环保技术附着在屋顶的不同侧面,赋予屋顶不同的表现形式。建筑采用了 Kaneka 的多项环保技术。例如,在这些中型建筑中采用了 Kaneka 为独立式住宅开发的木结构外绝缘和双重通风方法,安装了根据室外气温改变通风路径的系统。
此外,深屋檐和出色的隔热性能还有助于实现能源平衡为零的 Net-ZEB。该设施竣工后,被用于开展烹饪班和运动会等提高健康意识的活动,以及帮助员工恢复疲劳的休闲空间。该设施因其注重健康的功能和设计而获得了 IWBI 的 WELL 白金认证,例如室内使用了大量木质材料,透过窗户可以看到丰富的绿色植物。
项目图纸
△总平面图
△一层平面图
△立面图
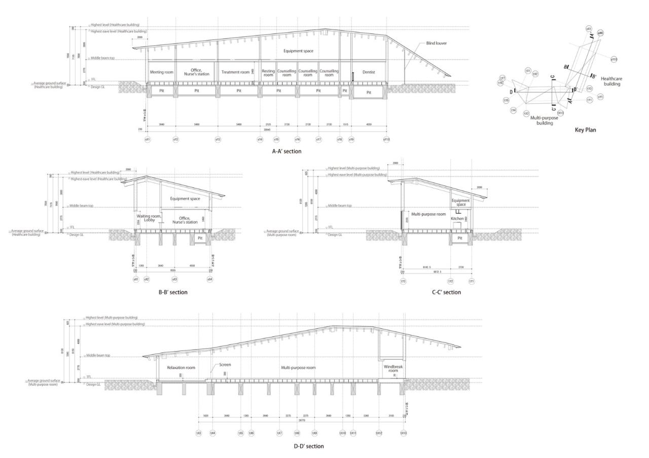
△剖面图
△结构示意图
△手绘图
项目信息
建筑师:隈研吾建筑都市设计事务所,大成建设
面积:625m²
项目年份:2021
摄影师:Norihito Yamauchi
厂家: T-Green
设计团队(隈研吾建筑都市设计事务所):Kengo Kuma, Takashi Taguchi
设计团队(大成建设):Hiroyuki Hirai, Keisuke Okazaki
结构工程师(大成建设):Shinya Nishimoto, Yumi Sakaguchi, Kayo Yasuda
MEP 工程师(大成建设):Takashi Yuasa, Naoya Ando, Hisashi Kitani
业主方:KANEKA CORPORATION
承包商:大成建设株式会社
地点:日本,Takasago

BIM建筑网































