世界上 90% 以上的钻石都是在印度西部古吉拉特邦的苏拉特切割的,该市拥有世界上最大的钻石工人社区。然而,大多数交易商每天必须乘坐超过 250 公里的火车才能到达孟买开展业务,这大大影响了他们的生活和通勤成本以及健康的生活质量。苏拉特钻石交易所将这个庞大的群体聚集在一起,将切割、抛光和交易等所有活动集中在一个屋檐下。该交易所占地 35.3 英亩,建筑面积 710 万平方英尺,其设计重新定义了传统的办公建筑类型,同时在苏拉特炎热潮湿的气候条件下建立了新的可持续发展基准。
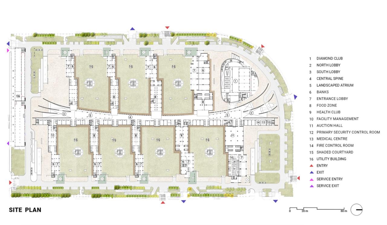
中轴线是建筑的锚点,横向和纵向连接着建筑的各个楼层。钻石俱乐部作为一个整体镶嵌在场地的西北部,从中轴线自由流动的墙体中延伸出来,并利用正面的优势实现了最大的能见度。九座办公塔楼与中轴线分隔开来,中间穿插着可供休息和娱乐的林荫庭院,可全年使用。15 层高的办公塔楼坐北朝南,遮挡了西边刺眼的阳光,使 75% 的工作空间全天都充满散射光。
世界上最大的办公楼 – 博物馆超越五角大楼,成为世界上最大的办公楼。它汇聚了 67,000 名专业人士,4,717 个办公室的独立和综合功能从 28 平方米到超过 10,500 平方米不等,使其成为一座城中之城。它的配套设施也非常丰富,包括占地 10,000 平方米的美食区、零售广场以及 8,000 多平方米的保健、会议区和宴会设施。
追求效率–设计世界上最大的商业建筑,就意味着要实现极高的效率。就其纪念性而言,流通是决定性参数之一。首要的挑战是为 67,000 人提供便捷、高效的日常通行服务。为了在交易时间限制内管理大量人流,大楼设计了横跨所有楼层的可步行走廊,类似于机场航站楼,将横向和纵向统一起来。通过优化从入口到最远办公单元的距离,使其不超过 4 分钟,从而确定了功能邻近性。人流的设计最大限度地减少了安全隐患,一旦在外围接受检查,交易者可以每天多次穿越大楼。建筑结构由城市规模的立柱支撑,这些立柱可作为座位区。
优先考虑宜居性–苏拉特钻石交易中心的设计超越了传统的玻璃封闭、机械制冷的办公大楼,旨在满足钻石交易社区的生活方式。 钻石交易商历来以高度协作的方式工作,集体利用不同成员的技能组合。因此,中轴线就像建筑的脊梁,创造了一个由休息空间、绿色中庭和大量视觉体验组成的互动中心,让人们在整个工作日都能有多次偶遇的机会。此外,大楼还设有指定办公室和绿意盎然的公共区域,这些区域可作为非正式工作站,汲取了现有的露天工作文化。大楼为员工营造了一个生机勃勃的工作氛围,自然光线充足,绿化带交通便利。最大限度地相互遮阳的形态设计确保了球场能够支持钻石社区的生活方式,包括娱乐活动和像传统集市一样的公开交易。
超越传统的可持续发展标准,该交易所的能耗比典型的绿色建筑低 50%–众所周知,建筑业是全球温室气体排放的最大贡献者。一个鲜为人知的事实是,建筑行业中最大的能耗源莫过于办公建筑。这是因为这种类型的办公楼用户密度高,空调和照明耗能巨大。苏拉特钻石交易所利用低技术被动策略和现代技术直接抵消了这些挑战。自遮阳块的朝向可阻挡西方的炎热,并与 15 英亩的园林景观间隔开来,进一步保持场地凉爽。
该建筑 100%的社区和流通空间(相当于建筑面积的 30%)都采用被动冷却的自然通风方式。建筑两端外扩,通过文丘里效应引入盛行风,而在无风的日子里,错落有致的中庭可以通过叠层效应排出热空气,从而保持宜人的内部微气候。沿整个中轴线分布的花园起到了天然空气过滤器的作用,提高了室内空气质量。占建筑面积 30% 的社区和流通空间 100% 都依靠被动冷却系统进行通风。
在无风的日子里,错落有致的中庭会垂直打断脊柱,使积聚的热空气通过叠层效应排出。中庭还设有绿肺,无需机械冷却就能营造宜人的内部微气候。该建筑还采用了最大规模的辐射冷却装置(每层楼约有 20 千米长的辐射管道;累计长度约为 300 千米),40% 的建筑容积由节能系统冷却,该系统在地板和天花板上使用冷冻循环水。办公区南北朝向,楼板纵深较窄,确保了 75% 以上的内部空间为日光照明,大大减少了对人工照明的依赖。公共区域全年使用太阳能。由于采用了提高能效的敏感方法,该建筑的能耗降低了 50%,与行业绿色基准(根据《建筑节能规范》,每平方米每年耗电 110 千瓦时)相比,能耗约为 45 千瓦时/平方米/年。这些措施使该建筑获得了印度绿色建筑委员会(IGBC)的白金级认证。
由社区建造,为社区服务–该建筑由钻石贸易商社区委托建造,以合作社的民主方式建造。社区努力确保大楼满足所有交易商的需求,为大型交易商指定了大型办公空间,同时也为小型交易商提供了可灵活使用的非正式庭院空间。此外,钻石贸易商和负责场所维护的设施经理也是设计团队不可或缺的一部分,他们确保将所有要求都考虑在内。因此,这座建筑是社区集体力量的结晶。
促进分散式发展–采用当地材料,尽量减少废物填埋。建筑中使用的拉卡红花岗岩和瓜里奥尔白砂岩都是从方圆 300 公里内采购的。从采石到修整和应用的各个阶段,都雇用了来自德干高原的石工社区。该项目体现了分散发展的理念,象征着苏拉特的进步和经济的快速增长。除了设施本身为该地区创造就业机会外,当地还建立了制造单位,以支持该交易所的建设,从而进一步为该地区的发展创造机会。项目的建设还帮助建立了新的社会基础设施,在社区倡议下建立了学校和医院。通过这种方式,该建筑促进了二线城市的全面发展,同时缓解了城市人口无节制的迁移。
项目图纸
△总平面图
△平面图
△剖面图
△分析图
△分析图
项目信息
建筑师:Morphogenesis
面积:660451m²
项目年份:2023
摄影师:Edmund Sumner
地点:印度,Surat

BIM建筑网






























