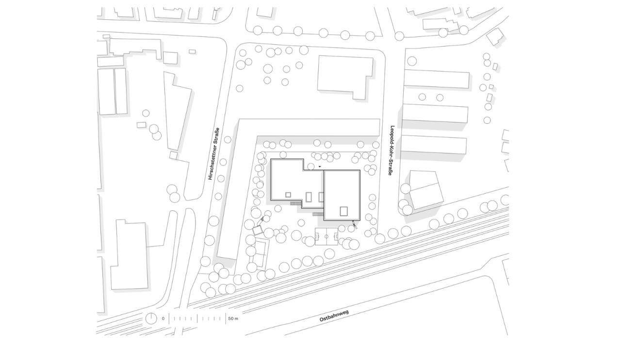
维也纳人称多瑙河北岸的地区为“Transdanubia”。听起来像是与当代城市生活迥然不同的世界,实际上是一个正在建设的新兴社区。该中小学位于Kagran的Leopold-Kohr-Straße,坐落在一个商业园区、最近的住宅区和 Ostbahn 铁路之间。项目为该地区的城市发展设立了一个新的锚点。学校拥有热闹的前院、游乐和运动区域,也可供当地居民使用,为社区增添新的品质。宽敞的露台将立面转变为垂直花园,并为学习和休闲提供了重要空间,可以全年使用。
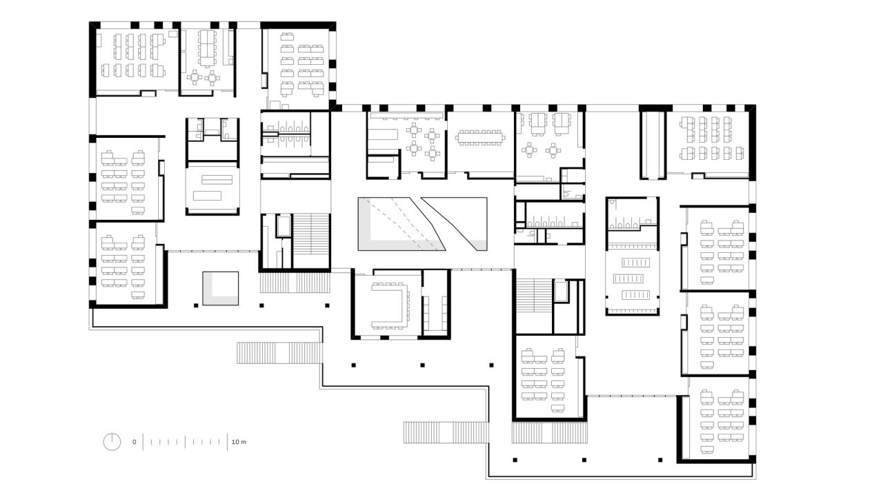
在全日制学校的中心,两座雕塑般的反光桥使中央中庭成为一个非常特别的空间,赋予它一种探索和运动的氛围。这个空间同时作为学校的聚集点,可以直接到达各个楼层的室外露台。而在一层,儿童和青少年可以在午餐时间或图书馆里透过室内高窗欣赏学校花园的景色。
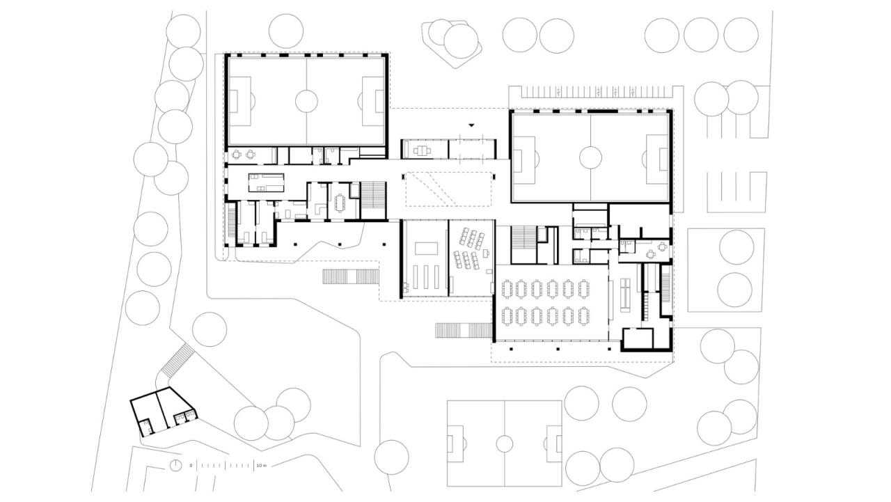
每个建筑都采用环形布局,从各个方向获得充足的自然光。教室与开放的多功能空间交替。此外,每个建筑都有充足的遮蔽室外空间,可直接通往露台。在这里,孩子们可以找到自己喜欢的地方玩耍,探索学校。通风井和中庭提供了楼层之间良好的视野,并将不同楼层联系起来。通过从底层到天花板的全高钢缆网,露台保持了安全而透明的状态 – 随着时间的推移,野葡萄会攀爬到这些钢缆网上。同时立面以天然落叶松木材料为主,其外观将通过风化的作用逐渐获得银灰色的光泽。
在课间休息时,学生可以通过宽大的楼梯和滑梯从上层迅速到达学校花园。一些游乐和运动区域在晚上和周末是自由开放的。学校前的庭院为社区提高了城市生活品质。入口两侧的下沉式体育馆在学校放学后也可供外部访客使用。
项目图纸
△总平面图
△一层平面图
△二层平面图
△剖面图
项目信息
建筑师:Franz&Sue
面积:11551m²
项目年份:2023
摄影师:David Schreyer
厂家: Bega,Felbermayer,Kosmos,Schrack,Thorn,Trilux,Zumtobel
设计团队:Edin Hadžović, Friederike Dammaß, Anita Bartos, Diana Jarincikova, Leire Azkarate, Thomas Karl, Judith Mayr, Sophie Wiedemann, Johannes Tiefenthaler, Darija Malesevic, Kübra Inal, Jonas Kunzelmann, Ajdin Vukovic
建筑热模拟:Jung
委托方:City of Vienna
结构工程:Petz ZT GmbH
建筑物理:IBO
建筑服务:Zencon
景观规划:EGKK
防火安全:Hoyer Brandschutz
主承包商:Swietelsky AG
地点:奥地利,维也纳

BIM建筑网

















