△烟台蓬莱国际机场二期建筑外观©️404NF STUDIO(封面推荐)
烟台机场锚定打造‘面向东北亚的区域枢纽、日韩航空货运桥头堡’战略,全力为城市发展赋能。烟台机场T2航站楼于2024年6月28日零点通航,启用后,烟台机场可满足年旅客吞吐量2300万人次、货邮吞吐量20万吨的发展需求。
中国建筑西南设计研究院有限公司作为方案联合体牵头方,与Aedas、上海民航新时代机场设计研究院共同组成国际团队,共同打造了烟台蓬莱国际机场T2航站楼,为烟台市构建国际性综合立体交通枢纽、打造城市窗口形象的国际机场提供了有力的技术支撑。
总体规划
项目秉承“整体、生态、高效、灵活、智慧”的规划理念,采用主楼平行于跑道的双港湾布局模式,分期建设使用灵活。在规划布局上充分利用地形,空侧、陆侧采用错层的布局,实现了多种交通工具的一站式换乘。
高效运行:航站楼采用平行于跑道的浅港湾布局,兼顾空侧飞机运行与陆侧旅客进出港高效。采用四滑道布置形式,机位相互干扰小,且港湾预留增加临时等待机位或远机位的可能性,机位布局更加灵活高效。
△机场T2航站楼俯视图©️404NF STUDIO
有序发展:当旅客吞吐量达到1200万,启动扩建:T2南指廊、南站坪、第二跑道以及停车楼。新建过夜用房和信息中心。南指廊构型可根据实际需求灵活布局,根据航空业务发展的实际情况,采用逐步扩建的方式满足使用功能的需求,国际国内增长量灵活调整,实现远期灵活发展。
空铁联运:二期工程引入市域轨道换乘,预留轨道站房,换乘厅与航站楼贴临布置,通过市域轨道衔接,形成空铁联运,提升机场容量、增加运营辐射范围。实现航空与铁路的“零换乘”。
机位灵活:根据烟台机场近年E类机型少的特点,设置组合机位,提高E类机位利用率。作为面向日韩的门户机场,9个国际机位均采用楼内交通体的方式,可灵活转换为国内机位,方便国际国内错峰使用,打造便捷的国际快线及中转服务。这一创新规划为运营商和航空公司提供了高度的灵活性和自由度。
△机场T2航站楼鸟瞰视角,与周边山势的关系©️404NF STUDIO
顺应地势:团队在前期规划阶段,深入研究航站楼构型,充分利用现有地形,顺应地势,采用错层设计。将陆侧到达车道边标高抬高至迎宾厅夹层的标高,以期最大限度减少场地开挖。
△机场剖视图©中国建筑西南设计研究院有限公司
设计灵感
航站楼设计:T2航站楼整体设计取意“烟海圣景,云上仙山”,灵感来自于海上仙山之祖之称的烟台昆嵛山,造型磅礴大气。与T1航站楼的“浪涌白沙”造型遥相呼应,完美的演绎出了烟台独特的山海文化;航站楼银色金属主屋面连绵起伏,如云蒸霞蔚般的仙山,轻盈飘逸。空侧港湾呈现烟台海岸蜿蜒的形态。指廊屋面采用混凝土屋面形式,节约造价、降低漏雨风险。控制屋面高度,获得适宜的室内净高,降低整体能耗。
△T2航站楼与T1航站楼的“浪涌白沙”造型呼应©️404NF STUDIO
装饰设计:航站楼设计理念,体现烟台本土文化。值机大厅取义于变幻山峦的设计构思,将泼墨山水一般的柔美画卷融入到建筑设计中。室内天窗设计顺应主屋面的空间形态,交相映衬如层叠的浪花,将天光引入室内,形成自然的离港方向指引。大吊顶和结构完美结合,充分利用双曲面穿孔蜂窝铝板的材料的特点,将曲面吊顶造型的刚度、强度与立体感、动态感充分融合。实现了技术与美学的结合,呈现出轻盈而通透的室内空间效果。
△值机大厅天窗设计©️404NF STUDIO
设计在空侧港湾的中心节点,打造了独一无二的标志性空间,寓意日出而作日落而归的海洋文化。国内及国际旅客层均围绕此空间展开。设计秉持可持续发展理念,在玻璃穹顶设三角形电动遮阳帘,在解决室内遮阳需求的同时,呈现“花开港城,仙境烟台”的美好寓意。另外,中庭吊顶采用点状分布的灯光设置,夜幕降临后,灯光闪烁,旅客仿佛置身浩瀚银河星空下的蓬莱仙境,为旅客营造出令人难忘的出行体验。
△空侧港湾内部空间©️404NF STUDIO
指廊取意丰富多变的海岛风情;吊顶采用波浪式结构,商业立面采用海岛独特的岩层效果。候机区配置有各具特色的景观休闲区,旅客可以在放松休息,商务人士在此办公,儿童在此娱乐嬉戏。
行李提取厅船桅造型,象征千年海上丝路。通过上层空间敞开的方式,实现了屋面天光和景观的引入。通高的行李提取中庭将原本闭塞压抑的空间向上打开,使旅客充分感受建筑与环境的和谐共处,结合广告、绿化向旅客展示烟台的特色与好客。
△行李提取厅©️404NF STUDIO
设计亮点
门户枢纽:烟台蓬莱国际机场作为区域性枢纽机场和面向东北亚重要门户口岸,考虑其机场运营特点,航站楼中指廊设置转换机位,提高国际机位运行效率,增强门户机场吸引力。同时楼内中转设施集约高效,为旅客提供极致便捷的中转体验。助力烟台蓬莱国际机场在区域航空枢纽中脱颖而出,为旅客提供更加优质的服务。
△立面外观©️404NF STUDIO
绿色机场:设计秉承绿色生态与低碳节能的原则。航站楼大厅运用了空腹桁架结构,独特的天窗设计倾斜而下,自然光线温柔洒落,实现了良好的通风效果,为旅客营造出舒适宜人的出行环境。指廊屋面沿流线布置的采光天窗,进一步优化了室内微气候。同时结合功能控制指廊室内的净高,有效降低楼内能耗,彰显了绿色生态的环保理念。
行李提取厅通过敞开上层空间,巧妙地将自然天光和景观引入室内,为旅客营造了一个明亮、舒适的等候环境。通高的设计使得整个空间更加通透、自然,充满了生态气息。
△机场通透环境©️404NF STUDIO
智慧机场:烟台蓬莱国际机场T2航站楼配备了先进的智能化设施,旨在为旅客提供更加便捷、高效的服务。自助值机和自助托运设备,使得旅客能够快速完成相关手续,避免了繁琐的排队等待;智慧安检系统的引入,通过高科技手段实现了安检流程的优化,缩短了旅客的等待时间。国际入境也采用了先期机检模式,利用智能判图设备进行行李查验,进一步提升了通关效率。
△流线型的顶面造型©️404NF STUDIO
人文机场:航站楼设计以旅客为中心,出发、到达流程减少竖向标高变化,杜绝旅客过多的楼层转换,减少出行的疲惫感;围绕烟台地方特色,组织旅客流线和室内景观文化展示,充分展示烟台深厚的文化特色;航站楼设置专属贵宾区及两舱休息室,为贵宾旅客、两舱旅客、持卡旅客提供高端个性服务;考虑烟台地区寒冷多雪的气候,设置出租、大巴车的室内候车区,提升出行幸福感。
△机场休息室空间©️404NF STUDIO
特色商贸:航站楼内精心布局商业资源,充分挖掘商业潜力,设置了微醺烟台、鲜美烟台两个城市展厅,为机场提高非民航收入创造条件。在旅客流线上设置融合餐饮、零售、休闲娱乐多种业态为一体的复合商业区,为旅客提供更高品质、多元化的出行体验。
△机场整体内部空间©️404NF STUDIO
△机场T2航站楼鸟瞰视角©️404NF STUDIO
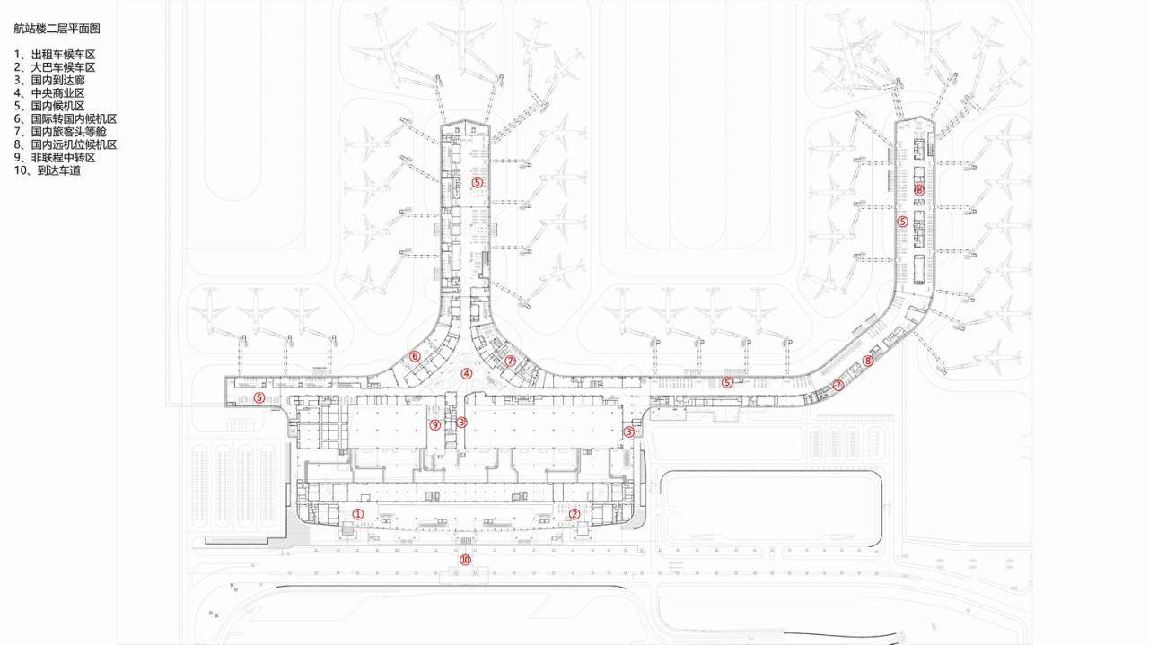
项目图纸
项目信息
项目:烟台蓬莱国际机场二期工程T2航站楼及航站区
位置:中国烟台
联合体牵头单位:中国建筑西南设计研究院有限公司
联合体成员单位:Aedas、上海民航新时代机场设计研究院
业主:山东省机场管理集团烟台国际机场有限公司
建筑面积:17.2万平方米
竣工年份:2023年
项目团队:
中国建筑西南设计研究院项目总负责:陈荣锋、潘 磊
Aedas项目负责人:唐宙行
上海民航新时代机场设计研究院项目负责人:马静涛
中国建筑西南设计研究院有限公司各专业负责人及设计师:
审定:刘 艺
建筑专业:周 利、徐凯田、段 飞、刘刚、刘 葳、许艳蕊、王久艳、侯永禄、周芳芳、郝志金
结构专业:陈志强、夏 循、韩 夏、马永兴、胡 杨、陈昊维
暖通专业:侯余波、刘 海、孙海涛、刘兆海、徐 珊、戎向阳、杨 玲、陈 通
给排水专业:张慧东、李海春、刘 鹏、郭显强、张 静、何鹏飞、张许诺
强电专业:侯 剑、何 劼、侯立奎、王作为、何西硕
弱电智能化专业:银瑞鸿、李佳莉、周海林、邹 旋、陆家明
幕墙专业:董 彪、蔡红林、张国庆、李 果、程 超、王 进
装饰专业:徐万强、曲 涛、孙 康、李雁杰、孙鲁宇、相高婷
景观专业:陈 涛、任昆仑、褚福尧、赵 军
市政专业:王卫东、李因翔、孙志杰、闫杰栋、王晓杰、陈洪庆、刘承启、方豪星
装饰设计顾问:中石工程设计有限公司
行李系统:北京艾福罗杰工程咨询有限公司 AIFLOG
照明设计:盖乐照明Gala Lighting Design Studio
摄影:404NF STUDIO

BIM建筑网





























