位于西高止山脉的朗纳夫拉是孟买居民最近且最受欢迎的周末度假胜地。其天然的地形、凉爽干燥的气候、郁郁葱葱的景色以及悠久的历史(古老的堡垒和佛教石窟寺庙)吸引了无序的开发,导致原本鲜明的特色遭受严重侵蚀。
拉迪森朗纳夫拉度假酒店面临着由乡村地区快速城市化造成的根本矛盾。规定的建筑规范和密度所催生的建筑形式,与自然开放空间的连通感相悖。
该场地位于一个以住宅区为主的街区,由两个地块组成,地块之间有一条规划好的通道相隔,该通道已被项目采用,但无法在其上建造。建筑的形态源于场地、地形以及该地区的材料历史(黑玄武岩和木材),并适应灵活与固定(公共与私密)的功能需求。
为了避免多层建筑带来的压抑感,项目将地面打造成了有机、自由形态的公共空间,并通过不同标高的地形连接。现存形式(如棱堡/大型石砌墙)和阶梯式庭院(水坑)为建筑景观增添了活力。房间楼块悬浮于地面之上,如同大胆抽象的体量,拥有带百叶窗的可渗透次墙。地面垂直上升,形成一个遮荫的中庭庭院。组织结构使自然成为主角,并运用空间、材料和光线,将“建筑”的体验转变为穿梭于时隐时现的景观之中的旅程。
此外,与具有相似密度的酒店空间相比,该项目也具有创新意义。附近的酒店遵循城市模型,采用主题设计,往往与所在地格格不入。
在这个项目中,设计团队提出一个理念,摒弃装饰和美化,让天然建筑材料在应对密集功能需求的框架内发挥作用,优先考虑对地点、记忆和气候的回应,而非先入为主的视觉观念,这是一个重大的创新和突破。
项目图纸
△分析图
△分析图
△草图
△草图
△分析图
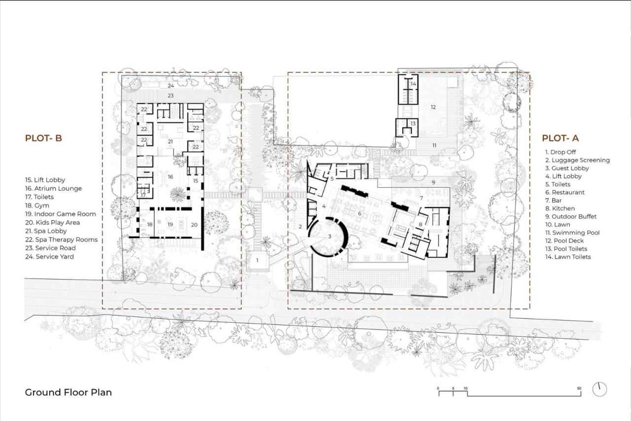
△一层平面图
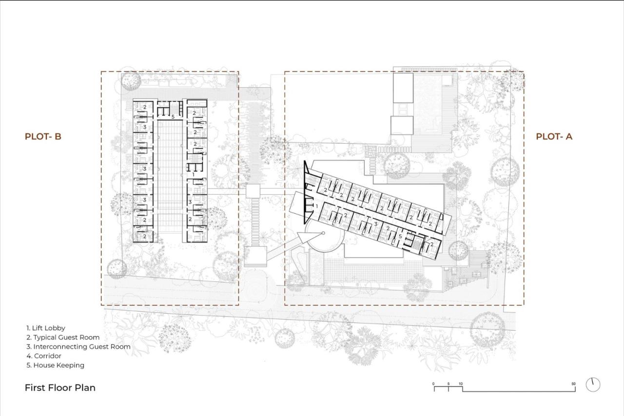
△二层平面图
△立面图
△剖面图
项目信息
建筑师:Malik Architecture
面积:120000ft²
项目年份:2022
摄影师:Bharath Ramamrutham
设计总监:Kamal Malik, Arjun Malik
主创建筑师:Ketan Chaudhary
项目建筑师:Payal Hundiwala, Sakshi Jaggi
工程师:Vivek Garg
工程团队:Global Engineering Services
地点:印度,隆纳瓦拉

BIM建筑网
































