Sai Kirupa 特殊学校专注于为患有自闭症谱系障碍(ASD)及其他学习障碍的儿童和青少年提供专业教育与职业培训。位于提鲁普尔的新校区旨在打造一个以学生全面发展为核心的中心,帮助他们培养独立能力与自理能力。校区设计经过精心考量,充分响应学生的多样化需求,营造出一个支持成长与发展的环境。由于学校由慈善信托基金运营,项目的实施高度依赖捐赠资金,因此设计方案必须具有灵活性,以便在资金到位的情况下分阶段逐步建设。
该建筑采用两层设计,明确划分不同的功能区域,同时支持逐步施工并在各阶段快速投入使用。底层为日间学校,已分三个阶段完成建设,通过结构伸缩缝的应用,各部分在完工后即可投入使用。这种分阶段的施工方式还允许根据实际使用反馈优化设计。一层规划为依赖性较低学生的宿舍和教室,目前正作为下一阶段建设内容推进。
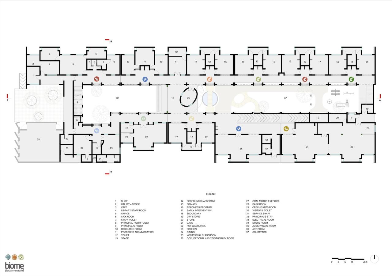
为响应气候条件,该建筑的布局和朝向最大限度地利用了南北立面,并通过简单的遮阳设计减少了直接的太阳热增益。简洁的矩形平面进一步强化了清晰易懂的空间设计,方便使用者导航。建筑围绕一个中央开放空间组织布局,分为南北两翼,中央的连桥不仅连接两翼,还在前庭形成一个小型的露天剧场,可作为舞台使用,并为访客提供便捷的通行。较大的后庭则为学生提供了户外游戏和疗愈空间,营造了功能丰富的环境。
类似地,行政办公室位于建筑的前部,靠近入口并提供直接的出入通道。而较为私密的学生区域——教室、治疗室和看护人员空间,则布置在建筑的更深处,以确保隐私和功能分区的合理性。
在每一层设计中,规划都充分考虑了学生的感官需求,巧妙融入了实用的过渡空间。拱廊式走廊连接了开放庭院与室内空间,同时沿边设置了长椅,便于学生间接参与庭院的活动。长走廊在每间教室的入口处形成了小型的凹槽区,作为停留点,并为书包、鞋类等提供了便利的存储空间。
北侧翼楼由每组包含八间教室的独立单元组成,既满足学术需求,也照顾学生的个人护理需求。由于许多自闭症谱系障碍(ASD)学生需要进行如厕训练,每个教室单元都配备了专用卫生间,并设有相邻的换衣和清洁空间。这些区域采用镂空墙设计,既能确保充足的采光与通风,又能为孩子提供隐私保护。南侧翼楼则设置了较大的治疗室和餐厅,以支持学生的全面发展需求。
整个建筑的流线设计融入了富有体验感的元素,例如嵌入地板的彩色瓷砖作为视觉提示,鼓励学生移动并发展运动技能。这些瓷砖插片沿走廊设置,激发学生跳跃与攀爬,从而促进其身体与认知能力的双重成长。在每间教室的入口处,鲜艳的七巧板图案与瓷砖装饰的拱形凳子相结合,形成了醒目的停留点。这些独特的色彩和形状不仅提升了辨识度,还为学生的导航提供了明确的视觉标志。
在炎热的蒂鲁普尔气候下,两个庭院均覆盖了张拉膜遮阳篷,为游戏和集会提供舒适的开放空间。后庭院的设计旨在促进有组织和非结构化的游戏,通过感官路径和景观元素,以平和的方式激发学生的感官。一座跨越小池塘的桥梁通过游戏培养学生的平衡能力,而用于团体和个人活动的区域则鼓励灵活的互动方式。传统的游乐设备,例如秋千和滑梯,与这些感官功能相辅相成,共同营造丰富的游戏体验。
材料和结构细节的选择充分考虑了当地的土壤条件和抗震要求。现场发现的石块和卵石被用于地基施工,而含砾土则被用来手工制作土坯砖。这些砖的裸露砌体呈现出柔和的天然色调,营造出平和的视觉体验。粗糙的墙体纹理与起伏的拱形天花板相结合,有效降低了环境噪音,为学生提供了一个安静、感官友好的学习环境。
施工团队对细节的关注在实现设计中许多精巧元素方面发挥了关键作用,从而为学校创造了一种真正全面的体验。
项目图纸
▲总平面图
▲一层平面图
▲平面图
▲平面图
▲立面图、剖面图
▲分析图
▲细部结构大样图
▲细部结构大样图
项目信息
建筑师:Biome Environmental Solutions
面积:16400ft²
项目年份:2023
摄影师:Link Studio
主持建筑师:Chitra Vishwanath, Anurag Tamhankar, Vidushi Gupta
设计团队:Hamna H., Visalakshi R., Maitri Shah
设计实习生:Varisha Chauhan, Aanchal Bansal
承包商与建造者:Swamy & Thomas
结构顾问:Mesha Structural Consultants
顾问:HMN Techconsultants Private Limited
地点:印度,蒂鲁普尔

BIM建筑网



























