这是一座于 1965 年在济州岛建造的乡村房屋。房屋主人长期从事利用从海边收集的废料进行手工艺创作,他提议不拆除这座老房子,而是对其进行再利用。该项目正是基于这一想法展开 —— 将老房子视为创造新空间的资源。
设计策略是保留现有建筑,并在其外部覆盖一个新的结构,将旧建筑与扩建部分整合在同一屋顶之下。这种方法减少了建筑面积,提高了结构效率,并增强了空间的连续性。现有建筑中柱子的韵律、石墙的厚重感以及窗户的布局 —— 这些空间秩序元素成为了塑造新设计方案的关键参考。
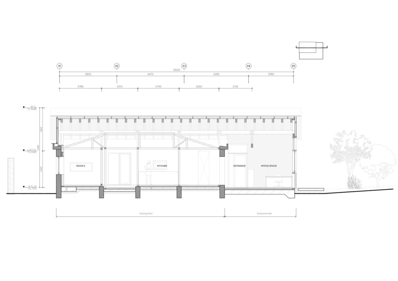
在与先前卧室相邻的庭院中新增了一个房间,同时沿着原来的厨房和公用区域设置了浴室、更衣室和洗衣房,以此规划日常生活的流线。功能空间被设计成一个单层的盒子,放置在现有房屋的前面,它们之间的空间继承了原始院子的开放性和灵活性,成为了一个新的客厅。原来的客厅被改造成了厨房和用餐区,形成了一个连接室内外、新旧空间的 LDK(起居、用餐、厨房)区域。
由于现有建筑位于场地的北侧,扩建部分自然地向南延伸。为了解决因平面进深增加而导致的采光问题,山墙屋顶被有意错开,让光线能够通过间隙深入室内。为了用轻质木屋顶覆盖现有建筑 11 米的跨度和 4.5 米的扩建部分,安装了两根主梁以及屋顶搁栅。对现有的木框架进行了加固,以支撑北侧的主梁,并且在扩建部分采用了部分钢框架来支撑南侧的主梁,该主梁同时也构成了高侧窗。为了实现经济效益和灵活性,不仅承重墙,就连钢框架也是使用标准木材和胶合板在现场组装而成的。
在东侧,增加了办公和客房空间,并在它们之间设置了一个入口,以区分不同的功能区域。这个入口像一条小巷一样向内延伸,自然地连接了现有空间和新空间,并在整座房子内形成了一个环形的流线。进入室内,曾经作为外部元素的旧石墙、烟囱和屋檐都完好无损。这些过去的片段不仅在新结构中增添了物质痕迹,还赋予了时间和空间一定的厚重感。
这座房子是一个建筑提案,它将传统济州岛房屋的记忆和氛围作为资源,来构建一个新的居住环境。通过用新结构覆盖旧结构,它将过去与现在、室内与室外、旧与新层层交织 —— 成为了一座建立在这些重叠之上的未来之屋。

BIM建筑网




































