隐匿别墅设计位于荷兰海岸边的一处旧庄园已被改造成一个公园般的住宅区,改造过程中高度重视保留其文化和历史特色。古老的参天大树、独特的建筑风格以及壮丽的景观,使这片庄园成为了一个宜人的居住之地。
隐匿别墅坐落在隐蔽之处,完全被郁郁葱葱的花园所环绕。这不仅确保了居住的隐私性,还减少了周围环境的影响。一旦进入其中,一个全新的世界便展现在眼前。花园的设计开辟了新的视线,在别墅周围营造出多个可供欣赏的区域。
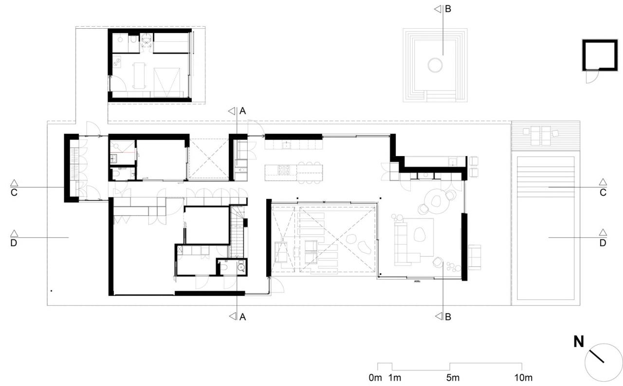
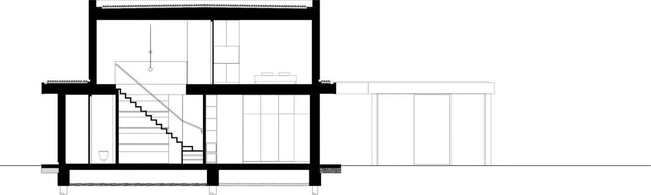
别墅内部的生活空间与户外紧密相连。就如同花园展现出丰富的景致一样,别墅也提供了多样的居住空间。悠长的视野和有趣的视角营造出一种通透感,而充满绿植的双层高露台则进一步增强了空间的开阔感。这些露台连接着一楼的起居区域,将它们融入到室内外的流畅关系之中。宽大的遮阳棚强化了这种联系,使得居民可以在别墅周围自由漫步。遮阳棚的深度与太阳的运行轨迹相契合,尽管别墅外墙大量使用了玻璃,但它能有效保护别墅避免过热。
木材、石材、混凝土和玻璃等材料的平衡搭配,赋予了别墅外观精致而奢华的感觉。入口、露台和上层的外墙覆盖着经过油处理的白蜡木,而底层的南立面和东立面以及附属建筑则采用了浅色的科伦巴砖建造。地板和天花板从室内无缝延伸到室外,白色的混凝土地板环绕着房屋,并构成了遮阳棚的外缘。天花板采用灰泥饰面,简约的铝制框架和大玻璃窗则增强了室内与花园之间的联系。
木材、石材、混凝土和玻璃等材料的平衡搭配,赋予了别墅外观精致而奢华的感觉。入口、露台和上层的外墙覆盖着经过油处理的白蜡木,而底层的南立面和东立面以及附属建筑则采用了浅色的科伦巴砖建造。地板和天花板从室内无缝延伸到室外,白色的混凝土地板环绕着房屋,并构成了遮阳棚的外缘。天花板采用灰泥饰面,简约的铝制框架和大玻璃窗则增强了室内与花园之间的联系。
定制的家具和嵌入式橱柜提升了别墅的内部格调,这些元素与别墅的建筑设计融为一体。深色油饰橡木面板、连续的白色混凝土地板以及天然石材打造的厨房设施等丰富的材料,展现出精湛的工艺质感。浴室和卫生间装饰着各种各样的瓷砖。照明经过精心设计,适合每个空间的氛围,采用 KNX 控制系统,可提供多种适应性的氛围设置。
花园的多个区域与别墅直接相连,其中包括一个游泳池和一个火坑。户外厨房和遮阳棚下的露台提供了舒适宜人的休闲场所。绿植环绕着别墅,穿梭于露台之间,将自然与建筑结构融为一体,在景观、建筑和室内设计之间创造出一种和谐的互动关系。


BIM建筑网






























































