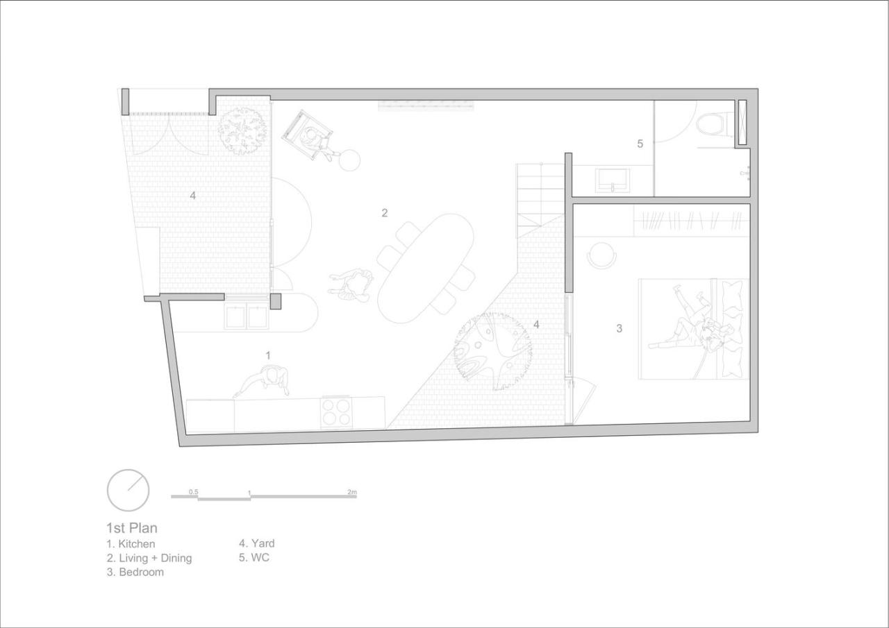
林南住宅小型别墅设计(Linh Nam House)坐落在密集的四层建筑之间,犹如一个建筑谜题,仅通过一条 1.5 米宽的小巷才能抵达。它与周围环境和谐相融,在不断演变的城市景观中打造出了一个独特的 “城市山谷”。
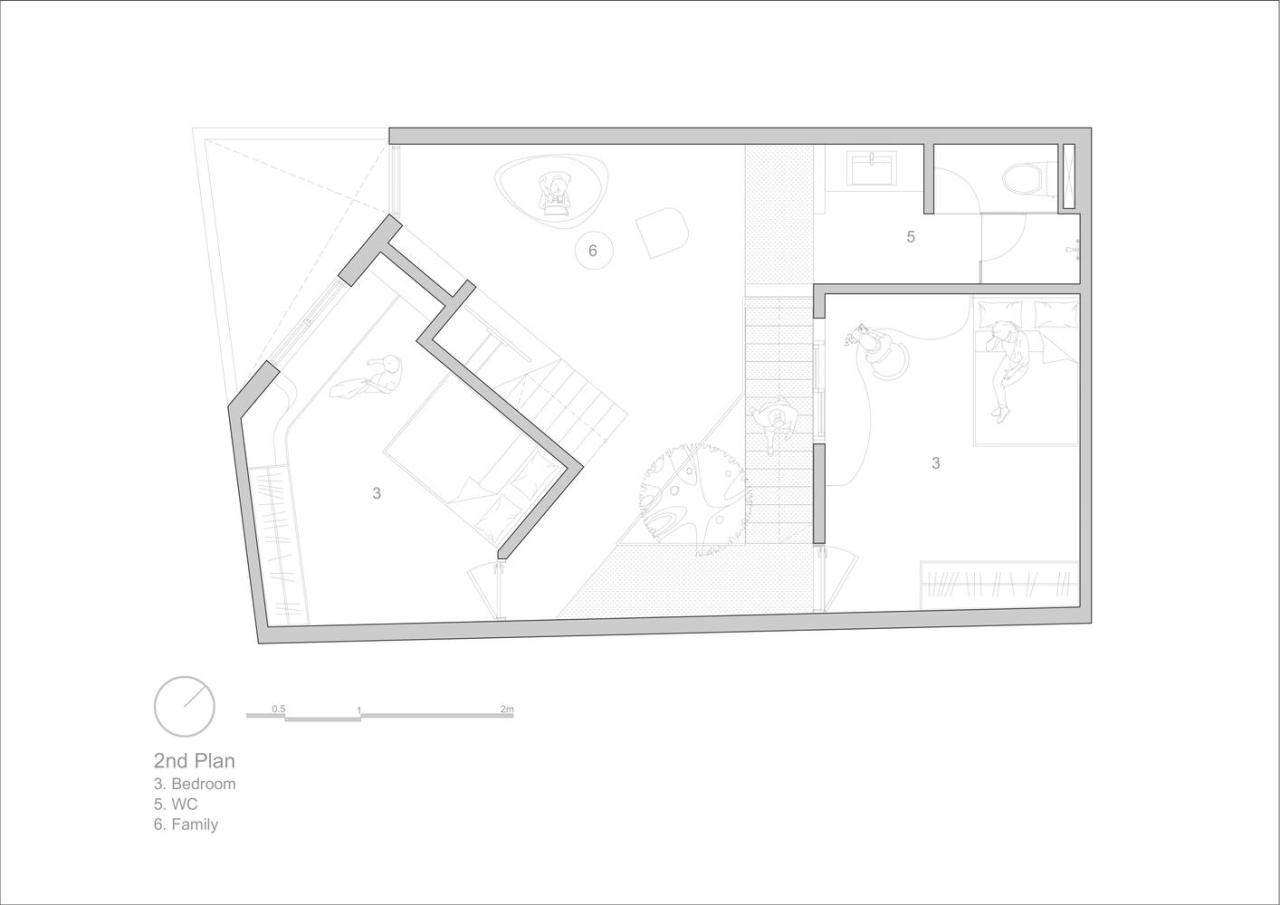
在喧嚣的城市生活节奏中,屋顶常常被人们遗忘,但林南住宅却颠覆了这一常规。通过保持适度的高度并利用相邻的围墙,屋顶被改造成了一个宽敞的高架空间。这里阳光充足、微风轻拂,成为了承载家庭回忆的舞台 —— 孩子们可以在这里自由玩耍,父母们也能在温馨的户外聚会时相聚于此,处处洋溢着温暖和亲情。
建筑空间经过精心设计,让自然光能够深入渗透。白天的光线透过开放式结构,轻柔地洒在独特的材料表面,而后萦绕在隐蔽的角落,仿佛房子里的每一个空间都在诉说着自己的故事。
在想象中,当强烈的顶光成为主角时,这座房子就变成了一个神秘的洞穴。在它明亮的照耀下,整个生态系统仿佛被唤醒,营造出一种让人沉思的氛围,将日常生活转化为人们与空间的对话。
林南住宅的设计充分考虑了其所处的环境,看似矛盾的条件却催生了意想不到的解决方案。这里的每一寸空间都讲述着人文、光线与城市连接之间平衡的故事,彰显了建筑将限制与创意相融合的力量。
微信公众号:xuebim
关注建筑行业BIM发展、研究建筑新技术,汇集建筑前沿信息!
← 微信扫一扫,关注我们+

BIM建筑网






























