搬离寸土寸金的深圳后,TP-LINK在东莞生态产业园觅得新址,南临月塘湖,幽静的水道从旁穿过,地势平坦,自然环境十分优美。项目整体为工业生产园区,分为生产厂区和宿舍区两部分,厂区临湖布置,宿舍区位于厂区以北,与湖面隔厂相望。
面临的问题如何利用好周边优美的自然环境条件,打破传统的厂房与宿舍建筑形态,以开放、连接的设计策略为工人们创造更为舒适、共享的工作与居住空间成了我们设计所面临的首要问题。
建筑与景观的对话关系月塘湖平静广阔,需要稳重舒展的建筑与之对话。因此,设计将传(BIM教程)统的多栋厂房纵横相连,形成尺度巨大的建筑环,与湖面呼应。巨大的建筑体量和平稳舒缓的形象令人过目难忘,建筑与湖面一起,形成了园区内独一无二的风景。我们在宿舍区设计中采用高低起伏的天际线,叠退错落的活动平台,轻盈通透的体量造型,通过开放、跌落的建筑形态与月塘湖取得联系。
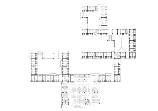
产业园区的有机生长模式规划结构:我们以30米的进深形成尺度巨大的环形建筑体量,彼此环环相扣、错动咬合,这样使得生产工艺的连续流线可以达到最长,而且便于业主根据工艺要求灵活调整生产线的布置;环形建筑体量围合成宜人的院落空间,三个环形建筑为一组形成一栋厂房,通过不断复制这种组合方式可以实现整个工业园规划结构的有机生长。
庭院置入:三个院落空间中间植入十字形的步行轴线,在外侧布置车行环道,形成人行于院落空间内,车环于外的布局,在场地的角部设置卸货场地;通过院落空间和十字形的两层高的穿透形空间可以有效的改善自然通风,减少过渡季节的能耗。
预留改造条件:这种30米进深的环环相扣的花园式产业园布局,为整个项目后期顺应城市发展变化的需求,改变成办公、商业空间等预留了极好的条件,可以极大地扩展整个建筑群的生命周期,这一点也符合了可持续性园区的规划理念。
丰富的宿舍公共空间层次与互动关系总体布局:由建筑围合成宿舍庭院,两栋宿舍楼之间是承载很多活动的主广场,在面向广场的方向将建筑形态打开开口并加入活动空间,形成“活动广场-单元庭院-宿舍房间”逐层递进的空间层次。
空间置入:在楼层之间植入连接上下层的外挂楼梯、活动中心与平台,整个宿舍区规划采用宿舍全朝南的单廊式设计,采光通风条件极好,推开宿舍门走到外廊上就可以一览月塘湖的美丽风景。联系上下层的景观楼梯和宿舍间设置的员工活动中心,为园区工作人员提供了立体多元的公共活动空间。
退台叠落:宿舍在面向中央主广场的方向形成逐层退台,让建筑与环境之间有一个更好的互动关系。宿舍在塑造了特色鲜明的形象的同时,又形成了丰富多样的活动空间。青年员工可以在这里交流漫步、文娱体育、休闲放松,尽情享受工作之余的悠闲时光。
“可持续工业园”的设计理念东莞TPLINK产业园的设计是我们以“可持续工业园”理念来进行规划和设计的一次尝试,我们以自用型产业园的人与生产工艺的需求为出发点,来进行产业园区的规划和建筑设计,为科研人员创造出一个高效舒适,能够激发灵感和创造力的新型生产和研发花园式环境。
(BIM工作)图纸
场地区位
建筑形态生成
流线分析
总平面图
场地平面图
平面图
剖面图
立面图
项目信息
建筑师:悉地国际(深圳)
地址:碧湖路r4号,东莞,广东,中国
设计团队:悉地国际21设计工作室&CIC新业务部
主创建筑师:王浪
建筑面积:548527.818 平方米
项目年份:2016
摄影师:方健

BIM建筑网
































