CAA /Águeda艺术中心旨在回应一个挑战作出的项目设计,是创建一个融合环境(不仅是物理,文化,经济和政治等各个方面)的解决方案的挑战,同时创建一个世界级的文化交流平台。该项目的设计方法被转化为能够最大限度地发挥功能的系统。
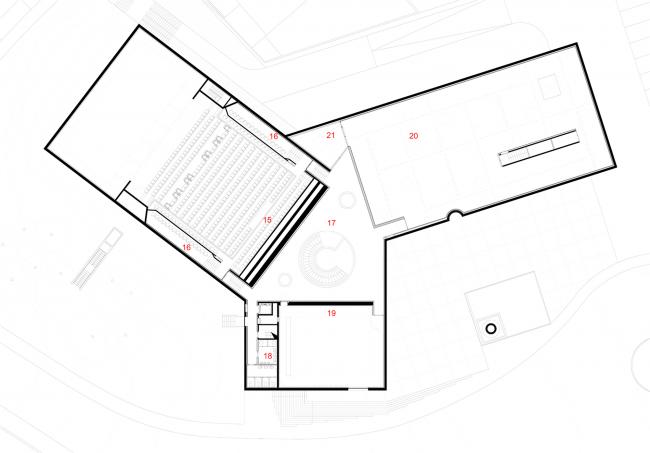
该建筑面积为4,500平方米,由三个动态功能分区组成,其中包含了室内空间的三个主要部分:一个有600个座位的礼堂,展厅和音乐会咖啡馆,从中央围绕核心分散布局。除了主要项目,该建筑还包括一个工作室,书店/商店,维护,管理职能部门,以及许多其他支持的办公空间。
外部(BIM教程)建筑形象的特点是大量裸露的混凝土包围着地形,并创造了一个新的公共广场,极具城市氛围。体积似乎悬浮在透明的玻璃块上,渗透出来并吸引着公众的视野。
建筑被剥夺了标志性的人工痕迹,而不会失去协会应得的制度相关性。它试图在执行的实用技术和情境反应之间融合作用,将空间的诗意化,并把游客带入一个标志着身体作为文化容器和文化生成者的旅程之中。
图纸
总平面图
首层平面图
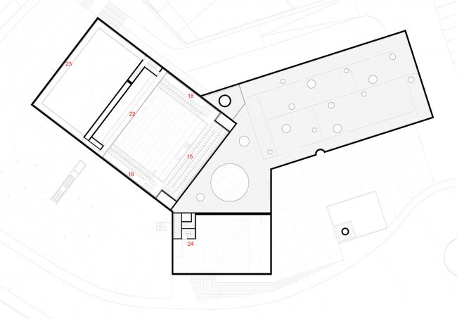
二层平面图
三层层平面图
屋顶平面图
剖面图
剖面图
剖面图
剖面图
剖面图
剖面图
项目信息
建筑师:AND-RE
地点:3750 Agueda,葡萄牙
总建筑面积:4500.0平方米
项目年份:2017年
建筑摄影:Fernando Guerra | FG + SG
委托方:Águeda市政府
微信公众号:xuebim
关注建筑行业BIM发展、研究建筑新技术,汇集建筑前沿信息!
← 微信扫一扫,关注我们+

BIM建筑网
























