这座两层楼的混凝土房屋位于Faqra- Lebanon的雪地度假胜地,通过轻微弯曲的几何形状拥抱其三角形的场地角落,创造出不同体验和环境品质的不同户外的空间感受。房子由一个矩形的底层(5.5米X 20米)体量组成,包含卧室和一个位于其上方的悬浮弯曲的体量(大小约为5.5米×24米),包含建筑主要的生活区。
设计始于黎巴嫩的城市神话,声称可以在同一天在山上滑雪和在海里游泳;独享黎巴嫩地理气候几个季节的相互重叠感受和独特体验。将这种体验扩展到住宅的国内规模,将高架户外屋顶的山景与地面室外游泳池区域融为一体,通过连续循环的交通流线而实现这一点。
由于度假村的季节性周期及其与黎巴嫩宗教和国家假日的重叠,设计重点是通过沿着该环路协调四个“天气特定”的室外空间来最大化度假屋的年度入住率。鼓励在每一个季节和淡季享受每个空间及其封闭和开放和太阳方位之间的关系。四个户外空间使房屋具有穿透渗透性,并且可以流通天气,阳光,树荫,甚至是季节性的落叶和积雪。
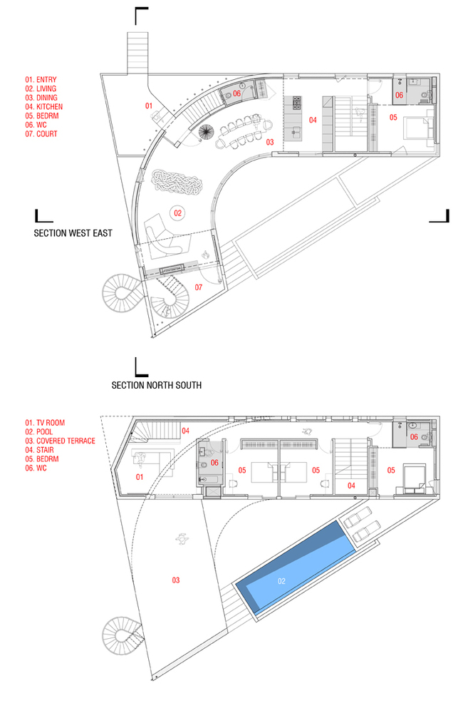
房子围绕着四个户外空间的流通布局而组织:从一楼的(春季)的入口迎宾露台可以通过一个镶切入墙的楼梯到达(秋季)屋顶天台娱乐区域,然后再回到开放式的屋顶部分(象征着冬季时令)高架内庭院位于一楼,通过一个螺旋楼梯,进一步向下到地面(夏季)游泳池空间。这创造了一个连续的流动空间,人们在此活动,补充了房屋内部空间的序列,而不会进入到内部的空间流线。
这条路径成为一种体验建筑空间的方式,即建筑与其环境之间的中间过渡状态。房屋的体量铰接关系来源于交通空间和朝向视图的方向。底层是一个简单的矩形形状,私人空间朝向泳池甲板休息区域,一楼的生活区域向着人们的视线弯曲,人们也能望见后面弯曲的建筑体量和自己。在内部,弯曲的空间配有定制设计一体化的弯曲餐桌。
整体的建筑空间线条一侧有着可操作的木质弧形移动墙体,另一侧配有弧形圆度的玻璃墙,有着可以远眺雪山的全景视野。屋顶作为建筑的树木线上方的空间中心,人们可以从上下方的街道进入于此,进行日落派对和聚会活动场所,其扩展的栏杆在此时变成了一个供狂欢者使用酒吧柜台。
图纸
总平面图
首层平面图
东立面图
西立面图
剖面图
剖面图
季节日照分析图(BIM工程师)
季节日照分析图
模型图
模型图
模型图
模型图
模型图
模型图
项目信息
建筑师:左建筑师*(L.E.FT Architects)
建筑位置:Faqra,黎巴嫩LE FT建筑师事务所Makram el Kadi,Ziad Jamaleddine
设计团队:Daniel Colvard,Ana Conchan,Valeria Fervorari,Mahdi Sabbagh,Karine Yassine
总建筑面积:250.0平方米
项目年份:2016年
建筑摄影:Bahaa Ghoussainy
制造商:Arclinea,Carl Stahl,Delta Light,EDRA,Viabizzuno
景观建筑:弗雷德里克弗朗西斯景观建筑
结构和MEP:工程师BTUTP
承包商:CPM承包

BIM建筑网














































