工作与生活的共生
圣水洞3/1楼位于一个狭窄的住宅区内,像这样的住宅区在重工业区很难找到。你在狭窄的街道中走几步,就会看到各种各样的工厂在工作。尽管许多工厂由于资本价值被转移到城市的这片郊区中来,但是圣水洞仍然可以为市民提供活跃的城市氛围,工作和生活在这里可以无边界地共存。
这座建筑与圣水洞的城市现状一样,是一个工作和生活共存的地方。3/1楼为综合楼,底层为商业设施,上层为办公居住一体式公寓。有了这样的复合式建筑,不同的使用者可以在白天和夜间的不同时间段里高效共享狭小场地内的有限空间。
上大下小的体量
3/1楼位于圣水洞,你可以看到线条感相似的三层多户住宅,立面上带有阳台。尽管与首尔的其他老住宅区相似,但圣水洞是一个重工业区,容积率高达4.0。街上新建的建筑物基本上都在7-8层以上,将狭窄的街道塞得满满当当。
从另一方面来看,3/1楼是一座上大下小的建筑,下层的体量比上层的小很多。这样的结构设计从竖直方向上扩展了狭窄的街道。较小的低楼层扩大了与周围建筑之间的距离,以尽量减少对邻居隐私的侵犯,并为在街上行走的人提供更加开阔的景色。事务所希望3/1建筑的这些特点也能为圣水洞的其他建筑提供启发。
圣水洞的记忆
当你从地铁2号线往下看时,你会注意到,从小变大的红砖建筑隐没在圣水洞的城市肌理中。尽管3/1建筑的形状不同于城市肌理的其他部分,但3/1建筑试图通过材料来反映过去的记忆,并与周围的建筑协调一致。3/1建筑在使用老材料的同时也考虑了建筑的现代性,因此以独特的方式使用砖块。为了表达两种不同功能的共存性,3/1建筑在边缘铺设时使用了不同的立面砌块密度。底层商业区采用双层幕(BIM)墙设计,在相对狭窄的室内空间内,最大限度地提高开放感。此外,考虑到周围建筑物的视觉干扰,上层住宅区的窗户较少。这种砖砌结构就像一个屏幕,它允许光线进入建筑物内部,同时保护邻居的隐私性。
耐久性
城市价值是随着时间流逝而慢慢积累下来的各种痕迹。事务所认为圣水洞正是因为它提供了独特的氛围而不是寻求狂热或便利而变得出名。3/1建筑已于2018年新建完成,也考虑到了在圣水洞未来时间里的使用性能。材料的选择在耐久性和现代性方面也进行了充分的考虑,结构形式比较灵活,能够适应不断改变的城市用途。
图纸
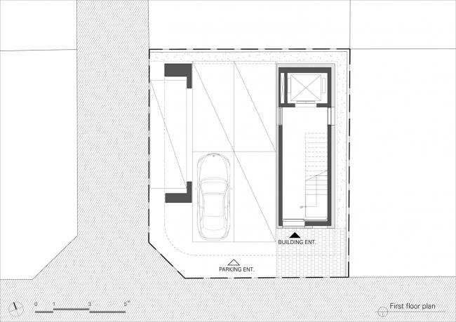
一层平面图
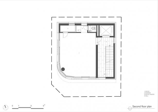
二层平面图
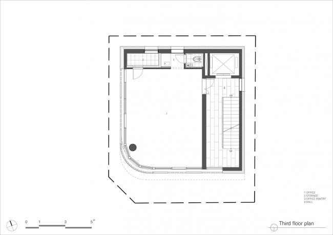
三层平面图
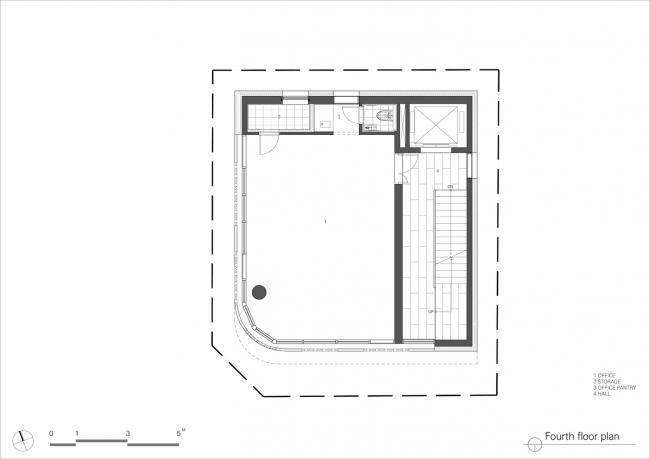
四层平面图
五至六层平面图
七层平面图
西立面图
南立面图
剖面图A-A
剖面图B-B
剖透视01
剖透视02
剖透视03
项目信息
建筑设计:Sosu Architects
项目区位:韩国,首尔,城东区,圣水洞
主导建筑师:Seokhong Go, Mihee Kim
设计团队:Seona Kim, Yunsun Park, Hyeongwon Yang, Yeseul Hwang
建筑面积:477.55平方米
项目时间:20(BIM学习)18年
建筑摄影:Kyung Roh
制造商:Domus Tiles, Namsun, Signify, DAELIMBATH

BIM建筑网













































