维基酒店位于智利圣地亚哥以南200公里的安第斯山脉和科迪勒拉德拉科斯塔之间的Millahue山谷,这是一个面积约为1600公顷有着令人叹为观止的景观的世外桃源,并且还是创造迷人醉心的葡萄酒世界的佳酿庄园。
该建筑坐落于山顶处,位于一个山谷的极佳的黄金位置,人们可以寻求360度的ViK美景,在其中有自然的山脉,山谷景观,葡萄园和湖泊景致。
该项目的开发一方面涉及到的是全玻璃纯净形式的概念性研究,最小的场地干扰规划,最大宽广的景观视野,栖息在混凝土基础上,房屋从俯瞰山谷的顶部稍微抬起,另一方面是钛屋顶具有其独特的设计,重新诠释了这个地方的意义(Millahue意为在马普切的黄金地方),试图模仿环境的反复无常的山脉的隐喻表征(BIM建筑)以及周边山区的给人带来的意识形态等等。
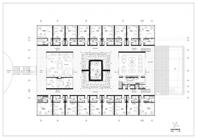
该项目围绕一个中央庭院进行规划布局,这是一个可以让人沉思的禅宗花园,在其周围围绕着一系列的画廊空间和交通空间的组织设计。
在建筑的南北立面,客房拥有一定必要的隐私住房私密性,以及周边环境连绵不绝的山脉框景和葡萄酒庄园的最佳景观,而东面和西面则是酒店的公共空间部分区域,包含主入口,客厅,画廊,图书馆,餐厅和接待大厅,人们可以从容的在整个建筑物内流畅的不间断的游走,并享受远处完整的全景视野。
可持续管理自然资源和可再生能源,并采用最先进的技术,一直是该项目的关注点。
在建筑构造过程中所使用的建筑材料,例如钛,铝,钢,混凝土和玻璃,全部是在几乎零程度的维护成本内,以及会更加选用耐久性更强的建材基础上来进行选择与设计的。
这座酒店的总建筑面积约达3200平方米,其中包括了22间客房,还有一个7星级酒店所需必备的公共空间场所,以及高级的疗愈治疗中心,和拥有朝向日落宏观景象的无边界泳池设施,这些也仅只是建筑项目的一部分功能。
图(BIM设计)纸
平面图
北立面图
东立面图
剖面图
模型图
项目信息
建筑师:Marcelo Daglio Arquitectos
地点:Millahue,Coinco,VIRegión,智利
项目面积大小:3200.0平方米
项目年份:2014年
制造商:panoramah!
合作者:罗兰多莫雷拉
施工单位:DVC De Vicente Constructora
灯光设计:HervéDescottes。L'OBSERVATOIRE INTERNATIONAL
照明设计师:结构Soler&Asociados
声学设计:马里奥莫拉
技术检验:Juan Eduardo Mujica
钛屋顶设计:QuintaMetálica(西班牙)
项目文本:Marcelo Daglio


BIM建筑网

























