沙发餐区
该项目位于魔都上海的正中心商业区,陆家嘴中心MALL内。
「塔哈尔」在新疆菜系中已有相当知名度,也因此留给大众固有的刻板印象。
此次设计师打破“新疆=黄绿蓝”的呆板配色及过于陈旧的民族审美理念,从消逝的古楼兰文化开始,寻找全新的现代民族风采。
陆家嘴中心
设计元素-凉房
既要体现当代的审美意趣,又不能完全抛除西域元素,设(BIM教程)计师提取当地用于晾晒葡萄的土坯凉房元素,用晶莹的玻璃砖赋予其全新的灵魂。
玻璃砖凉房
设计元素-新疆老墙
门头位置的主景观区域我们采用一整面红砖垒砌的墙面将内外空间隔断。内嵌的尖顶样窗户是从西域特有的艺术符号变形得来。
现代民族风味十足的老墙
设计元素-葡萄架
葡萄架框架房
为了避免餐厅内部的狭长空间使人产生的压抑感,设计师引入「葡萄架」元素,与古楼兰土房相结合,形成错落有致的特色框架式结构。
沙发餐区
夯土墙作为矮隔断分隔不同餐区,古老技艺的夯土墙与金色不锈钢结合,新与旧的碰撞使空间和谐而丰富。
透过铝管,可隐约看见明档区域
高低错落的排列,赋予空间几何感
木纹铝管的葡萄架在顶面上架构出方正的格子并镶嵌彩色纤维草茎纸,投射出的斑驳光影营造出室外庭院的氛围。
架顶彩色的草茎纸
餐区近景
餐区近景
餐区近景
明档区域
「塔哈尔」的明档紧挨主通道,几乎每一个消费者都会路过从而进入用餐区。明档空间通过连贯的细长窗口呈现,干净通透并具有强烈现代感。
主通道
明档区域
设计元素-楼兰符号
明月出天山,苍茫云海间。
沙漠、骆驼、绵延不绝的山脉、璀璨绚(BIM培训)丽的银河,古楼兰的壮景以扁平化的平面元素出现在餐厅各处。
模仿银河散布的内嵌顶灯
包厢顶部
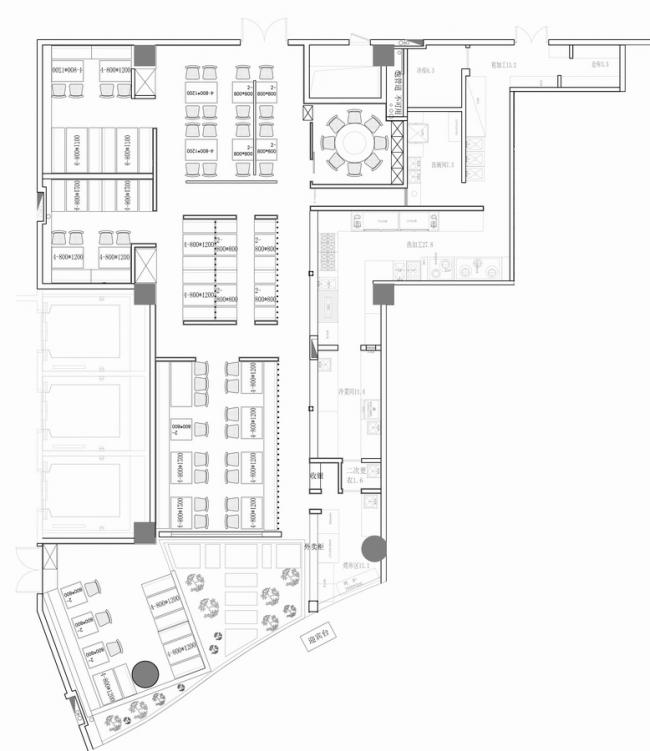
平面图
项目信息
项目名称「塔哈尔·迷迭巷」上海陆家嘴中心店
地点:上海
4p(style=”widows: 1; line-height: 2em;(text-aligf: center;”>建筑面积:326m2
设计单位:杭州卧野空间设计有限公司
主案设计:苏静
项目负责人:阿超
项目深化:党大勇
摄影:苏静

BIM建筑网



















