西南角水景
缘起
南京的温泉,在江南地区久负盛名,比如汤山温泉,再比如,项目所在地的老山温泉。温泉会所位于老山北麓南京仁恒凤凰山居项目东南角的一个小坡地上,有山,有树,有水,有温泉,背对都市,远离喧嚣,只见绿树群山,看不见房子。晨雾升起,百鸟朝鸣,朝露待日晞,一派难得的田园山居景象。
鸟瞰
西侧实景
由于用地红线深入老山国家森林公园林场,用地红线犬牙交错,这里也形成了一小口袋,面对城市的袋口小,迎向森林的袋内乾坤大。项目总占地1830平方米,地下室是温泉泡池区,底层、二层是接待、私宴区,三层是独立SPA区,总计建筑面积2676平方米。
鸟瞰
南侧夜景
灵感
背城望山,拥抱自然,是设计的原点,而山中云雾缭绕和温泉水汽蒸腾若隐若现的感觉,则是此时此地触发的设计灵感。本项目采用开放式陶棍幕墙,用玻璃与陶棍格栅组合,创造出连续透明、半透明、不透明(BIM设计)的表皮,模糊室内与室外的边界,贴近温泉的本质,让建筑融入周围的自然环境。
南侧实景
西南角局部
南侧实景
西侧实景
建筑细部
体量
沿着不规则的用地边界进行形体分解,先形成一个不规则的四边形基座,在敦实的基座上,三层体量上围绕迎向老山森林公园的大露台,切割成三个彼此分隔的坡屋面,削弱建筑整体体量感,以V字形的姿态拥抱自然。而入口处用三角形的大雨棚落客区向外侧延伸,使形体更为舒展。
鸟瞰
西南角水景
视线
背城望山,是视线控制的基本原则。朝向城市的一面尽量以实体相对,不开窗或少开窗,渐渐过渡到沿山一侧全开放的玻璃幕墙。而随着建筑高度的增加,沿山的景致也逐渐不同,为收纳近景、中景、远景,外表皮的开放度也各自有别。以陶棍构成的双层幕墙,则中和了实与虚的冲突感,使整体更加均衡。
沿山东南实景
细节
矩形的陶棍规格很小,短边朝外,同时优化了陶棍的连接件构造做法,用角钢代替常规的方钢,受力构件嵌入中空的陶棍中,并使用L型成品铝型材收边,将可视面尽量收窄,一切的手法,都是为了看起来更加纤细。
纤薄的雨棚细部
建筑细部
建筑局部
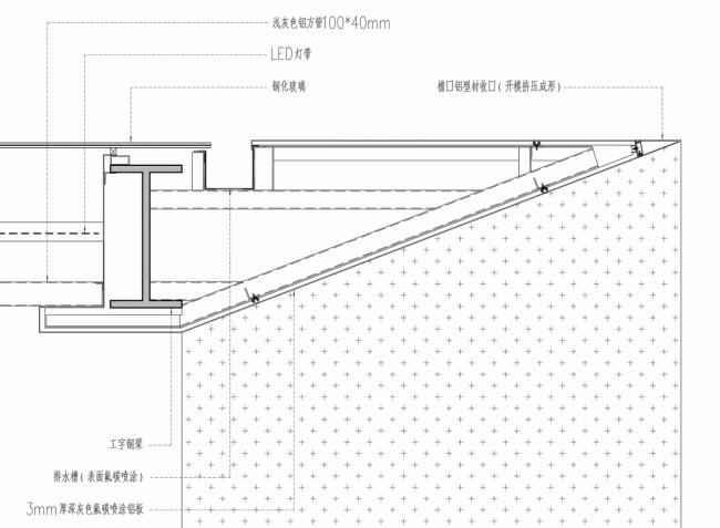
檐部出挑部分用钢结构悬挑,自由落水不设檐沟,最端部的檐口部分采用铝型材挤压一体干挂,并增加一道内凹的异色线槽来掩饰粗壮的现浇混凝土檐部,都是为了保证了纤细的轻薄的效果。
spa区细部
spa区细部
三层露台
建筑细部
一层廊下空间
宽大的入口雨棚向外延伸,跨度达到13-16米,钢梁的厚度非常大,为了降低厚重感,在檐部使用倒三角的铝板形体切割,落地的柱子也通过相同的手法进行装饰,以一种类似“折纸”的方式解决结构问题,既稳定又轻薄。
入口空间
三层露游廊
室内spa区
门厅休息区
图纸
地下一层平面
一层平面
二层平面
三层平面
东立面
西立面
檐口节点
陶棍幕墙节点
雨棚节点
陶棍与玻璃交接节点
项目信息
建筑师:上海中房建筑设计
地址:浦口区高科六路3号,南京市,江苏省,中国
设计团队:黄涛、卞晖、岳晓、李永民、方文锐、李纯钢、汪廉、王兆强、王卉、焦满勇
建(BIM培训)筑面积:2676.0 m2
项目年份:2018
摄影师:梁山
开发单位:南京仁恒置地
景观设计:新加坡诗加达景观事务所(Cicada)
室内设计:梁志天设计集团有限公司(SLD)
灯光设计:世纪光华

BIM建筑网





































