学前教育是人生成长过程中最重要的阶段之一,所以我们应该格外关注陪伴这一阶段发生的空间场所品质。每一个孩子的潜能都不应该被低估,因此幼儿园建筑也不应该仅仅是在室内多刷了几种颜色就了事。孩子是一类重要而敏感的受众群体,他们(BIM培训)对设计师的要求也是最高等级的。
一所由五个分支机构组成的幼儿园建立在克利斯茨威卡区的中心区域,位于奥利郊区。周边环境以混乱的单户住宅为主。距离地块再远一点的地方你可以(BIM)看到四个街区组成的小集群。在这样的环境下,幼儿园需要一个全新的空间和品质。
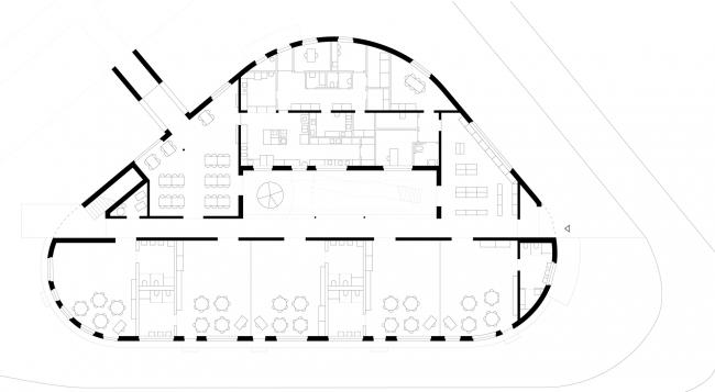
地块的形状呈不规则状,类似于一个三角形,主要用于在现有学校的旁边建造一个学龄前教育区。原有的学校总共有两层,看起来似乎已经占满了整个场地,但实际上还是为活动场留下了一点空间。事务所决定建一个有圆角的单层建筑,它几乎满铺在整个场地上,为了孩子们有室外玩耍的空间,建筑师设计了一个大屋顶平台。
为了让所有的房间和走廊都能获得自然照明,事务所在幼儿园的中心放了一个长方形的中庭,这一小块天地与外部连通,可以感受到雨雪天气以及太阳的不断变化。中庭空间呈开放式布局,钢楼梯可以从地面通到屋顶。流线型的木制露台中间有两个绿色的圆形岛屿,鼓励孩子们绕着这两个圆圈欢快地奔跑。在露台外面,屋顶覆盖有观赏性的植物。遗憾的是,在施工期间,地块边界的老洋槐树没能被保留下来,不然的话还能为露台提供一小块遮阴。新种下的树还要等几年才能慢慢长大。
幼儿园建筑体量是有圆角和混凝土墙不规则穿孔的三角形。矿物棉辅助垂直铺设的木板外墙,形成建筑的保温层。墙线的流动性保持良好。
钢筋混凝土墙配有热交换器和加热系统。矿物棉在夏天起到保护作用。水分可能会在隔热层中先停留一段时间,然后被排放到外面。墙上缝隙对室内过热有不同的作用形式。矿物棉作为一种完全不易燃的材料,能够将火灾风险降至最低。
钢筋混凝土墙与地面换热器、供暖和通风系统完美结合,构成了一个优质的冷热补偿装置。矿物棉保护建筑免受外界热量损失和夏季过度得热的影响。
垂直板的覆层也用外墙覆盖。墙壁和屋顶会自然老化,树木会慢慢生长,草也会变厚。从建筑物投入使用时的外观来看,再过几年时间,建筑本身的功能性和老化程度就会慢慢将幼儿园的立面形式向事务所预习的方向推进。
整座幼儿园呈流线型,带有大面积的木质露台和三个圆形岛屿。在露台外面,屋顶覆盖着观赏性的景观草。形式上确实很难与原有建筑的风格保持一致,但是老建筑能为幼儿园提供一小部分遮阴。新种下去的树要再等几年才能长大。目前该项目已获得多项奖项,并被提名为2019年欧盟MIES奖。
图纸
总平面图
功能分析
平面图
轴侧图1
轴侧图2
立面图 1
立面图2
立面图3
剖面图1
剖面图2
项目信息
建筑设计:Biuro Toprojekt
项目区位:波兰,奥利
主导建筑师:Marek Wawrzyniak, Karol Wawrzyniak
设计团队:Alina Kudla, Katarzyna Mazurek, Izabela Groborz-Musik
建筑面积:1060.0平方米
项目时间:2017年
项目摄影:Juliusz Sokołowski, Wojciech Bęczarski
制造商:Roxul

BIM建筑网




























