该项目在设计初期面临的首要挑战是通过改造和复兴这个70年代的旧有建筑成为现代一般的办公室大楼。
该建筑的所属公司是一家极具独立性和非营利性质的组织机构。其基本的工作业务主要是通过小额贷款和小利率的贷款方式来管理和运营社会保障基金,为退休人员和工人提供一定程度的经济帮助和资助等等。并且在其中主要的受益群体多是老年人,他们的闲暇时间是该机构的重点改造需求和目标。
建筑概念和方案
为了创建和改造这个古早的灰色的70年代建筑,能够重新转变使其成为一个新的表达建筑形式,我们使用了休闲- 自然的关系作为主要的建筑概念来源。使用一些明亮和轻松的建筑语汇来表达是象征这种我们想要传达的生活概念——即是休闲于自然两者之间的关系方式。
所以我们在立面表皮的设计上采用构建了这种光明和轻盈的表达,并且结合该机构公司与其城市环境之间的关系,换句话说,可以通俗的讲就(BIM设计)是建筑与其“城市性”之间的关系。
与此同时,建筑的设计概念是通过可持续性的外观设计来有效地收集能源,达到环保低碳的想法。
这种双层外立面皮肤可以当作是日光的紫外线过滤器,成为一个隔离室内外空间,并且达到室内舒适度的良好组件。
内部空间设计
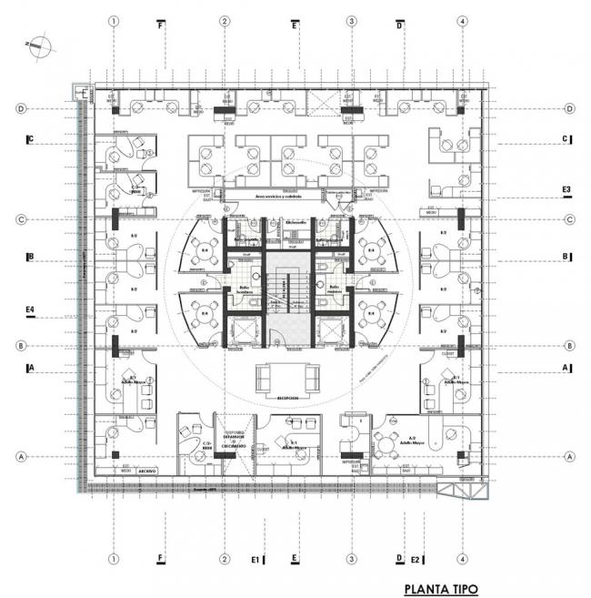
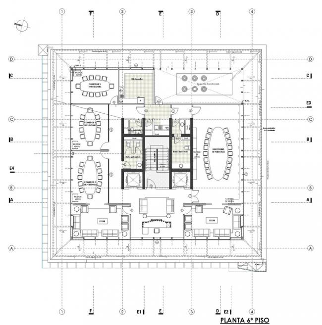
在内部空间的设计上,我们创造了一个圆形核心,并将它改变了旧有的几何形状,并提供了流畅,连续和功能的交通空间,来串联链接垂直楼层的空间组织。
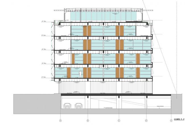
图纸
平面图
平面图
平面图
剖面图
剖面图
立面图
立面图
剖面图
项目信息
建筑师Murtinho和Asociados Arquitectos
建筑地点Holanda 2-66,Providencia,RegiónMetropolitana,圣地亚哥智利
主持建筑师Santiago Raby Pinto
合作者建筑师Miguel Angel Contreras Ch。亚历杭德拉·洛佩斯
委托方LosHéroesCajaReponsación
承包商ALTIUS
建筑面积3350.0平方米

BIM建筑网




























