Oodi在赫尔辛基中心区的重要位置,面向芬兰议会大楼的台阶,Eduskunttalo穿过Kansalaistori广场,是处于重要的公民机构旁的公共空间。
Oodi位于Eduskuntamalo对面,是政府与民众之间关系的象征,它提醒人们芬兰图书馆准则的规定,图书馆须有助于终身学习、保护公民权、民主和言论自由。它还将新图书馆置于赫尔辛基文化区的中心,靠近首都的许多重要机构。
Oodi在楼上有一间安静的开放式阅览室,被人们称为“读书天堂”,但书只占图书馆空间的三分之一。Oodi的设计师和图书馆员减少了就地存储和用户咨询的感知文化,而是引进了一些设施,包括咖啡馆、餐厅、公共平台、电影院、录音棚和制片人空间。这是芬兰图书馆除了借阅书籍之外提供新服务,是可推广试验的代表。
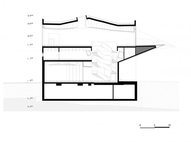
图书馆的功能设计为三层:底层是将城镇广场延伸进室内的活力空间,二层空间内设置有一系列用于容纳更多服务空间和配套设施的房间;顶层内则是安静的开放式阅览室——书的天堂。这一空间概念是将图书馆搭建一座栖居的桥梁,它以两个巨大的钢拱支撑,跨度超过100米,创造出完全封闭的、没有立柱的公共入口空间、房间均排布在周围,上层是开放式阅览室。
Oodi考虑到当地的气候条件,材料选用因地制宜,屋顶和阳台上覆着33毫米厚的芬兰云杉板。在Kansalaistori广场上方覆盖,将室内和外部空间混合起来,并在图书馆前庇护公众活动。
顶盖结构的上表面成为巨大的公共露台,赫尔辛基市民在这里可以直接俯瞰广场,直至芬兰议会的台阶和主要入口。露台为读者提供的公共户外空间因此增加了一倍,并创造了一个观察与会面的新去处。
Oodi的底层将Kansalaistori广场的公共空间延伸至内部。一楼旨在使图书馆的各项设施显眼可用,并提供非商业性的室内空间,每天都向所有人开放。国家视听研究所(National Audiovisual Institute)的电影院KinoRegina将占用一层空间,另有一家咖啡馆和餐厅,夏天会把座位摆在广场上。
中间层的“阁楼”,房间灵活布置,这些房间位于桥梁桁架之间的缝隙和周围。多功能空间的设计既能容纳或嘈杂或安静的活动。Oodi还将在这一层提供诸如工作室和录音棚等设施。
“书的天堂”在顶楼,是一片开阔景观,云顶天花板被圆形顶灯贯穿。在这里,特色的现代图书馆展示了21世纪技术带来的新的可能。宁静的气氛邀读者阅读、学习、思考和享受。在这一层,游客可以欣赏市中心360度全景,也可以走到露台上俯瞰Kansalaistori广场。
项目图纸:
▲剖面图
▲立面图
▲剖面图
▲平面图
▲平面图
▲总平面图
▲平面图
▲立面图
▲立面图
▲剖面图
▲剖面图
▲立面图
▲剖面图
▲平面图
▲剖面图
项目信息:
建筑师:ALA Architects
地址:Töölönlahdenkatu, 赫尔辛基,芬兰
类别:图书馆
客户:City of Helsinki
建筑面积:17250.0 m2
项目年份:2018
摄影师:Tuomas Uusheimo
厂家:SISÄRAKENNUSTEKNIIKKA SRT OY, Teräselementti Oy, Timberpoint Oy, Mikroväylä Oy, Tormax, Windoor AS, Lumir Oy, Jaatimet Oy, Idea-Puu Oy, Sisuwood Oy, OTIS Oy, Icopal Oy, Lopen Rakennuspuu Oy, TIMBECO WOODHOUSE OÜ, UniFor Spa
竞赛阶段合作方:Arup (energy technical specialist, mechanical engineering, (BIM教程)structural engineering and facade engineering), VIZarch (renderings), Klaus Stolt (scale models).
执行阶段合作方:YIT (main contractor), E.M. Pekkinen (contractor for excavation work and basement construction), Ramboll CM (project management) Ramboll Finland (structural engineering, HVAC, ene(BIM学习)rgy technology), Granlund (theater technology), Rejlers (electrical engineering and AV consulting), Finnmap Infra & Sipti Infra (geo planning), Helimaki Acoustics (acoustical engineering), Gravicon (BIM coordinator), Palotekninen insinööritoimisto Markku Kauriala (fire safety), Pöyry Finland (traffic planning), Saircon (kitchen design), VIZarch (renderings) and StoltModels (scale models).
ALA设计团队(竞赛阶段):ALA partners Juho Grönholm, Antti Nousjoki, Janne Teräsvirta and Samuli Woolston with Aleksi Niemeläinen, Jussi Vuori and Erica Österlund, as well as Willem Barendregt, Martin Genet, Vladimir Ilic, Tiina Liisa Juuti, Julius Kekoni, Auvo Lindroos, Pekka Sivula, Pekka Tainio and Jyri Tartia
ALA设计团队(执行阶段):ALA partners Juho Grönholm, Antti Nousjoki, Janne Teräsvirta (until 2015) and Samuli Woolston with Niklas Mahlberg, Jussi Vuori, Tuulikki Tanska, Tom Stevens, Nea Tuominen, Pauliina Rossi, Anna Juhola and Miguel Silva, as well as Michal Bala, Marina Diaz Garcia, Jyri Eskola, Zuzana Hejtmankova, Harri Humppi, Mette Kahlos, Anniina Kortemaa, Felix Laitinen, Malgorzata Mutkowska, T. K. Justin Ng, Marlène Oberli- Räihä, Olli Parviainen, Alicia Peña Gomez, Anton Pramstrahler, Jack Prendergast, Akanksha Rathi, Niina Rinkinen, Mikael Rupponen and Pekka Sivula
项目概况:Library facilities, meeting rooms, group working space, maker space, living lab, recording studios, photography studio, editing rooms, office space, café, restaurant, movie theater, auditorium, multi-purpose hall, exhibition facilities, information booths, 17,250 m 2 total

BIM建筑网























































