二沙岛就是广州的中央公园。环绕大片绿地,四周是高级住宅和博物馆、音乐厅。在上世纪80年代初的规划,整个岛只有外销房,一般市民是不能上岛的。可见这个岛优越的地理位置。上世纪90年代初政府开始在南岸打造“文化黄金海岸”,陆续建成省美术馆、星海音乐厅等国内一流的艺术场馆。二沙岛成了广州市民心中“阳春白雪”的代名词。
文立方项目是“文化黄金海岸”在线最后的地块,计划由一个民间艺术基金会以自筹资金形式做一个“mini西九”—以物业经营资助文化艺术活动,形成自给自足的可持续发展模式。2010年接到这个项目的时候,建筑师正好还住在岛上。晚上常常在南岸江边散步。路的一边是围墙里的豪宅大院和博物馆,黑洞洞的木无表情;另一边是大榕树下的“音乐会”,来散步吹江风乘凉的市民,常常三五成群围聚在那些自弹自唱的街头艺人身边。这活生生就是Allan.B.Jocobs《伟大的街道》所描述的场景:“总有一些街道,要比其他街道更不一般——置身其间,你胸中了无挂碍,可以随心所欲地做自己想做的事。”这里白天杳无人烟,一到傍晚就开始热闹非凡。“不是因为我们必须去那里,而是因为我们希望去那里”——这是Jocobs对伟大的街道的定义。文立方就在这条“伟大的街道”尽头。怎么能让“街道”的场景延续到项目里是建筑师想的第一个问题。
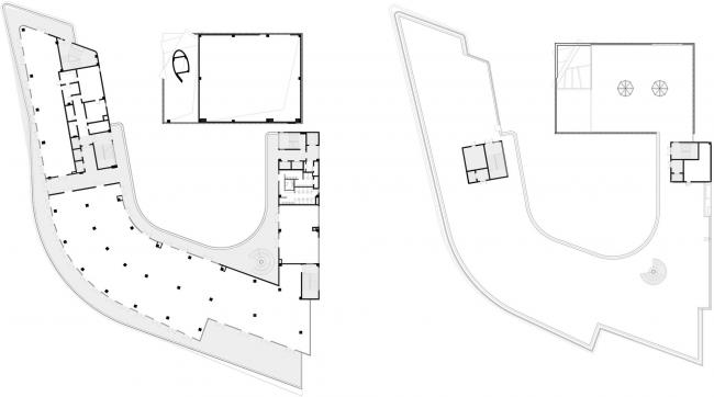
第二个思考的问题是面对周边封闭式设计的建筑,如何创造一个有生机和凝聚力的社区?建筑师米笑想这个房子必须有吐纳功能,所以从一开始就放弃点式单体建筑的总图规划,决定以包含内院的街廓式平面布局,组织展览馆、商铺、餐饮、办公、休闲、演出等等各种功能。内院向街道开放,变成围护感很好的城市公共空间,把周边的建筑整合成一个内聚性的(BIM工作)社区。
垂直街道概念图
第三个思考的问题是可持续发展。民间资金去做艺术公益举步维艰,希望不仅节约基建成本,更要节约日后的运营成本。生态建筑,绿色建筑都是新兴名词,所有符合「常识」的传统建筑都冬暖夏凉。南方地区(BIM)最有效的是遮阳加通风。包含内院的平面对加强通风十分有利,能解决遮阳便能最大程度减低能耗。于是就有了这个凭常识计算出来的方案:在建筑的西南面悬挂一条缓缓爬升的外廓,作为西南立面的遮阳系统,把“伟大的街道”一直延长到天台,带你饱览城市全景:向东是旭日东升的CBD珠江新城,向西是夕阳余晖下的旧城。
一开始外廊的方案是斜坡,功能空间都朝向内院。这样的处理无疑在外观上似乎更具建筑的样式感,但这样一来,具有公共性的“街道”就同功能单元以及内院完全割裂,变得同周边的建筑一样,私有空间同公共空间有严格的等级,经纬分明,无法融合,难以形成富有生机的共享社区。于是把街道放平,以不设门的开放入口和楼梯联合各层,使内院和外走廊成为城市广场及街道的延伸。为了吸引市民爬上5层高的观景台,每一层的外廓都通过平面的进退形成不同的“取景器”。有的时候是宽幅,有的时候是无边。变化的风景引导出一条游走的路径往返城市风光和静谧内院。
顺着基地西南展开的长达160m的弧形外廓,成为立面控制性的语言。如果忽略西北角因业主要求遮蔽厨房而设的铝格栅,整个主立面几乎可说是“没有设计”。最终展厅、餐饮等等各种功能空间在整个外廓框架的控制下呈现各自独立面目——这也许可以归结为同时作为策展人工作多年的影响吧,总希望每一个个体都有各自的呈现。
外墙材质与色彩都没有刻意同周边建筑拉开反差。总觉得在一个过度精英化的社区,最重要在空间本体上实现无阶级。
项目刚完成的时候,刚好华南理工大学建筑学院孙一民院长在一次演讲中谈广州骑楼,“我们完全不用关心它具体的语言,其形式可以是现代的,最重要的是生活。这个城市的生活已经被这些构筑物容纳进来,也就是说骑楼只是起到了一个容器的作用,关键是这样的容器,代表了哪些性格、哪些宗旨。”遮阳挡雨的交通空间、社交空间、文化空间、商业空间,我们最终在二沙岛“文化黄金海岸”增添了一公里“骑楼”。
项目图纸:
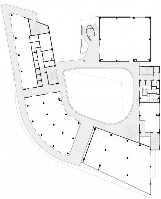
首层平面图
二层平面图
三层平面图
四层平面图
屋顶平面图
剖面图
手绘分析图
项目信息:
建筑师:扉建筑
地址:二沙岛晴波路1号,广州市,广东省,中国
类别:视觉艺术中心
主创建筑师:米笑
设计团队:李致尧、刁家俊、喻耀、宋定侃、岳靓
建筑面积:22550.0 m2
项目年份:2018

BIM建筑网


























