该项目位于印度尼西亚首都雅加达的中心地带,周围环境拥挤,建筑空间有限。土地本身是相当独特的,形状狭长,位于一个道路交叉口的拐弯处。我们分析研究了空间的形状,并从我们的客户那里收集了所需数据。随着客户需求不断增加,如何将其要求与有限的可用空间结合起来进行功能设计,这成为一项挑战。
根据研究数据,我们最终希望将整体结构垫高,以狭长的地块引起垂直空间组织,并遵循土地原状。然而,狭小空间上的高耸结构可能会产生尺度过大的立面,因此为了克服这一问题,斜向切割了立面顶部的一角,使得人类尺度的观察更加协调。
由于建筑物的正立面朝东,随机的开窗使得进入房屋的自然日光量降至最低,减少热量过剩。对于立面材料,我们决定使用沥青混合料/沥青来减少从材料吸热,使得进入房屋的热量高达70%,另一个好处是易于维护,从而帮助客户为一个平常而易打理的建筑外观。
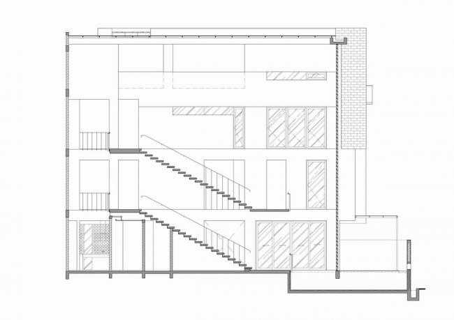
楼梯解决垂直环流,新鲜空气从而流入房间,并通过楼梯上方的天窗得到更好的日照。
楼梯与室外直接相连,是无空调区。在楼梯和底层起居室之间,设置巨大的推拉门,可以根据需要开合。当空调打开,这些滑动板关闭以保持凉爽,日常生活中可以打开,通过楼梯上的天窗产生空气流通。
室内的浅色装饰和白橡木家居非常突出,使房子稍显宽敞。深色铺砖也更适合营造舒适宽敞的感觉。
项目图纸:
首层平面图
(BIM工作)二层平面图
三层平面图
四层平面图
立面图
立面图
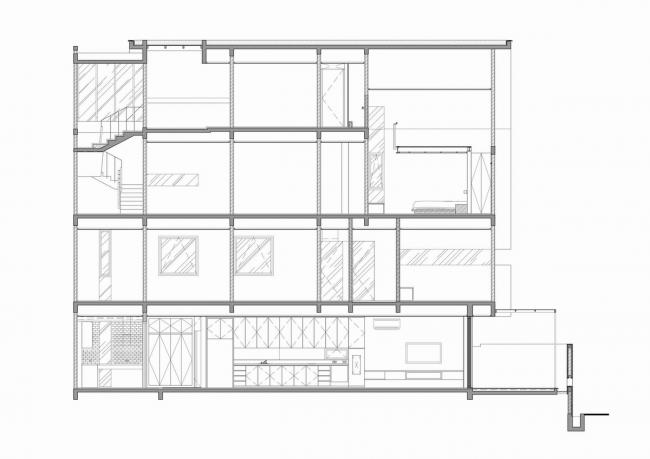
剖面图
剖面图
剖面图
剖面图
剖面通风示意图
体块概念
体块概念
体块概念
项目信息:
建筑师:Hmp Architects
地址:Jak(BIM)arta,印度尼西亚
类别:独立住宅
主创建筑师:Wenda Andriyani
建筑面积:315.0 平方米
项目年份:2018
摄影师:Mario Wibowo
厂家:YKK, HPL, Verona Tile, Gamma Paint, Owen Corning, MASS Ceramic
室内建筑师:Hmp Architects
主创室内建筑师:Leonie Natania & Rendi
市政施工方:Puspa Graha Utama
室内施工方:Indepth Interior
灯光设计师:Class International
工程顾问:D' Ninos
结构顾问:Junaedi Masil & Associates
土地测量:Testana Indoneknika

BIM建筑网



































