新兴是禅宗六祖惠能的故里、弘法及圆寂之地,千年禅都的美誉之下,一直香火鼎盛,吸引许多人慕名而来。新兴一派粤西小镇特有的景象,群山沉幽,千里绵延,溪涧环绕,水流淙淙,偶有千年古刹耸立半山,升起袅袅香火。
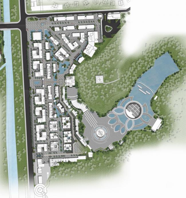
新兴六祖大道旁坐落着一个禅宗主题的综合文化旅游基地——禅域小镇,包含禅音堂、商业街、雅途酒店等多个区块,禅域小镇商业街涵盖购物、娱乐、住宿、体验等综合商业区,为游客提供多元化全方位的游玩服务,并定期开展禅宗主题展览及演出。
景区以禅宗文化为主题,将岭南特色的古朴与精致、唐风的大气与古典作为背景,街道的每一条石板路、鳞次栉比的商铺,夹河而居的生活仿佛将千年前岭南的悠长岁月划拉至眼前,远离喧嚣、禅意自得。
▲岭南首台情景体验大型影音实景演出——《禅宗圣域·六祖惠能》,以“禅域、禅脉、禅缘、禅音、禅法、禅境、禅圣、禅悟”八个篇章构成史诗巨作,再现六祖惠能开悟弘法的一生。
惠能一生闻道、求道、得道、传道的经历颇为传奇,为世人津津乐道,设计团队仔细研读了惠能的得道之路、禅宗的相关经文、文献,希望商业街在承载游乐购物功能的同时,让旅客领略六祖惠能传奇的一生和禅宗文化的博大精深。
设计师发现惠能与禅宗的文化故事既具有禅宗深意,又较为接近普罗大众,易于传播,于是将这些禅宗小故事抽象、重构、艺术化后形成禅文化景观,在商业街上徐徐展开。
禅域小镇是新兴实现“文(BIM设计)化+旅游”的重点项目,也是挖掘、保护和传承禅宗文化的重要方式。我们希望在项目的参与上,不仅是做设计,而是对整个项目进行产品策划——既能对新兴现有的旅游市场进行系统的完善,又能对新兴禅文化进行更深层次的展现和传承。
——主创设计师张达
祖问曰:汝何方人,欲求何物?
惠能:弟子是岭南新州百姓。远来礼师,惟求作佛,不求余物。
祖言:汝是岭南人,又是獦獠,若为堪作佛?
惠能曰:人虽有南北,佛性无南北。
獦獠身与和尚身不同,佛性有何差别?
惠能生于岭南,传道岭南。
惠能对于禅文化的改进与传播,标志着印度禅彻底转化成中国禅,也奠定了岭南作为禅文化发祥地的重要地位。清初秀才李蜚粤在诗中道:“岭南本是禅宗地,世世传灯有姓卢”(惠能俗姓卢)。
禅域小镇商业街将建筑、水体、石景、植物融为一个整体,用“咫尺山林”的手法,在小环境中营造岭南的山清水秀、开朗明快的景观空间。游客仿若身处惠能传道时的岭南,步移景异中感受安和平远,领略禅意。
岭南随处可见溪涧、水谷、泉池,因而场地形成多个形态各异的水池及池边植物设计,并以桥、廊、亭、榭紧密结合,体现朴实美观的意境。
一条“云水街”沿着路面中轴划出折线形的水镜,如溪流从家门前流过,碧树亭亭植于其上,与屋舍商铺前精心铺置的景观相呼应,氤氲出岭南水乡夹河而居的悠情。
五祖令人作偈。
神秀呈献:
身是菩提树,心如明镜台。
时时勤拂拭,勿使惹尘埃。
六祖即曰:
菩提本无树,明镜亦非台。
本来无一物,何处惹尘埃。
商业街主轴线之一的起点设置镜面水与树阵形成商业街入口广场空间。站在入口处,镜面水倒影着轴线上的阙楼,倒影着远山佛塔,两边树荫婆娑,营造出干净简洁而又不失活力的禅意空间。
“明镜亦非台”,镜面水景倒影天地,水中云图装饰,似云非云,似台非台,真真假假,相互照应。“何处惹尘埃”,水景中点缀艺术化设计的白莲雕塑,清净无垢。
祖令上船,五祖把橹自摇。
惠能言:请和尚坐,弟子合摇橹。
祖云:合是吾渡汝。
惠能曰:迷时师度,悟了自度;度名虽一,用处不同。
实景©新兴鼎盛文化产业投资有限公司
廊桥在古典园林中是一种典型的水上活动空间。设计中以廊桥为引,延伸出水上的活动空间,以现代的外形与材料表现,并赋予桥、书吧、水吧的功能。
深灰色金属与木格栅结合形成简洁现代的外形,色调与商业街建筑统一,同时不会过于强调。“‘桥’上的人在看岸上的你,你也在看‘桥’上的人”,书吧的设置丰富了商业街的景观。
同时,“桥”也是渡河的方式之一,渡亦度,在功能形式上体现惠能所说的“迷时师度,悟了自度”,书吧的设置也寓意以知识度人,从精神层次上体现“度人度己”。
印宗法师讲经之际,时有风吹幡动。
一僧曰:风动;一僧曰:幡动;争论不休。
惠能进曰:不是风动,亦非幡动,仁者心动。
印宗闻之,遂拜六祖为师;六祖自此出山说禅。
©新兴鼎盛文化产业投资有限公司
风幡广场位于商业街内一个开放的广场节点,希望在此形成一个禅文化交流的活动空间。风幡以仿古的形式重现当时六祖论风动幡动的场景。
©新兴鼎盛文化产业投资有限公司
©新兴鼎盛文化产业投资有限公司
世间花叶不相伦,花入金盆叶作尘。惟有绿荷红菡萏,卷舒开合任天真。
莲花是禅宗文化中经常提到和见到的象征物,禅域小镇以“莲花”为重要元素置入景观设计。莲花象征着清净无染的禅宗智慧,莲花生于淤泥中,出淤泥而不染,(BIM工程师)象征着佛智也是从污浊的世间诞生的。
▲莲花元素景观
▲步步生莲
▲室内莲花元素
如今,禅域小镇成了新兴全新的旅游名片,以千年深厚的禅宗文化积淀与岭南碧水青山的环境魅力向人们发出邀请。白墙黛瓦、古韵悠长、商铺云集、香火缭绕,禅文化在商业街中仿佛浸润人间烟火,却依然以另一种形式涤荡内心、显现禅意。
项目信息:
项目名称:云浮新兴禅域小镇 商业街区
委托单位:新兴鼎盛文化产业投资有限公司
项目类型:商业空间及产业园区
项目面积:60878㎡
设计时间:2017年
竣工时间:2018年
景观设计:GVL怡境国际设计集团
建筑设计:天萌国际设计
施工单位:广州市华慧园林工程有限公司

BIM建筑网












































