日出风景
在青骊完成一年后,我们工作室开始了二期的工作。在这一年涠洲岛变化不少:游人渐多,公共设施在完善。岛上民宿市场如雨后春笋,百花齐放,在一片火热的市场里,要保持冷静与独立思考,在接地气和创新的博弈之间取得平衡是做民宿的一大挑战。岛上的民宿大多为改造原有建筑,先天施工缺陷与原建筑平面不合理是设计师要克服的难题。
鸟瞰建筑外形
青骊的新店名字叫青骊拂晓,拂晓意思指黎明,或接近日出的意思。这个名字来由于项目地可以看到日出与海景。项目位于涠洲岛东南角的下坑村,这里人口较少,民宿只有几个,特点是风景优美,海岸线长,在村与沙滩之间还有一片小树林,叫这个村的海景更为独特。
涠洲岛下坑村
涠洲岛绵长的海岸线
基地由四层的主建筑和一层的副楼组成,两个建筑形成L形的布局,围合一个院子,主要入口在东南角的公路上。主楼建筑平面尺寸为11.8m x 14.5m ,副楼平面为6m x 12m.在业主接手之前已经是民宿.这次业主对我们的要求:如何在原有平面作出优化,在原有复杂外立面做减法,(BIM建筑)还有处理建筑与景观的关系。这几个平常的要求只是对建筑师考验非常大,因为一方面要符合当地的改造规范(例如基地范围,总高度和面积等),另一方面要在有限经费里打造出房子的新面孔。
建筑外形
院子
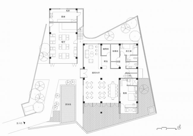
一层平面图
在建筑的原平面上,过道位于建筑的正中间,房间平均大小接近。基于海景的考虑,我们把一些朝东(看海)的房间与朝西的打通,形成一个更好通风与景观的空间,从而增加房间看海的比例。在一层的空间,主要为接待与休息区,朝海面我们设计了落地玻璃推拉门,和室外平台连成一起,室外平台比基地马路高出约一米的空间,这里户外活动更具私密性。
一楼室外平台
室外平台
室外平台
一楼接待大厅
接待大厅
大厅
酒店餐厅在主楼的边上,和主建筑围合出半开放的院子,餐厅的正面也同样有推拉门,客人们可以在树下享受美食,也同时观看游泳池与草原风景。餐厅屋顶是观景平台可以远眺海景。院子的中间区为游泳池,绿色马赛克的设计与地面更为协调。
鸟瞰建筑夜景
游泳池夜景
在建筑外形上我们考虑了几样材料,包括水洗石或水磨石等。由于房子本身要抵抗高温与多雨的海岛气候,所以容易修复与耐用的材料是最终选择,外墙我们使用了真石喷漆与菠萝格木板,颜色选择了墨绿色,因为基地周边全是珊瑚石围墙与树林,我们希望建筑像从地面生长出来的绿洲一样,眺望着大海的变化。在大堂与房间里,每一层用了不同颜色的水磨石地面。
外形局部
楼梯间
拂晓是日出,代表了新一天的开始,我们期待客人每天在这里享受不一样心情的海岛慢生活。
建筑外形
顶楼阳台
星空房
星空房浴缸(BIM教程)
房间客厅
客房卫生间
客房卫生间
设计图纸:
一层平面图
二层平面图
三层平面图
四层平面图
东北立面
东南立面
西南立面
轴测图
项目信息:
项目名称:青骊拂晓酒店
地点:广西北海涠洲岛下坑村
基地面积:554平方米
占地面积:260平方米
建筑面积:760平方米
建筑层数:主楼4层,副楼1层
设计单位:间外建筑工作室
主持建筑师:冯国安,王素玉
设计团队:步东梅
设计时间:2017年11月-2018年1月
建造时间:2018年2月-2018年10月
摄影:白羽

BIM建筑网


































